本項目的設計定位為中古原木風格,整體以奶白色為主調,搭配溫潤的木色材質,營造出溫暖、自然且富有質感的居住氛圍。在布局上,我們盡可能尊重原始戶型結構,通過局部優化與功能整合,提升空間使用效率與居住舒適度。
∇ 原始戶型圖 © vs 平麵設計圖 ©
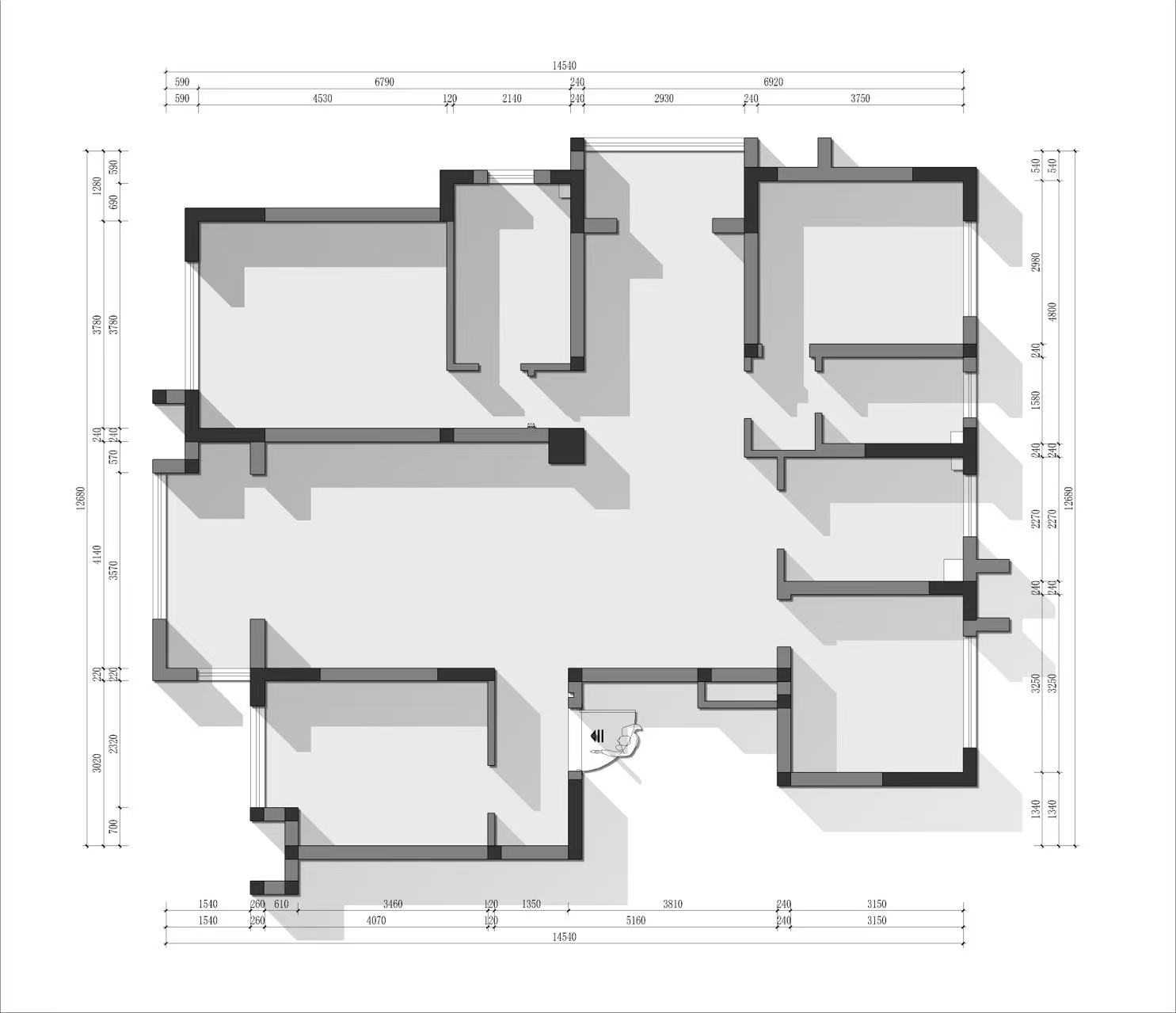
改造分析:
1.在玄關處,沿牆打造收納結構,滿足即時收納的需求;
2.將小次臥納入廚房,讓中廚與西廚保持獨立與貫通;
3.將兩臥之間的空間化零為整,設成開放式榻榻米書房,提升家居格調;
4.主衛采用獨立幹區設計,以開放格局與玻璃隔斷實現幹濕分離,同步展現通透感。
玄關以圓形燈膜造型作為視覺焦點,推開家門,迎接你的是圓月般的暖光,它安靜地懸在玄關上方,帶你享受這一刻歸家的儀式感。收納空間,將日常瑣碎變得井然有序,每一次開合,都是心與家的對話,清爽又輕鬆。
相關文章推薦
聲明:本站所有文章,如無特殊說明或標注,均為本站原創發布。任何個人或組織,在未征得本站同意時,禁止複製、盜用、采集、發布本站內容到任何網站、書籍等各類媒體平台。如若本站內容侵犯了原著者的合法權益,可聯係我們進行處理。


















評論(1)
好溫馨