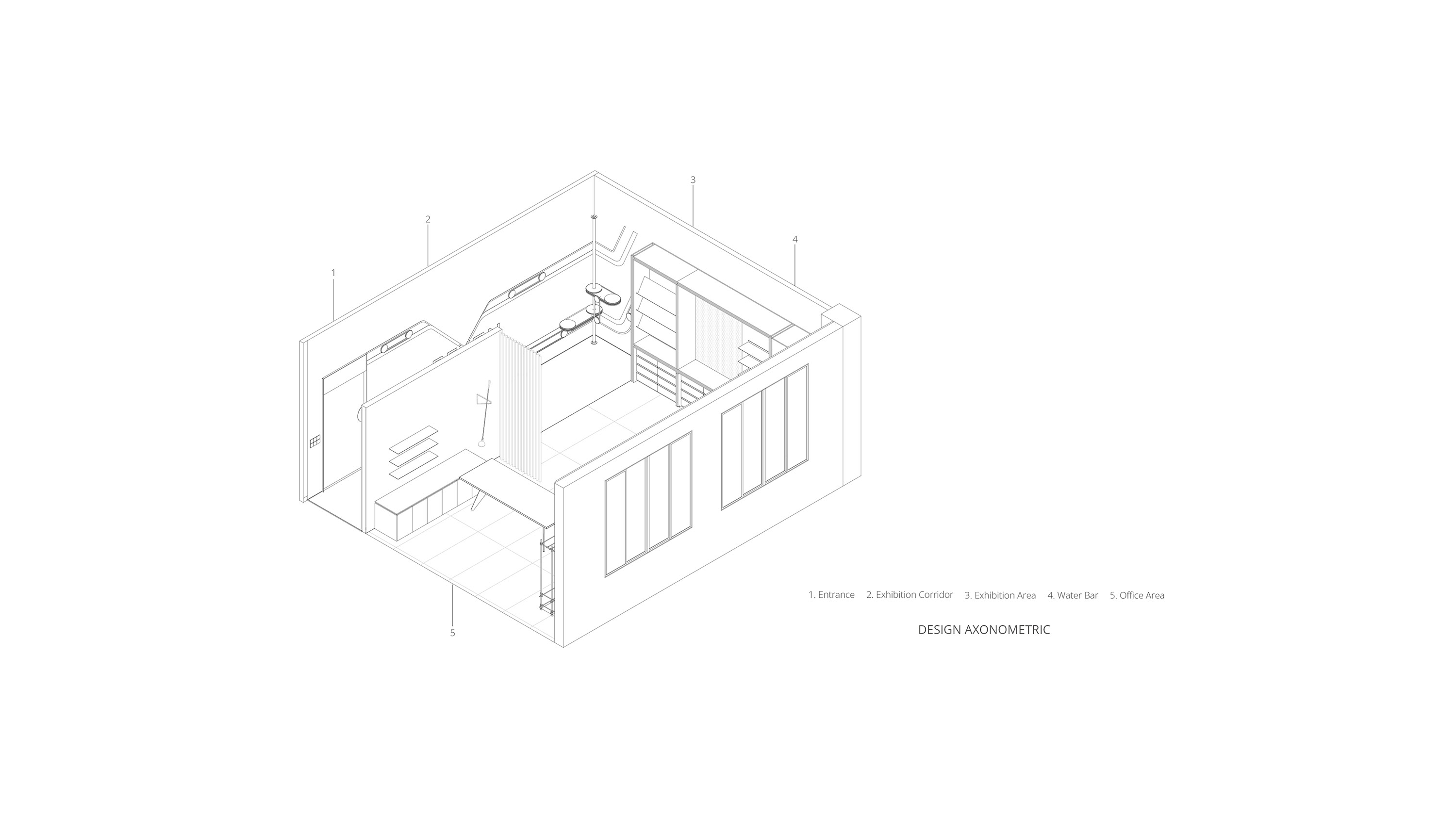
REXON 上虞 50㎡複合空間,是集辦公與展廳雙重功能於一體的企業核心載體,既肩負著對外展示品牌形象、傳遞核心價值的重要使命,更是連接企業與客戶的關鍵溝通窗口。
The REXON Shangyu 50㎡ hybrid space functions as the enterprise’s core venue, integrating office and exhibition in one. It serves not only as a showcase for brand identity and core values, but also as a critical interface connecting the company with its clients.
場地由兩間約 20 餘平米的常規辦公室改造而來,直麵層高偏矮、預算有限的雙重現實約束,如何在苛刻條件下平衡業主對空間品質的高要求,實現辦公與展示功能的高效融合與價值最大化,成為本次設計的核心命題。
Renovated from two separate offices of roughly 20 square meters each, the project is constrained by low ceiling height and a tight budget. The central design challenge was to balance the client’s high standards for spatial quality under strict limitations, achieve efficient integration of working and exhibition, and maximize the overall value of the space.
本次設計以 “最少動作解決核心需求” 為核心策略,摒棄複雜的空間改造手法,用簡約卻精準的設計巧思,讓有限空間釋放多元功能,在方寸之間構建出動線流暢、功能清晰的複合場域,既契合企業的日常辦公,又滿足品牌的展陳需求。
Guided by the core strategy of “meeting demands with minimal”, the design avoids elaborate structural alterations. Instead, minimalist yet precise gestures unlock diverse functions within limited dimensions, crafting a coherent hybrid space with clear circulation and well-defined zones. The result responds to both the practical needs of daily office work and the professional requirements of brand display.
相關文章推薦



















評論(0)