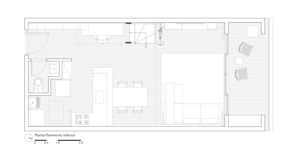
巴西設計公司treszerosete在聖保羅規劃設計了一間約80平米的挑高工業風單身男子公寓,臥室位於架高夾層,夾層下為衛浴及廚房,客廳則保留挑高設計。兩側大麵積紅磚牆定義出整體溫暖印象,選用寬度較細的嶄新磚麵,呈現平滑且利落的立麵,和一般質感更粗獷的複古磚做出區隔。牆麵間隔加入淺灰混凝土質材,不止為紅磚調做出製約,也在視覺上作出樓層分際,搭配同質天花板,線條明快而肌理溫潤。
白色鐵件樓梯與扶手有著纖細支架結構,讓整體視覺更加清爽,木作收納櫃板也統一使用白色,即使搭配暖色木地板也不顯厚重。室內所有管線皆以細致灰銀管包覆,整齊的布線化為工業風十足的牆麵裝飾。客廳旁的戶外露台以白框落地拉門隔開,鋪上拚接木地板延伸室內風格,觀景時偶有身在室內的錯覺,完成具有深度變化的層次觀景區。
photos © Ana Mello
版權聲明:本站所有文章除投稿授權發布外,其他文字內容均為原創,享有著作權保護,未經許可不得以任何形式進行轉載(包括且不限於:媒體、網站、公眾號等)。所有項目照片/設計圖形版權歸原作者所有。本站部分內容源自網絡公開資源或用戶分享,如若侵犯了原作者的合法權益,可聯係我們進行處理。


















