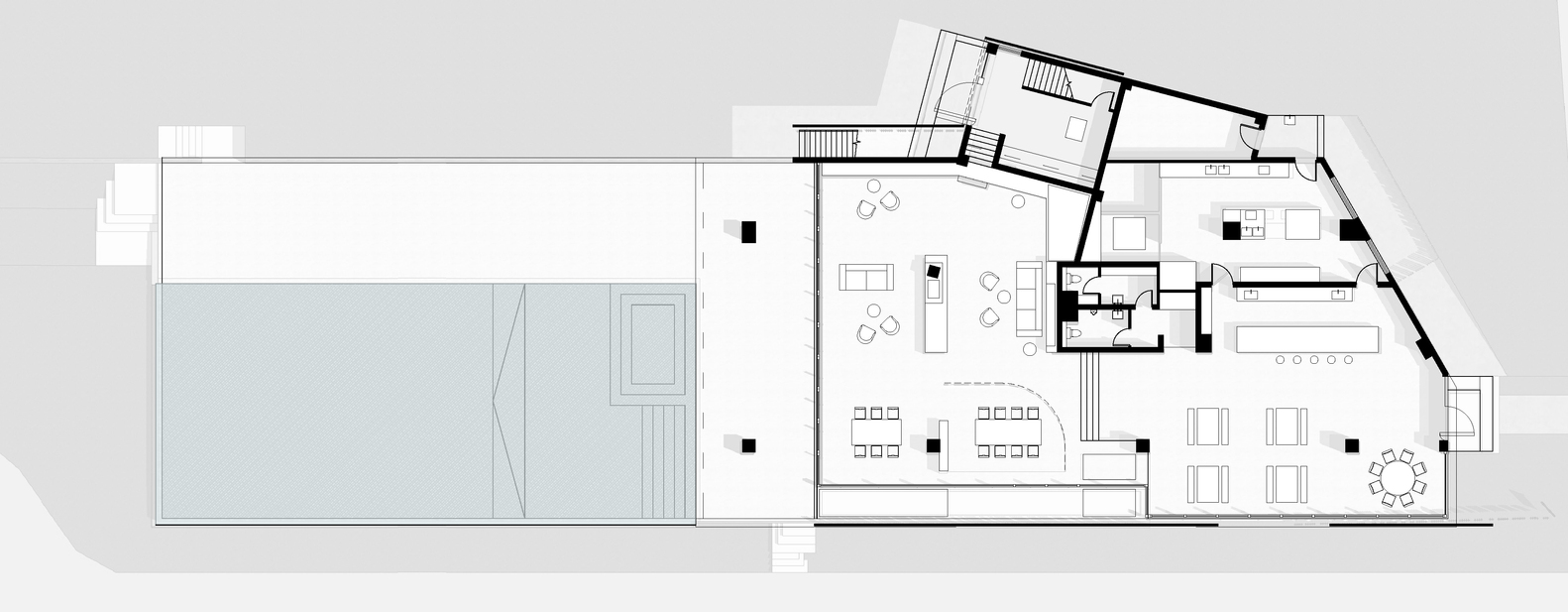
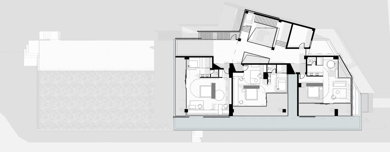
Anadu位於浙江湖州的莫幹山脈北麓,坡地院落占地30000㎡,東瞰琛磧村,南眺鳳凰山、大崗山,西臨白茶山坡,北有竹林環繞。八荒設計擔任Anadu酒店的品牌視覺識別係統建立,以及建築和室內設計。Anadu希望為住客提供一個身處自然的寧靜度假體驗。因此,保持當地的人文和自然氛圍成為整個項目非常重要的關注點,從建築材料到設計元素,甚至食材,都最大程度地充分利用當地資源。Anadu的六個房間是根據當地的自然多樣性設計的,每一個房間都指的是風景的一個元素:茶田、竹林、水、山或天空。
photos © Sven Zhang
版權聲明:本站所有文章除投稿授權發布外,其他文字內容均為原創,享有著作權保護,未經許可不得以任何形式進行轉載(包括且不限於:媒體、網站、公眾號等)。所有項目照片/設計圖形版權歸原作者所有。本站部分內容源自網絡公開資源或用戶分享,如若侵犯了原作者的合法權益,可聯係我們進行處理。






















