本案位於高雄農十六特區,鄰近河堤公園、商圈與美術館,是絕佳的文教住宅區。屋主為一對醫生夫婦及其2名幼女,男主人喜好素樸禪風,女主人心儀北歐簡練自然路線,大女兒活潑好動,小女兒文靜浪漫,希望為兩個女孩打造理想的生活遊樂園。
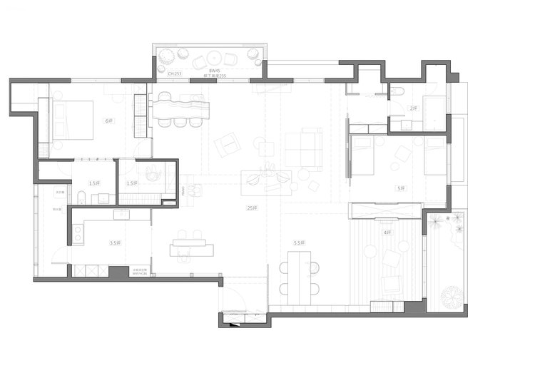
好室設計觀察房屋有每麵采光的優勢,但既有格局過於零碎,考慮使用頻率後去除兩個房間,規劃為2+1房,采用推拉門彈性擴大公共空間,掩蔽門片時多功能房便可保有私密性用作客房,並將原來的三套衛浴之一改為更衣室,增進收納。過去陳鴻文設計師常應用「共享機能」手法,賦予小空間寬闊的生活感,瞄準本案有足夠的寬敞度,便大刀闊斧地區分機能性,賦予明確的客廳、餐桌、吧台、書桌與休閑和室,臥榻墊高十公分,豐富行動體感。
為打造平易近人、簡單素雅的視覺風格,玄關地板采用板岩鑿麵石材磚,屏風為編織鐵網,鋼琴後方有深色板岩貼磚,一旁樹立三根白楊木修飾廚房視覺,部分天花板有線性格柵,醞釀出脫俗禪風。大量的實木語彙發揮在窗格、桌板、櫃體及收納架上,書房的書架牆特別規劃為山形收掉大梁的量體感,同時增添親子宅的溫馨度。
最有趣的區塊莫過於多功能和室與兒童房設計,兩區不用實體牆分隔,而是設置秘密基地般的大衣櫃,搭配粉色圓形洞口櫃門及滑軌設計,不同造型的櫃門片也可靈活上下對換,自由調整房間進出口位置。天花板還設有吊單杠拉把,讓衣櫃成為時而封閉、時而穿透的鳥瞰平台,豐富的穿梭性滿足玩躲貓貓的繽紛樂趣。
photos © 好室設計
版權聲明:本站所有文章除投稿授權發布外,其他文字內容均為原創,享有著作權保護,未經許可不得以任何形式進行轉載(包括且不限於:媒體、網站、公眾號等)。所有項目照片/設計圖形版權歸原作者所有。本站部分內容源自網絡公開資源或用戶分享,如若侵犯了原作者的合法權益,可聯係我們進行處理。



























