Cheering高級女裝定製概念店位於時尚前沿城市深圳,這間300平方米的概念店設計奢華、色彩豐富豔麗,擁有私人會所般的視覺體驗,概念店的設計充分融合了東西方文化,並在空間設計中將其體現的淋漓盡致。由深圳綻放設計團隊(bloomdesign)設計。
綻放設計團隊(bloomdesign)官方網站:bloomdesign
非常感謝深圳綻放設計團隊(bloomdesign)向LOFT中國網站投稿,並授權LOFT中國網站將以下內容發表:
項目概述:
項目名稱:Cheering高級女裝定製概念店
項目地點:中國,深圳
設計周期:2013.4-2013.10
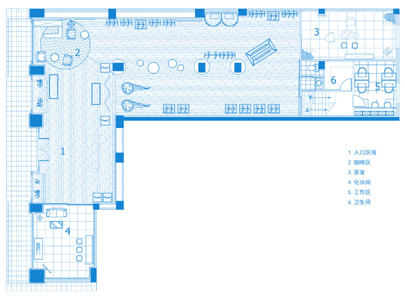
建築麵積: 300 ㎡
設計公司: BLOOMDESIGN綻放設計團隊&VERKING DESIGN
項目團隊成員: 王誌君 陳小虎 李寶龍 張永孝
主要材料: 電鍍金/鋼板氟碳噴塗/原木/雨林綠大理石/鋼化超白玻璃
設計說明:
踏進cheering 高級女裝定製會所,立即就被店麵中的似古似今的魔幻視覺效果所吸引,無論頂棚上來自悠遠西方的12星宿傳說,還是具有東方美學意味的回紋牆麵設計,還是東方美十足的刺繡屏風,都會讓你仿佛來到一個可以任意發揮想象的地方。
時而淡雅,時而貴氣,時而輕描淡寫,時而濃妝重彩,但其表現形式,組圖美學和意境的創造卻是萬變不離其宗。跟隨那種神秘的氣息或是極富情趣的導視設計暢遊一番,卻總是一遊未盡似的。注重肌理與質感的細節搭配,是考慮女性消費者細膩敏感的心思容易被細節所感動。
延伸閱讀:
Photos © bloom design
Content Copyright © www.online4teile.com
版權聲明:本站所有文章除投稿授權發布外,其他文字內容均為原創,享有著作權保護,未經許可不得以任何形式進行轉載(包括且不限於:媒體、網站、公眾號等)。所有項目照片/設計圖形版權歸原作者所有。本站部分內容源自網絡公開資源或用戶分享,如若侵犯了原作者的合法權益,可聯係我們進行處理。





























