LOFT中國感謝來自 深圳鼎點設計 的西服定製服裝店案例分享:
作為一家西服定製店,鐵馬今歌追求成為精品男裝的代名詞。選擇來自全球頂尖工廠的衣料與皮革,集結經驗豐富的能工巧匠,將西裝店打造成專屬的生活空間,確保讓高品位男士獲得無與倫比的著裝體驗,從自然、純粹的基本空間表現元素中提煉出耐人咀嚼的規劃構思,用最簡化的語彙,貫穿不同的功能空間,將各項機能融合,保持各空間相對獨立的同時,又確保了風格的一致性、動線的流暢性、設計的完整性。
本案在風格定位上以低調奢華為主要基調,為配合產品本身定位和消費群體,我們使用簡練的造型和材料,我們希望一踏入這個空間,就有種故事想要找尋,也許是這個家族以前的故事,又或許是想探究未來這個家族的際遇,它,應該是耐人尋味的衣櫃、耐人尋味的故事。
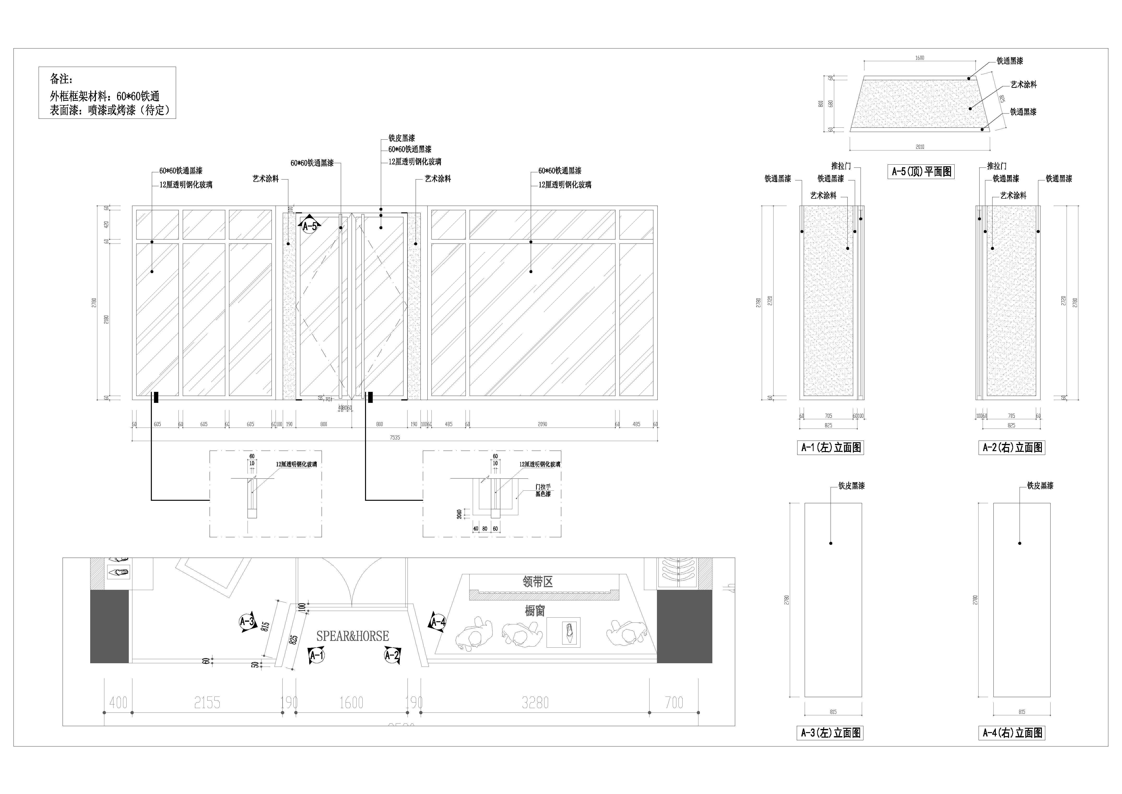
∇ 門頭立麵圖
∇ 櫥窗立麵圖
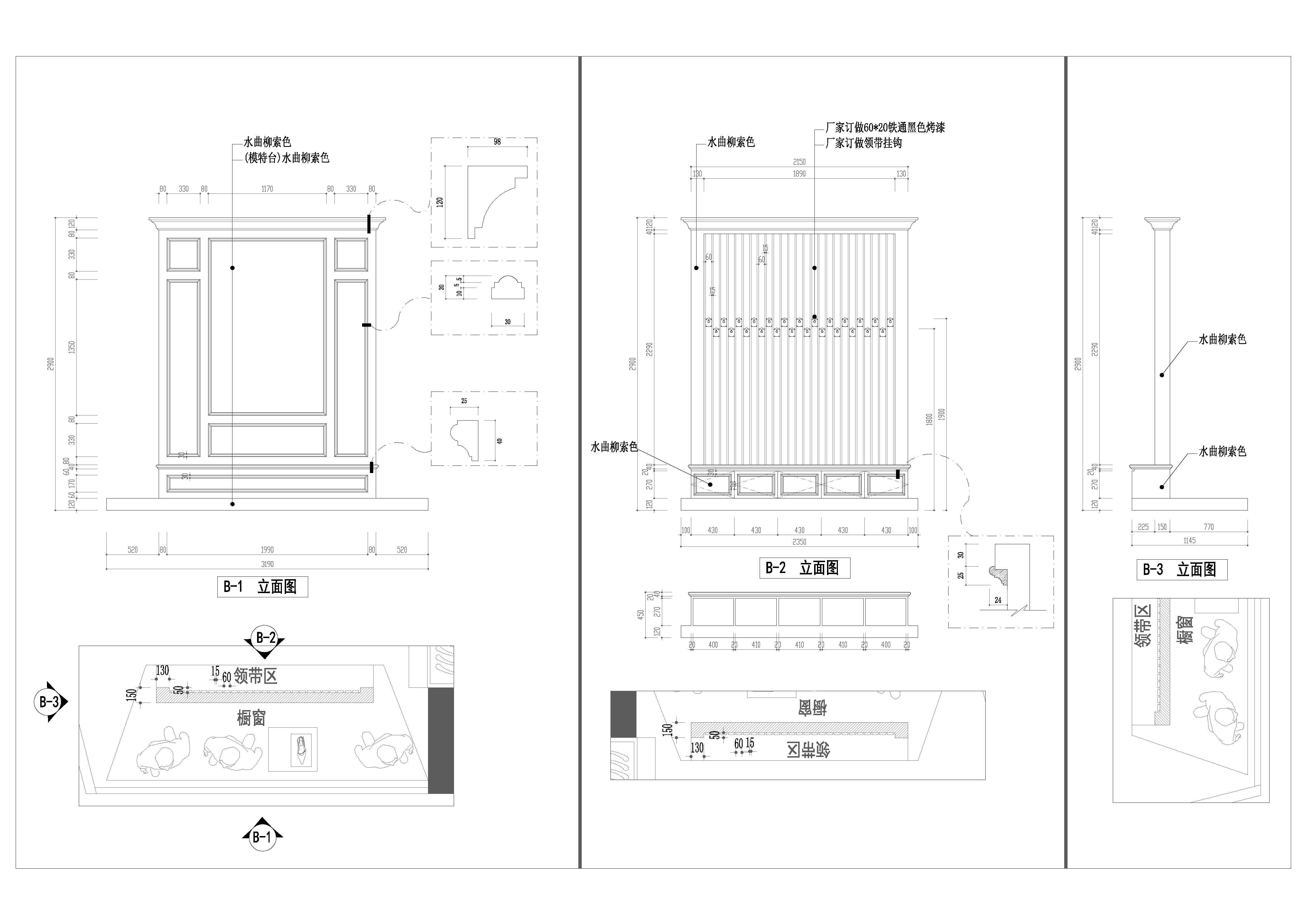
∇ 皮鞋展售區立麵圖
∇ 皮鞋展售區立麵詳圖
∇ 前廳展售區
∇ 試衣間外立麵圖
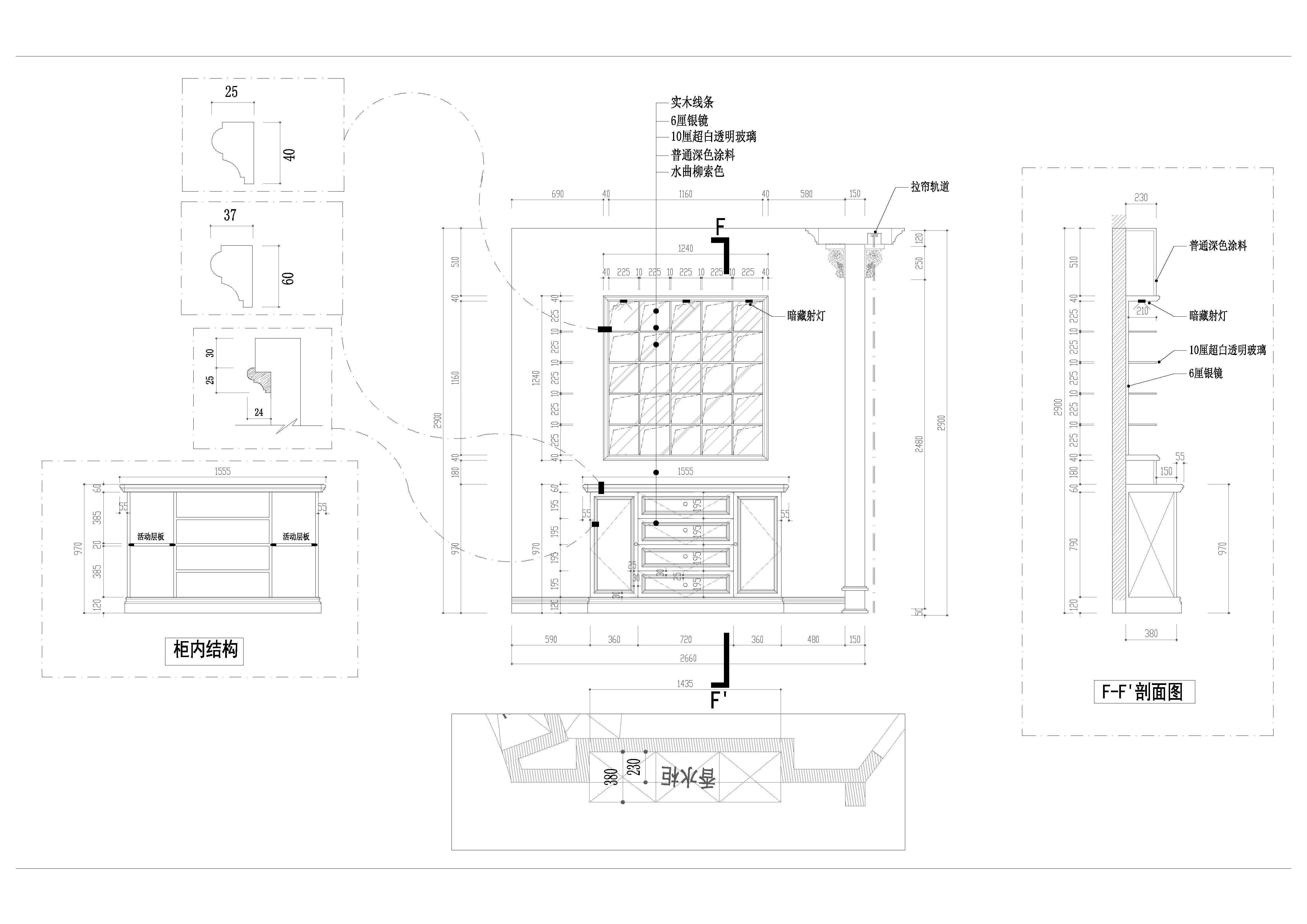
∇ 香水展售區立麵圖
∇ 會客區立麵圖
∇ 大展售櫃立麵圖
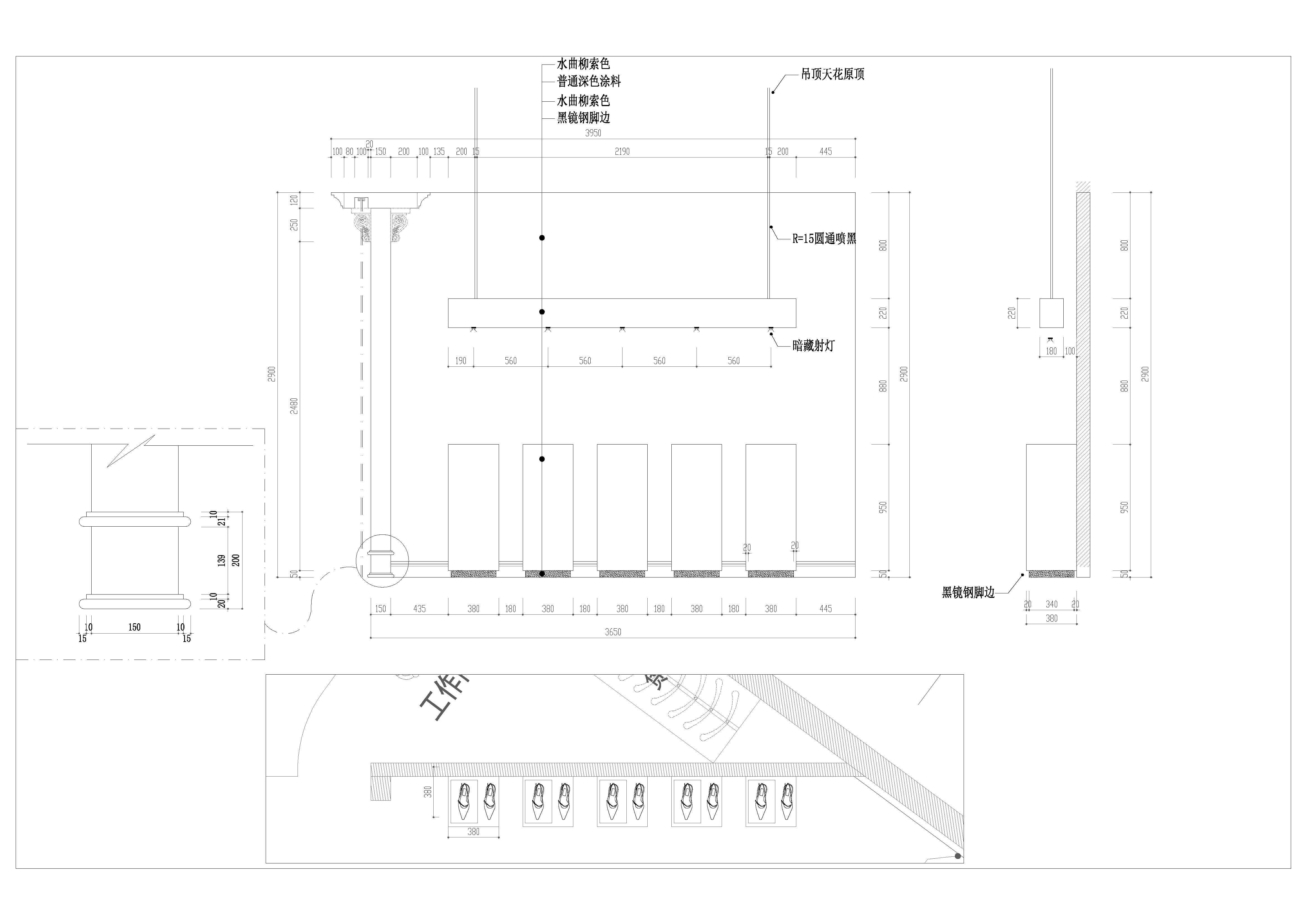
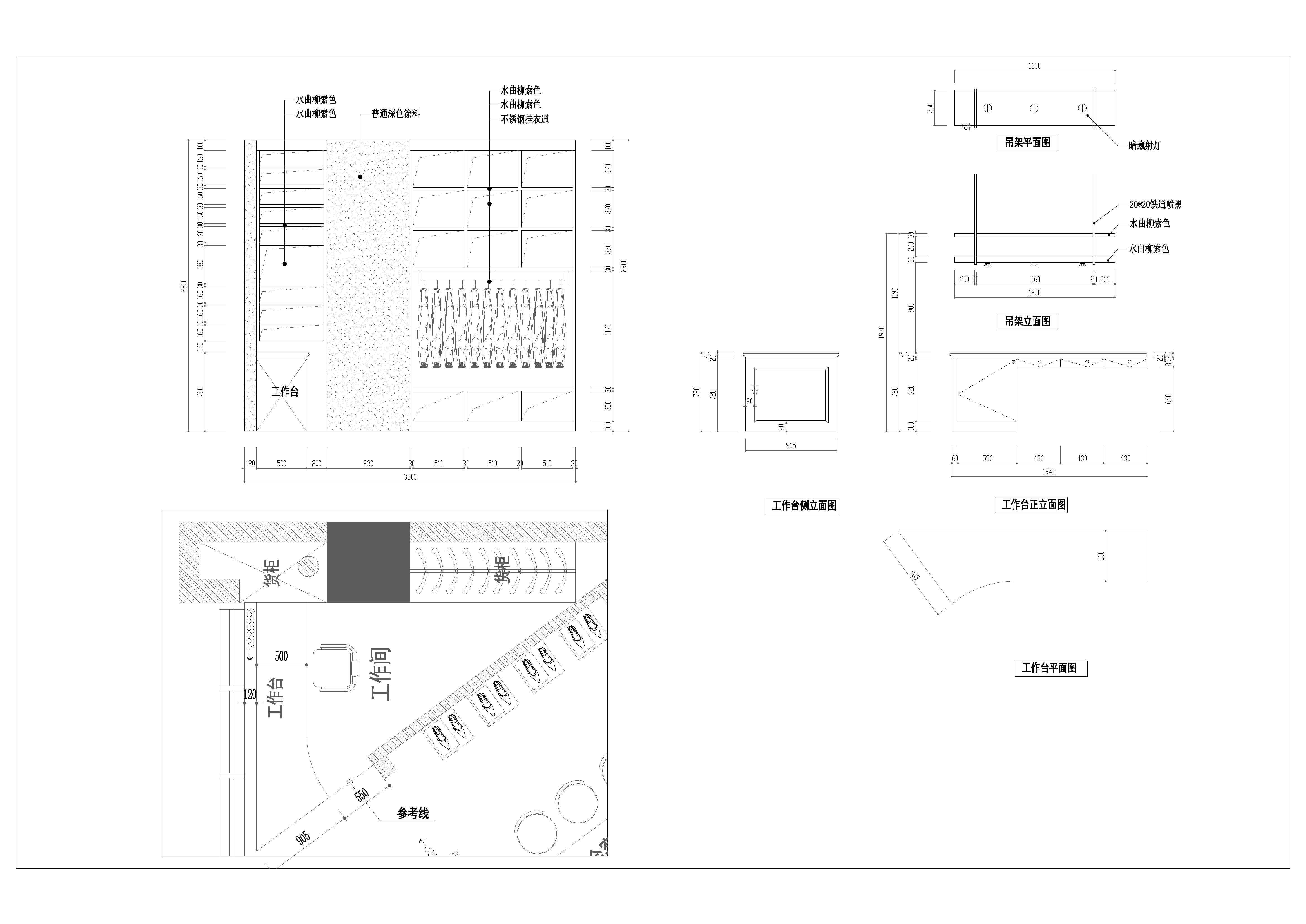
∇ 工作間立麵圖
∇ 精品櫃大樣圖
∇ 中島台大樣圖
完整項目信息
項目名稱:鐵馬今歌西服定製服裝店
項目位置:中國廣東省深圳市T-PARK深港影視創意園
項目類型:商業空間/定製服裝店
項目麵積:200㎡
完成時間:2018年6月20日
設計公司:深圳市鼎點室內設計有限公司
主案設計:羅淞元、程施洋
團隊成員:黃詩淇,徐鎮濤,曹振一,鄧威
官網:http://szdid.com.cn/
聯係郵箱:761272349@qq.com
使用材料:木飾麵:科定;燈飾照明:飛利浦、雷士;瓷磚:博得
攝影:ALON LUO
版權聲明:本站所有文章除投稿授權發布外,其他文字內容均為原創,享有著作權保護,未經許可不得以任何形式進行轉載(包括且不限於:媒體、網站、公眾號等)。所有項目照片/設計圖形版權歸原作者所有。本站部分內容源自網絡公開資源或用戶分享,如若侵犯了原作者的合法權益,可聯係我們進行處理。





































