該公寓以前是一間鋼琴工作室,麵積隻有17.6平方米,天花板高度為3.4米。混凝土梁的寬度貫穿整個公寓,進一步限製了可用空間。王和她的團隊重新分配了公寓的空間,使起居、睡眠和沐浴空間的比例更加實用。
Formerly a piano studio, the apartment measures just 17.6 square metres and has a ceiling height of 3.4 metres. A concrete beam that runs widthways through the apartment further restricts the amount of space available.Wang and her team redistributed the apartment’s spaces so that the living, sleeping and bathing spaces had more practical proportions.
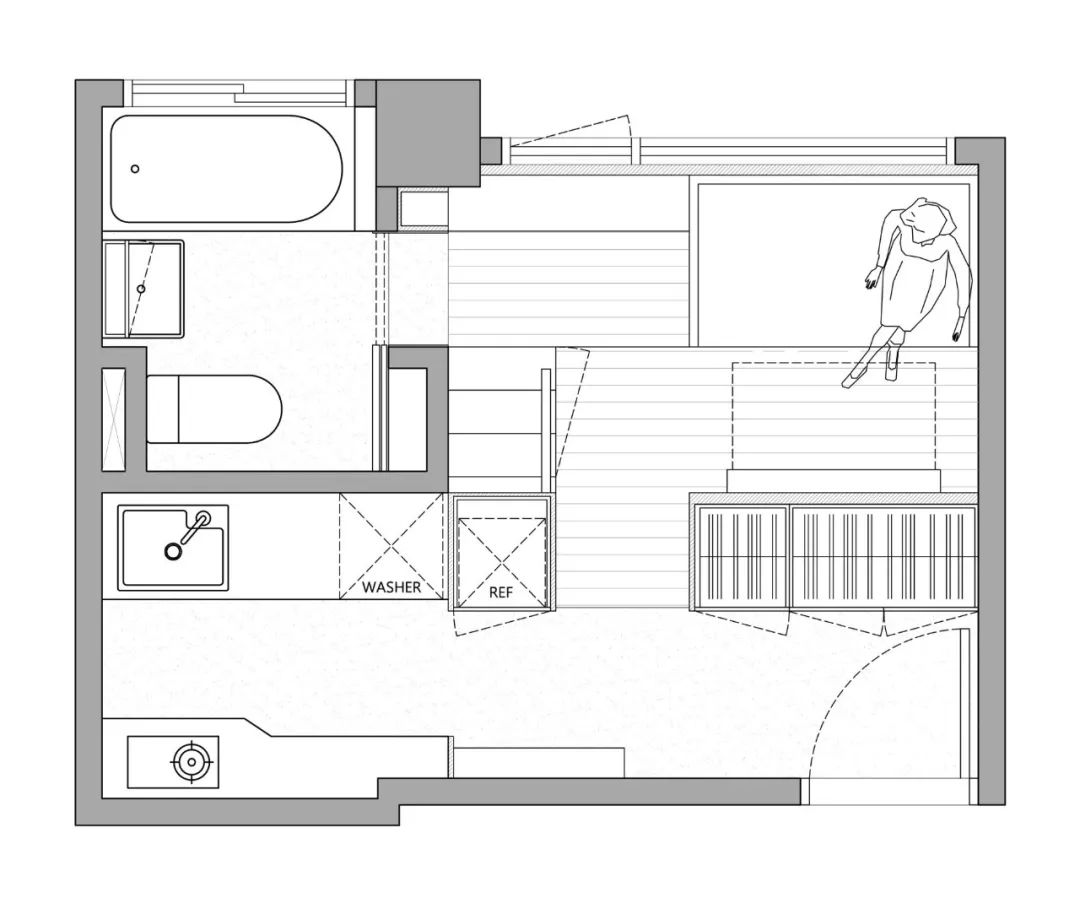
浴室和廚房的位置互換,入口和廚房的組合創造了一個連續的空間。洗衣機、冰箱和電爐等電器沿著廚房的兩堵堅實的牆壁布置,並確保有一個寬敞的操作台,架子和櫥櫃安裝在台麵的上方和下方。
The bathroom and kitchen switched positions, and the entryway and kitchen were combined to create a continuous space.Appliances such as the washing machine, fridge, and an electric stove are arranged along the kitchen’s two solid walls. The design team made sure to allow for a generous work surface with shelves and cupboards mounted above and below counter height.
常用的廚房和餐桌用具儲存在容易觸及的工作表麵,而櫥櫃安裝在較高的位置,為較少使用的物品提供存儲空間。
Commonly used kitchen and table wares are stored within easy reach on the work surface while cabinets mounted higher up provide storage for items that are used less frequently.
穿過公寓的橫梁將公寓的服務和生活空間分隔開來,橫梁下的空間被改造成沿樓梯的壁櫃。冰箱位於樓梯下,旁邊是額外的櫥櫃,作為廚房的延伸。
The beam which runs through the flat now serves to separate the apartment’s service and living spaces, while the space under the beam has been converted into wall cabinets that run alongside the stairs.The fridge is located under the stairs alongside additional cupboards which serve as an extension of the kitchen.
臥室位於夾層,橫梁下有一個桌麵和抽屜。樓下,一個衣櫃被整合到公寓的入口通道,沙發區也作為一個穿衣和工作的空間,有一個內置的鞋櫃和一張桌子,可以從相鄰的牆壁折疊出來。
The sleeping area is located on the mezzanine level where a tabletop and drawer are located under the beam.Downstairs, a wardrobe is integrated into the apartment’s entryway and the sofa area also functions as a space for dressing and working with a built-in shoe cabinet and a desk that folds out from the adjacent wall.
在浴室和生活區之間的樓梯底部,地板上升了一層,以容納管道係統。在這裏,設計師們整合了一個儲物櫃,它也可以作為一個邊桌和一個狹窄的嵌入式書架堆棧,突出在窗戶上。
The floor rises a level at the base of the stairs between the bathroom and the living area to accommodate pipework. Here, the designers have integrated a storage cabinet that can also be used as a side table and a narrow stack of recessed shelves that jut up against the window.
雖然浴室的麵積略有縮小,但它的新位置為潮濕的空間提供了更好的通風和充足的陽光。
Although the bathroom has been slightly reduced in size, it’s new location provides the humid space with better ventilation and sufficient sunlight.
一個狹窄的凹槽為書架提供了空間,而滑動鏡門使浴室顯得更加明亮和寬敞。
A narrow recess provides a space for shelving while the sliding mirror door makes the bathroom appear brighter and more spacious.
“沙發也可以作為單人床來接待客人,下麵的深抽屜補充了儲物空間;可折疊的桌子,可以調整大小,作為一個工作或餐桌的功能。”王說。
“The sofa could also be used as a single bed to host a guest and the deep drawers below complement the storage,” said Wang. “The foldable table which can be adjusted in size to function as a working or dining table.”
∇ 平麵圖 plans
完整項目信息
項目名稱:tiny apartment
項目位置:中國台灣省台北市
項目類型:住宅空間/小宅概念
項目麵積:17.6㎡
設計公司:A Little Design
攝影:Hey!Cheese































評論(2)
層高多少?
層高3.4米還能隔出一個夾層,會碰頭吧,一層算你1.8,除去樓板,夾層估計1.4最多了。