該酒店於1948年在葡萄牙埃什特雷拉山開業,建築高1200米,倚著Zezere河的冰川山穀。這項雄心勃勃的計劃旨在促進葡萄牙各地區的文化和習俗,將現代建築師的設計與各地區的傳統做法結合起來。
Pousada de São Lourenço, opened in 1948 in Serra da Estrela, 1200m high, leaning over the Glacier valley of the river Zêzere. This ambitious plan aimed at promoting the culture and customs of the various regions of Portugal, combining, for this purpose, the work of modern architects with regions’ traditional practices.
其簡潔合理的幾何形狀允許在所有房間和社交區域創建大型玻璃和寬敞的外部空間。酒店使用本地製作的羊毛麵料,以及重新使用Pousada的原始設計和家具,使現在創造的多重當代空間和氛圍統一起來,且與新酒店周圍的曆史和景觀相協調。
Its simple and rational geometry allows the creation of large glazing and generous exterior spaces, in all rooms and social areas. The use of burel locally made wool fabric, and the reuse of the original designs and furniture of the Pousada become the guiding line that gives unity to the multiple contemporary spaces and atmosphere now created, in tune with the history and the landscape that surrounds the new hotel.
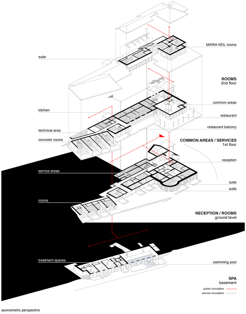
∇ 酒店房間軸測圖
∇ 模型
完整項目信息
項目名稱:Burel Panorama Hotel
項目位置:葡萄牙
項目類型:酒店空間
完成時間:2018
項目麵積:2200平方米
設計公司:P-06 Atelier,Site Specific Arquitectura
設計團隊:Simão Botelho, Tânia Oliveira, Joana Presépio, Jacinta Fialho
攝影:Fernando Guerra | FG+SG, José Vicente – Agência Calipo


















































