Al Faya Lodge酒店位於Alvaah山腳下,坐落在阿聯酋史前深紅色的沙漠景觀中,靠近阿聯酋的第一座石油泵,由ANARCHITECT設計。Al Faya Lodge是Sharjah係列的新成員,Sharjah係列是一組位於沙迦酋長國的關鍵位置的獨特的精品酒店和生態休養所。
Set at the foot of Mount Alvaah, the Al Faya Lodge designed by Dubai and London-based practice ANARCHITECT is nestled into the UAE’s prehistoric crimson desert landscape with close proximity to the UAE’s first petroleum pump. The Al Faya Lodge is a new addition to the Sharjah Collection – a group of distinctive boutique hotels and eco-retreats purposefully located in key locations throughout the Sharjah Emirate.
建築師Jonathan Ashmore將一棟建於上世紀60年代的兩層單層石砌建築改造成了一座當代精品酒店和餐廳。建築和室內設計有意對比現有建築的原始結構。CorTen鋼鐵強調了新的附加層,這些層用於重新定位和擴展空間以適應新的一係列程序。
Architect Jonathan Ashmore has transformed a two single-story, stone-built buildings from the 1960s, previously occupied as a clinic and grocery store, into a contemporary boutique lodge and restaurant. The architecture and interior interventions purposely contrast the original fabric of the existing buildings. CorTen steel emphasizes the new additional layers that have been introduced to repurpose and extend the spaces to accommodate a new series of programmes.
在這樣做的過程中,建築師無意中把注意力吸引到了原始建築上,創造了清晰界定的門檻,並在新舊建築之間進行了對比。事務所負責人Jonathan Ashmore說道:“沙漠環境在夏季呈現出極高的溫度,而且日照強烈且持續時間較長,因此,在設計建築的形式和質量時,首先考慮這些因素,然後選擇合適且堅固的材料,這是非常重要的。”
In doing so, ANARCHITECT has inadvertently drawn focus to the original buildings, creating clearly defined thresholds and the juxtaposition between that what is old and what is new. “Desert conditions present extreme heat in summer with intense and prolonged sun exposure so it is important to consider these factors when first designing the form and mass of the building and secondly the selection of suitable and robust materials which go hand in hand,” explained Jonathan Ashmore, practice Principal.
沙漠地區也暴露在暴雨、沙塵暴和夜間低溫等因素下。當地的石材或混凝土結構提供了大量的熱量來應對極端的溫度波動。表麵材料如耐候鋼和二級結構材料如堅固的硬木和鋁,為設計增加了精細和精度,特別是對於超越航行的屋頂,遮陽元件和高出沙灘水平的露台甲板。
Desert sites are also exposed to elements such as driving rain, sand storms and low-temperatures at night. Locally sourced stone or concrete construction provide heavy thermal mass to deal with the extreme temperature fluctuations. Surface materials like Corten steel and secondary structure materials like robust hardwoods and aluminum add refinement and precision to the design particularly for over-sailing roofs, shading elements and terrace decks raised above the level of the sands.”
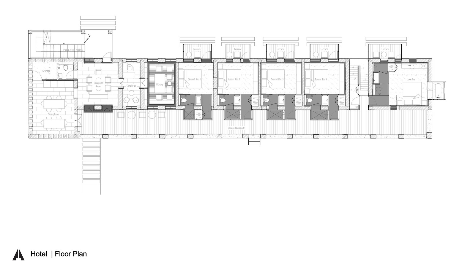
酒店由餐廳、接待室、圖書館和屋頂露台組成。每間客房均設有可欣賞星空的天窗,豪華客房擁有私人屋頂露台和雙麵設施的額外體驗。特別設計的溫泉建築包含露天海水遊泳池和三個鹽水療中心;吸熱,吸水和吸鹽。餐廳和遊客接待處位於酒店的另一側,包括用餐室,戶外露台,火坑和公共屋頂露台。
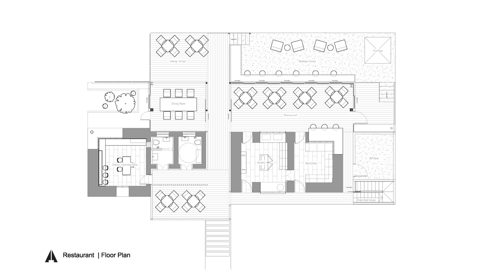
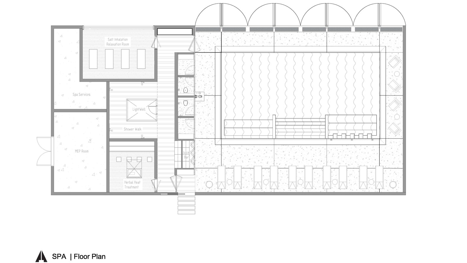
The Lodge comprises of dining, reception room, library and roof terrace. Within each room of the five-bedroom lodge is a feature skylight for star-gazing, the luxe room has the added experience of a private roof terrace and dual aspect. The purpose-built spa building houses an open-air saltwater pool and three salt spa experiences; heat, water and salt inhalation. The restaurant and visitors’ reception are located on the other side of the property and comprise a dining room, outdoor terrace, fire-pit and a public roof terrace.
別墅、水療中心和餐廳被一條貫穿的道路分隔開,這條道路為度假總規劃創造了一種非常規、充滿活力的城市氣息。這些建築和曆史悠久的石油泵在稀缺的沙漠景觀中為道路提供了一種存在感。
The Lodge, Spa and Restaurant buildings are divided by a through-road which creates an unusual and dynamic urbanity to the master plan of the retreat.The buildings together with the historical petroleum pump command a presence to the road in the scarce desert landscape and will become both a destination and stop-off for those who know and for those who then discover this new intervention.
∇ SPA立麵
完整項目信息
項目名稱:Al Faya Lodge
項目位置:沙迦
項目類型:設計酒店/精品酒店
項目麵積:500㎡
完成時間:2019
設計公司:ANARCHITECT
攝影:Fernando Guerra




















































