全球設計風向感謝來自 萬社設計 的商業項目案例分享:
ANGLE安格集合店是一家集合咖啡、藝術展示、及買手店為一體的生活概念店,與棟梁創始人Charles共同創立於中國深圳。項目位於深圳灣一號南區商業區內,建築麵積約300平方米。設計委托方希望此項目不僅隻是個買手店跟咖啡廳,可以具有更多功能跟趣味性的同時,能區別於傳統的買手店。
ANGLE is a lifestyle concept store in Shenzhen, China that combines cafe, art gallery, and boutique. It is co-created with Charles Wang, co-founder of DONGLIANG. The project is located in South Area of No.1 Shenzhen Bay with a 300 sq. m space. The client hopes to see not just a boutique & cafe but one that is multi-functional, fun, and can differentiate itself from traditional boutiques.
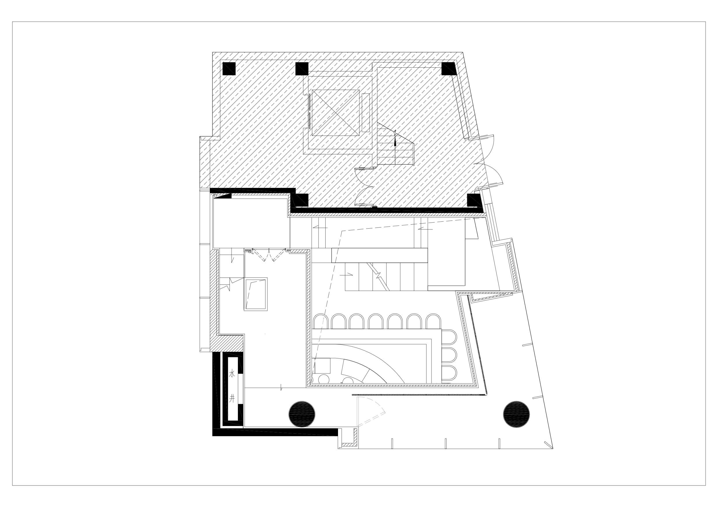
空間原本為兩個獨立樓層,VA建議增加樓梯將其打通,在拉動上下樓商業動態的同時樓梯亦可當作展台使用。一樓作為咖啡餐廳的同時可兼做美術館,二樓則作為高級女裝買手店使用。另外,VA在這個項目中希望通過階梯式的空間語言在滿足設計委托方功能要求的同時,將所有展品最大化展示,亦能使空間設計具備獨特的個性,在客人穿梭於一二樓之間的時候可感受不同的空間感及趣味性。
The space was originally two separated floors. VA suggested using stairs to connect them. While improving business dynamics, the staircase can also serve as an exhibition stand. The ground floor is a cafe that can also be used as gallery space; the second floor is a high-end womenswear boutique. In addition to meeting the client’s needs, VA hopes to maximize the opportunity to showcase exhibits and give the space more uniqueness through the spatial language of stairs. In this way, customers can feel different sense of space and playfulness when traveling between the floors.
同時,因項目位於深圳灣商業街道的轉角處,擁有著兩麵玻璃幕牆展示麵,考慮到安格二樓作為買手店的特殊屬性,VA選擇在結構上將櫥窗語言最大化融入在設計中,使櫥窗也成為室內空間的一個設計亮點。
Meanwhile, as it is located at a street corner, which allows it to have two continuous glass shop windows, VA chose to incorporate the art of window display to the greatest extent, making it a design highlight of the interior space.
外立麵設計 Facade design
考慮到安格作為買手店的特殊屬性,VA通過增加了兩層轉角櫥窗將立麵玻璃幕牆利用率最大化,使安格擁有足夠明亮的展示櫥窗讓人們從遠處能清晰的看到櫥窗展示。
Considering the attribute of ANGLE as a boutique, VA maximized the usage of the glass facade by adding two layers of corner shop windows, so that it’s bright enough for people to clearly see the display from a distance.
1.5 米進深的向外櫥窗展示區,在避免室外光汙染和玻璃反光的問題的同時亦使得店鋪的展示麵最大化,保證了室內光源的獨立性也讓衣物能以最完美的形式展示。
With a 1.5 m depth outward window display, it not only solves the problem of outside light pollution and glass reflection, but also maximizes the shop display space. This ensures the independence of interior light source, while showcasing the clothes in a perfect manner.
在商業氛圍濃厚的商業街轉角,安格的設計語言用自己的方式彰顯著個性。
At the street corner of this thriving commercial area, ANGLE’s personality shines through with its own design language.
室內部分 Interior design
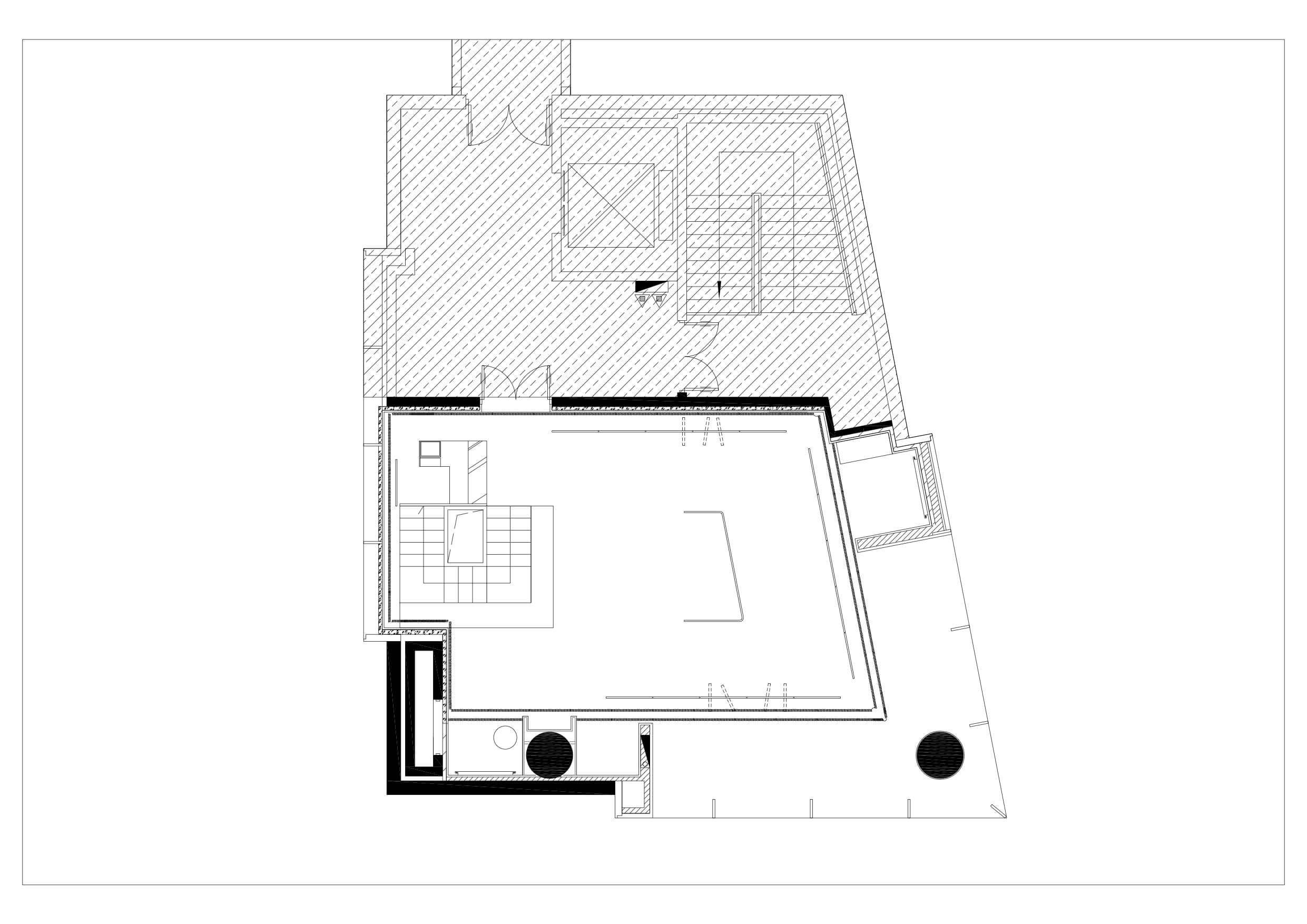
∇ 一樓空間概覽 Ground floor overview
∇ 層疊的空間使人們的行駛路線不同於以往的體驗 The layering of space provides people with a different routing experience from usual.
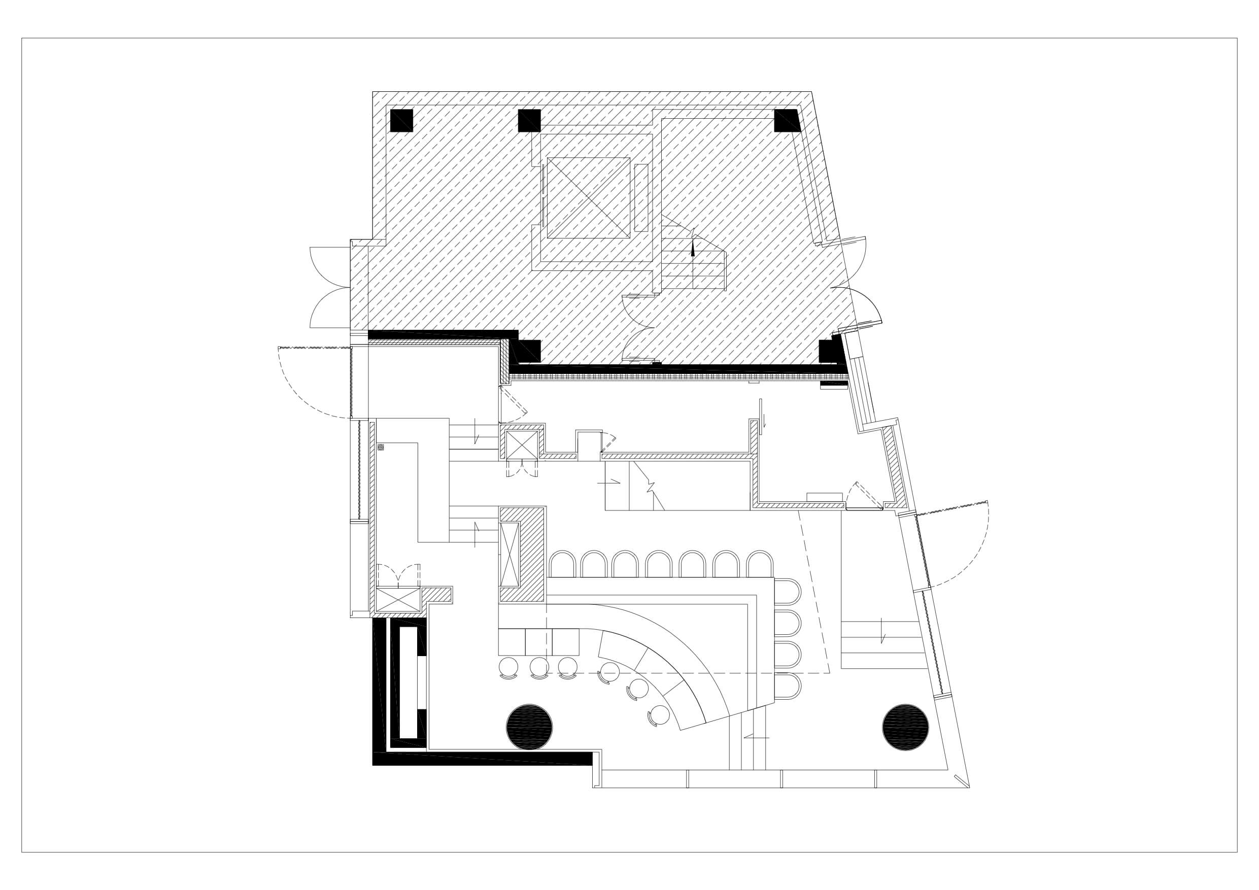
出菜口的設計如同一個精致的展示窗口;廚房則隱藏在了樓梯下方,充分打破了空間原本徑深的局限性,提高空間使用率。
The food deliver window resembles a delicate display window, with the kitchen hidden beneath the stairs. This perfectly breaks the limitation of the original space and adds in more depth, thus highly improves the utilization of space.
室內的階梯除了可以通向二樓,也可作為展覽平台使用。階梯式的語言將所有展品最大化展示,遞進式的動線引導客人在行走往上的過程中接觸到更多的產品。
While the staircase serves as the way to second floor, it can also be used for exhibition. The stair step design maximizes showcase of all exhibits. This progressive movement guides customers and exposes them to more and more products as they walk up.
富有層次感的結構,讓人們身處不同的位置欣賞到的景觀以及體驗到的空間感也會隨之變化-沿梯而上,風景各異。
The layered structure allows people to be able to see various views and feel different senses of space depending on where they stand.
岩石、胡桃木、紅色大理石、靛藍色皮質的碰撞使空間風格不受當下流行的影響,更持久且經典;而不同的空間層次感凸顯了不同材質與自然光之間的融合。
The mix-and-match of granite, walnut, red marble and indigo blue leather makes a timeless combination that is not easily affected by the current trend. The diverse spatial layers highlight the fusion of various materials and natural light.
∇ 在細節處體現出不同石材間的顏色質感及空間造型的碰撞 The details show the contrast in color, texture and form between two types of stone.
從入口處看,咖啡區域分成上下兩部分,處於最低位置的座位相對更私密且坐擁著最好的對外景觀麵。而上層部分的座位則能同時觀看到外部與室內的景觀,感官上更微妙,且不被前排客人阻擋視線。
Looking from the entrance, the cafe area is divided into upper and lower levels. Seats on the lower level are relatively more private and have the best outside view. Sitting on the upper level seats allows you to have both outside and inside views. This feels subtler without the worry of being blocked by the front row.
從外看整個空間由下至上蔓延,空間充滿張力且層次感,拉動人們的行走路線;增加空間趣味性的同時;利用了空間本身的高度突破了空間的使用限製。
From the outside, the entire space extends from the bottom up, which is full of tension and layering while creating more walking paths for people and adding playfulness to the space. By this means, the utilization of height breaks limitation of space.
∇ 更多的空間設計細節 More design detail
二樓買手店 2nd floor boutique
∇ 連接一樓吧台及二樓的展示台讓空間更具趣味性 The display stand that connects ground floor counter and second floor makes the spaces more interesting to explore.
∇ 收銀台及配飾展示台 Cashier desk and accessories display stand
∇ 遊走在純粹的胡桃木麵樓梯 Wandering around the walnut staircase
∇ 二樓買手店概覽 Overview of second floor boutique
幹淨、寧靜、以及舒適的環境讓人們可以更輕鬆的挑選喜好之物。矮台的高度可以當作展示台亦適合當作座位,可按情況隨時更換功能。展架包圍式擺放,方便顧客挑選及遊覽;避免形成死角區域。
The clean, quiet and comfortable environment makes the shopping experience very relaxing. The height of the low platform can be used as display stand as well as seats when needed. The display racks are arranged in a wraparound manner to avoid dead corners, so it is more convenient for customers to shop around.
窗簾外為獨立的櫥窗展示區,可在舉辦活動的時候打開窗簾與室內空間一起使用。
Outside the curtain is the independent window display area. When there is an event, it can also be combined with the interior space by opening the curtain.
夜晚景觀 Night view
∇ 在夜晚中的櫥窗,柔和、清晰、高級 The window at night looks soft, clear and high-end.
∇ 櫥窗與咖啡區域交錯的空間位置使室內更富趣味及特點 The spatial interlacing of window display and cafe area makes the interior more fun and unique.
∇ 夜晚的空間外,水池裏的水隱隱的反射著室內的景觀,如同連接著另一個世界 Looking from the outside at night, with the water in the pool reflecting the interior, it feels like being in the midst of another reality.
完整項目信息
項目名稱:安格集合店|ANGLE
設計公司:萬社設計谘詢(深圳)有限公司(https://various-associates.com)
主創設計師:楊東子、王左千
項目負責人:林倩怡
材料團隊:何李甜
項目地址:中國,深圳,深圳灣一號南區
狀態:完成於2018.09
項目麵積:300 sqm
攝影師:邵峰
Project name: ANGLE
Design team:
Design firm: Various Associates (https://various-associates.com)
Main designer: Dongzi Yang, Zuoqian Wang
Project leader: Qianyi Lin
Textile designer: Litian He
Project location: South Area, N0.1 Shenzhen Bay, Shenzhen, China
Status: Completed
Completion time: 2018.09
Project area: 300 sqm
Photographs: Shao Feng












































