這個位於聖保羅的100平方米公寓的項目提出了將兩個公寓(一個複式和一個較小的單層單元)聯合在一起的挑戰。其解決方案是利用較小公寓的入口,將其連接到夾層並將整個區域轉變為起居室。
The project for this apartment of 100m2, in São Paulo, offered the challenge to unite two apartments, a duplex and a smaller single floor unit.The solution was to take advantage of the entrance in the smaller apartment, joining it to the mezzanine and transforming the whole area into the living room.
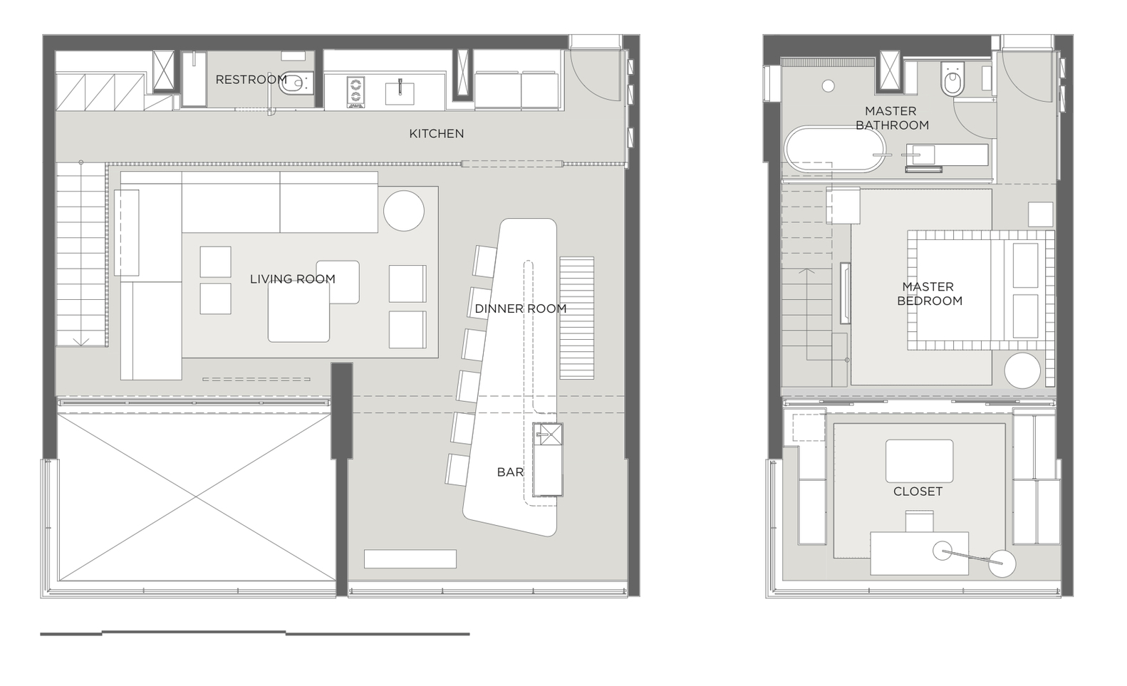
陽台與空間合並在一起,並放置了一張有酒吧功能的大桌子。空間中複雜的木質框架作為內部裝飾,隱藏了揚聲器、照明和空調組成,也與廚房空間、衛生間和樓梯通道的隔斷配合使用。
The balcony was attached and gave place to a large table in Corian which functions as a bar. A complex framework of wood composes the lining, hiding speakers, lighting and air conditioners, and also worked with partition for the kitchen spaces, toilet, and stair access.
房間被設計成一個獨立的酒店套房,原來的入口門被保留了下來。臥室裏有一間大浴室,由玻璃牆和百葉窗隔開,既保證了隱私,也保證了整體性。兩層樓高的陽台變成了一個壁櫥,裏麵還有一個小型的家庭辦公室。
The room was designed to function autonomously as a hotel suite – the original access door was maintained. A large bathroom, separated by a glass wall and blinds in the bedroom, guarantees either privacy or integration. The double-height balcony turned into a closet and still houses a small home office.
完整項目信息
項目名稱:Grid House
項目位置:巴西聖保羅
項目類型:住宅空間/現代風格
完成時間:2018
項目麵積:100平方米
設計公司:Studio Guilherme Torres
攝影:Denilson Machado – MCA Estúdio



















