LOFT中國感謝來自 樸居空間設計研究室(PUJU)& 無研空間設計研究室(WUY) 的住宅空間案例分享:
生活空間應該是一個避難所,它必須是你可以反思自己生活的地方。 —安藤忠雄
The space we live in should be a refuge where we can reflect on our life. –Tadao Ando
愛好與空間 likes & space
項目位於浙江省嘉興市海鹽縣一處高層住宅,麵積為120㎡。業主是一位成功的年輕企業主。和大多數90後一樣,喜好收藏手辦以及汽車模型。圍繞模型的理性、縝密,工業感,業主提出了對於空間的要求:黑白理性、靜默安然。
Located in a high-rise building in Haiyan County, Jiaxing City, Zhejiang Province, the project concerns the design of a resident with an area of 120m2. The owner is a successful young entrepreneur, and like most post-90s, is a keen collector of garage kits and car models. In line with their spirit of rationality, meticulousness and mechanicalness, the owner asks for a space imbued with reason and quiet through the use of black and white.
家宅與世界 home & world
通過抽離一切繁瑣的裝飾,通過光、無縫地麵、極簡家具、細節等在家宅空間裏創造一個自由世界。並借這片場所,讓人思考:好與壞、自由與禁錮。
In the absence of cumbersome decorations, a free world is created with the traversing light, seamless flooring and minimalist furniture, and induces people to reflect upon the good and the bad, freedom and imprisonment.
∇ 公區概覽 living room
黑色空間 black space
在空間的中心,抬高的地麵形成一個可以用來工作、遊戲、展示的“黑色空間”。通過隱藏的移門實現與周邊場所角色轉換的同時增加空間感與流通性。
In the center of the space, the raised ground forms a ‘black space’ that can be used for work, play, and display. The hidden sliding door realizes the functional transformation with the surroundings, adding to the sense of space and circulation.
∇ 臥室餐廳等被服務空間 bedroom & dinning room
∇ 服務空間 functional space
∇ 光 light
∇ 概念圖 concept
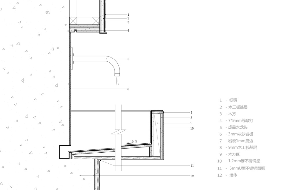
∇ 服務空間詳圖 functional space detail
完整項目信息
項目名稱:素胚靜舍
設計事務所:樸居空間設計研究室(PUJU)&無研空間設計研究室(WUY)
項目地址:浙江省嘉興市海鹽縣
建築麵積:120㎡
設計團隊:遙千 王欣 李婷婷 佘露露 Diamond
項目完成時間:2019-01
攝影:Purel
施工團隊:上海睦博裝飾
文字:Purel
翻譯:ELLEN
事務所網站:www.pujudesign.com
官方郵箱:pujudesign@126.com
家具品牌:Living、Cassina
Project Name: A Room of Black and White
Design: PUJU & WUY
Location: Haiyan County, Jiaxing City, Zhejiang Province
Area: 120m2
Participating Designer: Yao Qian, Wang Xin, Li Tingting, She Lulu, Diamond
Duration: 2019.01
Photographer: Purel
Construction: Mubo Decoration
Copywriter: Purel
Translator: Ellen
Email: pujudesign@126.com
Web:www.pujudesign.com
Furniture: Living、Cassina




























