房主是一名住在特拉維夫的單身城市男子,他在特拉維夫南部找到了一套36平方米的公寓。購買時的公寓破舊不宜居住,公寓分為兩層,總高度為5.8米,最初是用作商業空間的。
The owner, a single urban man who lives in Tel Aviv, has found a 36 square meter apartment in southern Tel Aviv. The apartment at the time of purchase was suitable for the budget however the property was seedy and uninhabitable. The apartment is its division into two floors, in a total height of 5.8 meters.Originally the apartment served as a commercial space.
室內設計師Nitzan Horovitz意識到這個項目將是一次獨特的冒險。首先是因為空間小,其次是因為空間的問題性質。另一方麵,業主想要一個愉快的、有設計感和舒適的地方居住。因此,舊公寓保留了樓梯和樓層劃分。內牆被拆除,支撐走廊的柱子被一根梁取代,各種用途也被改造。
Interior designer, Nitzan Horovitz, has realized that this project is going to be a unique adventure and certainly not a simple one. First, because of the small space and second because of its problematic nature. On the other hand, it was important for the tenant to create a pleasant, designed and comfortable place to live. As a result, in the old apartment remained the staircase and the division into floors. The interior walls were destroyed, a supporting column that held the gallery was replaced with a beam, and the various uses were transformed.
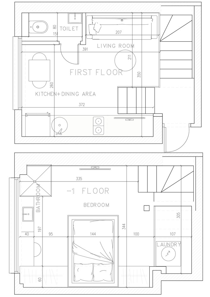
從建築物的樓梯開始,門通向一個入口,兩個樓梯分開:一個通往地下室,那裏是臥室和洗浴區,第二層是四層台階,進入畫廊層,那裏有一間客廳、一間廚房,廚房裏有一張餐桌和一個小衛生間。中央壁櫃已成為公寓的重要組成部分。當然,這也是一麵儲藏牆,用來連接兩層樓。壁櫃的深度為60厘米,門上裝飾著白色膠木飾麵和黑色條紋。
From the staircase of the building, the door opens to an entrance plain, from which two staircases are diverge: one leads to the basement, where the bedroom and bathing area are located, and second rises four steps into the gallery floor, where there is a living room, a kitchen with a dining table and a small toilet. Central wall cabinets have become a prominent component of the apartment.This is a storage wall, of course, which is used as a connection between the two floors. The depth of the wall closet is 60 cm and the doors are decorated with a white Formica finish with a black stripe.
此外,這裏還可以放一個大電視,電視後麵隱藏著一個電控箱和一個家庭影院係統。樓梯是用了獨特的設計,鋪有石墨瓷磚,而其餘的地板則鋪著天然的橡木拚花板。此外,三種主要材料在房子中脫穎而出——拚花地板、灰色瓷磚和白色膠木。
Moreover, the closet wall contains a large television, which behind is hidden an electrical cabinet and a home theater system. The stairs which are an important motif, paved with graphite porcelain tiles. The rest of the floor was covered with natural oak parquet. Moreover, three main materials stand out in the house – parquet, gray tile, and white Formica.
在地下室,有一張雙人床、床頭櫃、一台洗衣機和一台烘幹機,一個幹淨的淋浴間和一個小儲藏室。除淋浴間外,還有一張木桌,可作為洗手台和小型辦公桌使用。
On the basement level, there is a double bed, bedside tables, a washing and drying machine, a clear shower and a small storage room. Alongside the shower is a wooden table that functions as a sink table as well as a small work desk.
∇ 一層平麵圖&地下一層平麵圖 1F plan&basement 1F plan

完整項目信息
項目名稱:loft公寓
項目位置:以色列特拉維夫
項目類型:住宅空間/小宅概念
完成時間:2017
項目麵積:36平方米
設計公司:Nitzan Horovitz Architectural design studio
攝影:Oded Smadar



















