Bunsen餐廳最初是由廚師Tom Gleeson在都柏林創立的。他們在店內營造出一種都市和休閑的氛圍,在他們的第一家海外分店中,融入了周圍哥特式社區和當地酒吧文化的特色。牆壁上的窗簾讓人想起了典型的鄰裏酒吧,餐廳兩個入口之間的連接走廊則讓我們想起鄰近街道的通道。
Bunsen was originally founded in Dublin by the chef Tom Gleeson. Though as a brand they project an urban and casual atmosphere, for the opening of their first branch overseas, the restaurant incorporated recognisable features of the surrounding Gothic neighbourhood and local bar culture into its interior design. While curtains ornamenting the walls bring to mind the typical neighborhood bar, a connecting corridor between the two entrances of the restaurant remind us of passageways of the neighbouring streets.
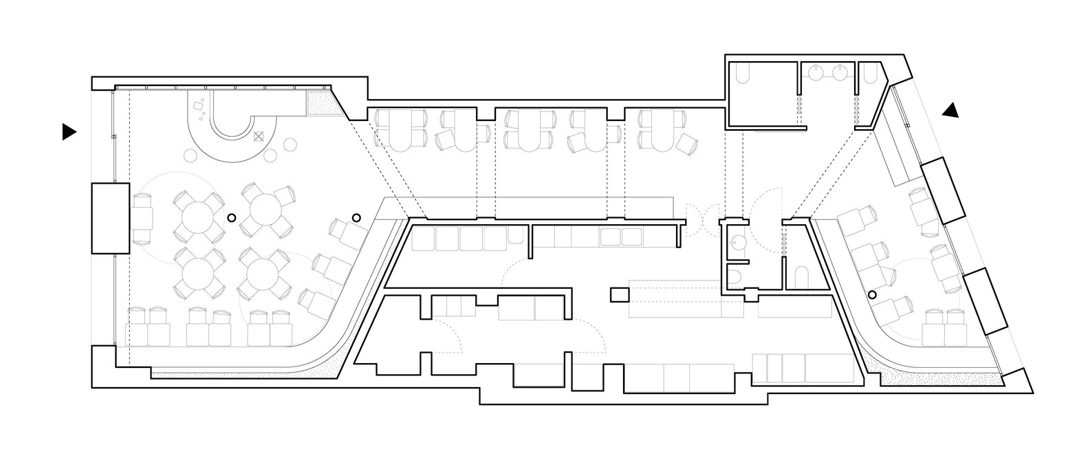
Bunsen餐廳的核心是一個陶瓷長椅,沿著餐廳的牆壁彎曲(這是我們現代主義傳統的一個亮點)。與該地區的其他設計一樣,它蜿蜒的形狀不是毫無意義的裝飾,而是與人體相適應的。沿著室內走廊上的加泰羅尼亞拱頂,這些有機的形狀與我們在當地建築和室內設計中找到的城市記憶相呼應。這不是一個封閉的餐廳區域,而是一個流動的開放空間——很像它所處的地中海文化一樣。
The centerpiece of Bunsen is a ceramic bench, which curves along the walls of the restaurant (a wink to our modernist heritage). Like other designs in the area, its sinuous shape is not gratuitously decorative, but also accommodating to the human figure. Along the Catalan vault constructed over the indoor corridor, these organic shapes play with the city’s memory we find encapsulated in the local architecture and interiors. The result is not a closed off restaurant area, but a fluid and open space – much like the Mediterranean culture it is situated in.
完整項目信息
項目名稱:Bunsen Restaurant
項目位置:西班牙巴塞羅那
項目類型:餐飲空間/餐廳
完成時間:2019
項目麵積:30平方米
設計公司:MESURA
攝影:Enric Badrinas
































