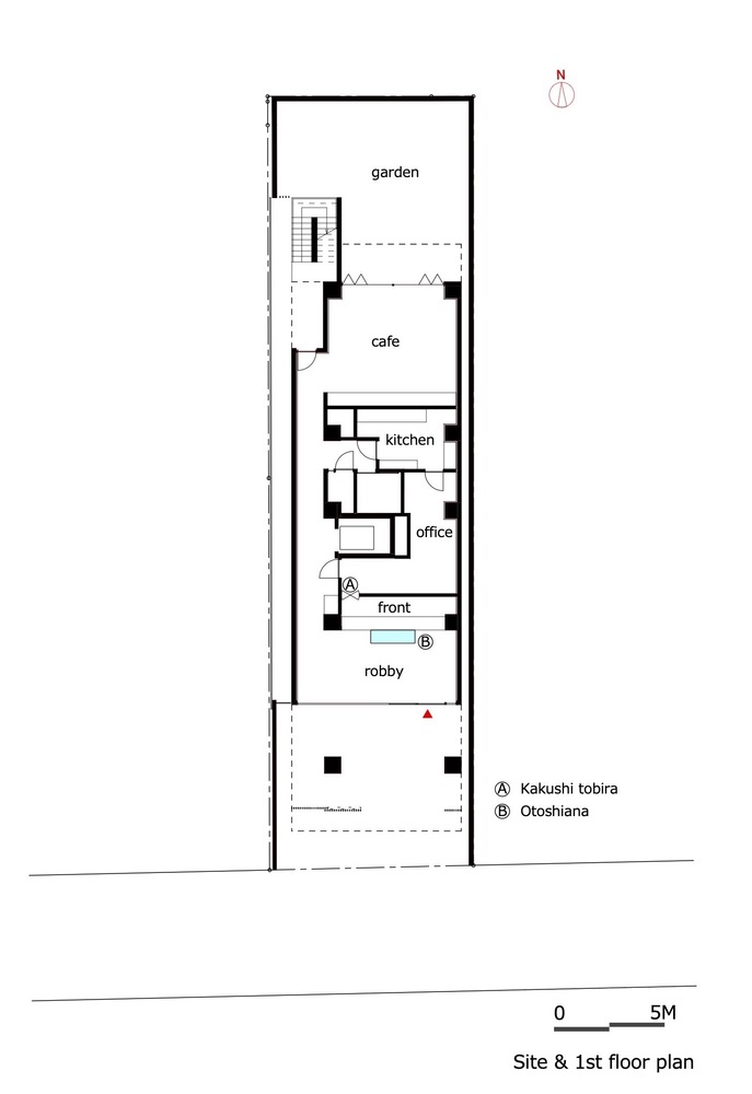
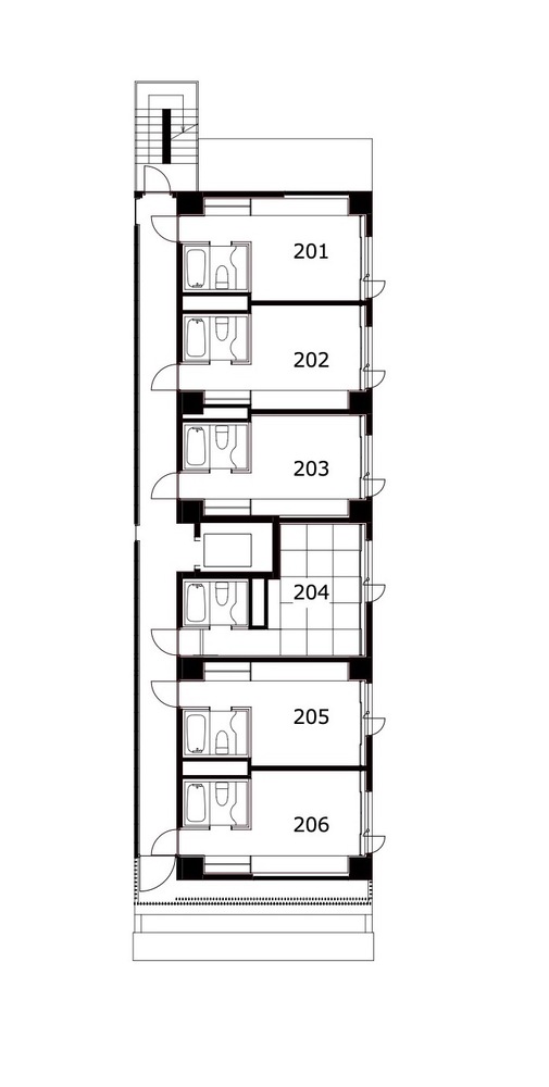
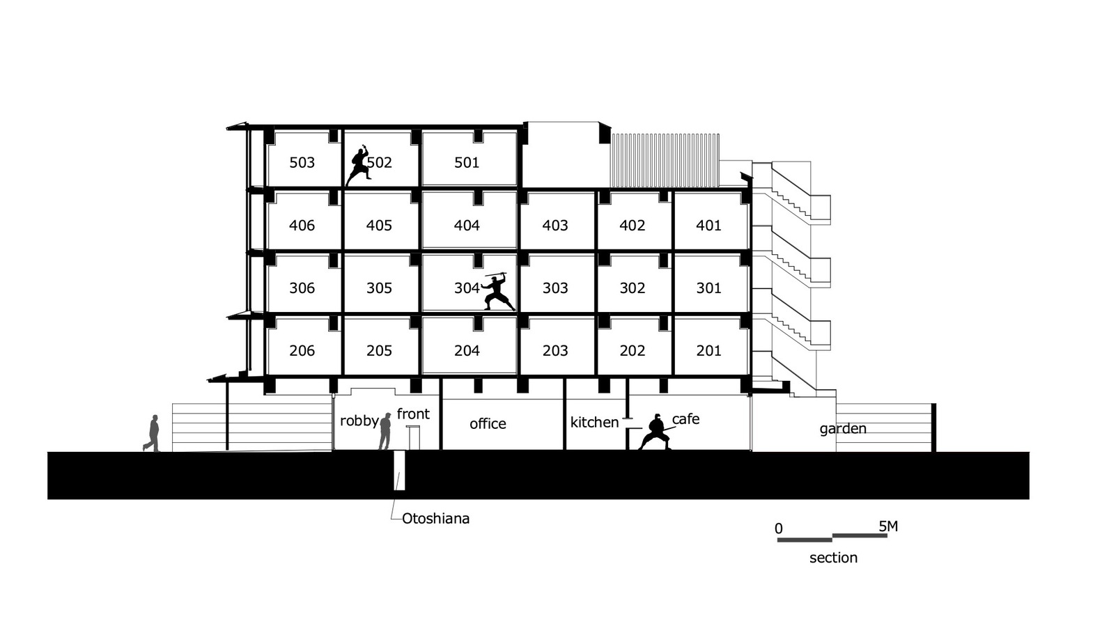
這是一家名為“Ninja Black”的酒店,是關於“影子”的。場地位於京都市中心,就在京都禦所西側,附近有房屋,小商店,公寓樓和酒店。這是京都這一塊典型的用地,寬9米,深35米,我們計劃了一個五層樓的小酒店,有21個房間。
This architecture is about “shadow”.It’s a hotel named “Ninja Black”.The site is located in the city center of Kyoto, just west of the Kyoto Imperial Palace, in an area populated with houses, small shops, apartment buildings, and hotels. We planned a small hotel of five floors with 21 rooms, on a plot of land typical in Kyoto, nine meters wide by 35 meters deep.
客戶來自附近的城市Kouga,幾個世紀以來這裏一直是忍者的故鄉。他甚至可能是忍者的後裔。在這個設計中,“忍者”對我們意味著什麼?忍者一直生活在並與“影子”聯係在一起,在他們看不見的地方,仍然可以發揮他們的作用。
The client for the design is from the nearby city of Kouga, known for centuries as home to ninja. He may well even be a descendant of ninja. What does “ninja” mean for us in this design? Throughout their history, ninja has always lived in and been associated with, “shadow”, where they can’t be seen, yet can still perform their role.
因此,這家酒店的“影子”設計理念誕生了:神秘,陰暗,沉默,但具有強烈的存在感。立麵的陰影多於實體,設計的目的是讓人聯想到忍者可能藏身於任何地方。整個立麵由日式百葉窗“koushi”覆蓋。屋簷也被添加到第一層,第二層和頂層之上,但外立麵的強烈印象來自於koushi。整個立麵實際上是由兩層koushi製成,每層都有一個交替的V形圖案,相互偏移半個跨度,加深了陰影感。
Thus, this hotel’s design concept of “shadow” was born: mysterious, shadowy, and silent, yet with a strong presence. The facade, with more shadow than substance, is designed to evoke the idea that a ninja could be hiding anywhere. The entire facade is covered by “koushi”, Japanese style louvers. Eaves are also added above the first, second, and top floors, but the strong impression of the facade comes from the koushi. The entire facade is actually made with two layers of koushi, each with an alternating V-shape pattern, offset from each other by half a span, to deepen the sense of shadow.
每一個單獨的百葉都被漆成一邊是棕色的,另一邊是黑色的,這樣當你從東麵接近酒店時,立麵看起來是棕色的,但是當你到達時,棕色逐漸消失,整個建築看起來是黑色的。室內圍繞著“黑暗”的概念設計,遊客在這家酒店可以體驗當忍者的感覺。
Each individual louver is painted brown on one side, and black on the face and the other side, such that when approaching the hotel from the east, the facade appears to be brown, but as you arrive, the brown fades and the whole building appears to be black. The interior is designed around the concept of “darkness”, as much as can be practically done for a modern hotel. Visitors experience tricks of ninja in this hotel.
∇ 區位圖
∇ 平麵圖
∇ 剖麵圖
完整項目信息
項目名稱:Hotel Ninja Black
項目位置:日本京都
項目類型:設計酒店/精品酒店
項目麵積:695.0平方米
完成時間:2019
設計公司:EASTERN Design Office
攝影:Koichi Torimura; Takashi Inaizumi, Jeffrey Friedl



























