西班牙語“Els Terrats”意為“屋頂”,也有延伸“Terrace”(陽台)的意味。在這不超過60平米的小空間內,卻有著幾乎一樣大的前後陽台;前陽台可俯視優美的庭園,後陽台更能遠眺巴塞羅那聖山蒙特塞拉特(La Mussara)。完工於 20 世紀的建築主體,至今依然保持良好;這窄小的頂樓小公寓過去是作為門房的居所,提供給管理員或清潔工休憩使用,直到門房過世,這空間才返還小區,並成為樓下住戶的使用空間。而對屋主來說,這間小公寓不隻是用來擴充居住範疇,更是打造一個獨立空間的絕佳機會。
設計團隊LoCa Studio明確指出了空間的用途,除了要獨立於原有住家之外,更要能成為閱讀、午睡、舉辦派對,還能享受大自然的一處世外桃源。因此在設計之初,設計團隊便決定打開前後陽台,讓西班牙一年四季的藍天與陽光,伴隨著自然山景和庭院景致,擁抱這處遺世獨立的絕佳空間。
打開大門再串連陽台,成為設計的第一步。前後門設置了大型落地窗戶,確保引進充足的自然光;陽台與室內的樓地板,也特地拿掉落差、設計成相同的高度,消弭室內外的明確界線,最後更以相同的材質鋪設路麵範圍,並以少量的牆減少視覺阻礙。讓前陽台、室內、後陽台一路連通,眼睛能毫無阻礙地看「穿」前後綠意。木作的厚實感與清新的白色成為空間的主色係,營造和緩自然的度假氣息,讓置身其中的人們能自在的享受生活與自然。
整體的設計保有原始建築結構,以木作和石膏作為主材質,搭配特色鐵件、磁磚與布料,注入個性與柔軟的質地。特別的是,設計師特地保留庭院的圍牆,卻打開入口處的天花板,設計成露天式淋浴間,讓屋主能自在地沐浴在天幕下,同時讓眼睛浸潤在綠意滿滿的山巒庭園中,打造出獨一無二的渡假小屋,座落在這車水馬龍的水泥叢林中。不管是閱讀、小憩,或是邀請三五好友 Party 聚會,這幢樓頂公寓無疑是都市裏的一方美麗淨土。
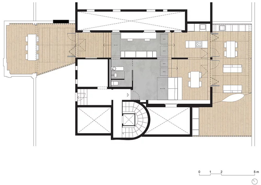
∇ 平麵圖 plan
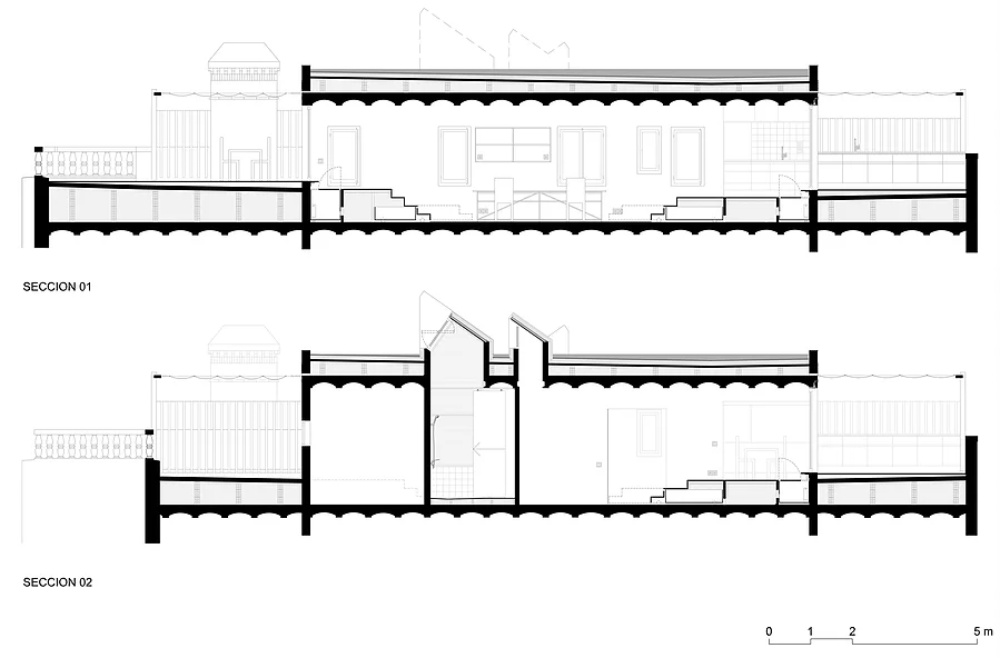
∇ 剖麵圖 section
主要項目信息
項目名稱:ELS TERRATS
項目地點:西班牙巴塞羅那
項目類型:住宅空間/頂樓公寓
項目麵積:60+60㎡
完成時間:2018
設計公司:LoCa Studio
合作者:Maria Lucia Cicero & Aina Alemany
攝影: Pol Viladoms






















