LOFT中國感謝來自 DHO國際設計 的住宅項目案例分享:
這個繁華的都市,很多人能左右某一個工作領域,卻左右不了生活的瑣碎。置身社會潮流,徜徉燈紅酒綠,卻滿眼荒蕪。放慢腳步沉澱下來,時刻保持理性,心存敬畏之心,思考人與物體的關係和需求、必須性和審美性的意義,虛懷若穀。
In the bustling city, many people can manage a certain field of work, but cannot cope with the triviality of life.Following the social trend, wander in the scene of feasting and revelry, nevertheless, full of desolation.Slow down your pace, settle down your heart, keep reason at all times, hold awe and veneration in mind. Think about the relationship between people and objects and their needs, as well as the significance of aesthetic, to be modest and extremely open-minded.
為了創作出獨特的東西,你的所有大腦神經必須集中在微小的細節上。 ——Giorgio Armani
In order to create a unique things, all of your brain must concentrate on the smallest details。 ——Giorgio Armani
本案傳承Armani品牌對生活的態度與內涵,將風格與流行重新定義,將工作融入生活,將品質賦予其中。用設計的語言重構生活與工作的空間關係,打造獨一無二的“總裁領館”,讓心靈和空間達到最理想的共生狀態。
This case inherits Armani’s attitude and connotation to life, redefines style and fashion, integrates work into life and endows it with quality.Reconstruct the spatial relationship between life and work with the design language, create a unique “CEO Residence” to achieve the ideal symbiotic state between mind and space.
現代簡約的都市輕奢風格為主,以穩重的高級灰和大幅的留白作為空間的點晴色,精致的金屬藝術品作為空間的點綴,營造出奢華高雅的空間氛圍。
Modern and simple urban light luxury style, with dignified gray and large area of blank as punchline, taking delicate metal artwork as embellishment, creates the luxurious and elegant space atmosphere.
激光投影幕牆立於燈帶之上,智能收納,滿足商務一族的任何需求。
Laser projection curtain wall stands on the lamp belt, intelligently retractable, to meet various needs of the business clients.
∇ 開放式餐廳、吧台 Open Kitchen & Bar Counter
以平麵和直線造成視覺的通透感,木飾頂麵、牆麵、推拉門共同組成了廊道的主色調,於無形之間界定了空間的節奏,用帶有邏輯的自然過渡切割梳理,並重新定義空間的姿態。
A visual sense of clear and transparency is created by the design of plane and the straight line. The main tone of the corridor is composed of wooden top surface, wall and sliding door, which defines the rhythm of space invisibly, combining the natural transition with logic, also redefines the posture of space.
∇ 廊道 Corridor
房間寧靜舒適,一盞明燈,於素雅中見莊重,極具品位,與主人的職業身份非常貼切,置身其中,便能體會其柔軟、強烈、安靜亦或神秘。
The bedroom is quiet and comfortable, with a bright lamp, solemn and elegant,which is very close to the occupational identity of the owner. Once in it, you can feel its softness, intensity, quietness and mystery.
∇ 主臥室 Master Bedroom
簡約大氣,摒棄華而不實的裝飾品,突出富有張力且充滿睿智的空間,打造一種全新的辦公與生活體驗,於無形中感受置身其中的理性感,這便是“總裁領館”帶來的魅力所在。
Simple and generous. Abandon the flashy decorations, highlight the tension and wisdom of the space, create a totally new office and life experience. Rationality can be perceived intangibly, which is the charm of the “CEO Residence”.
∇ 辦公室 The Office
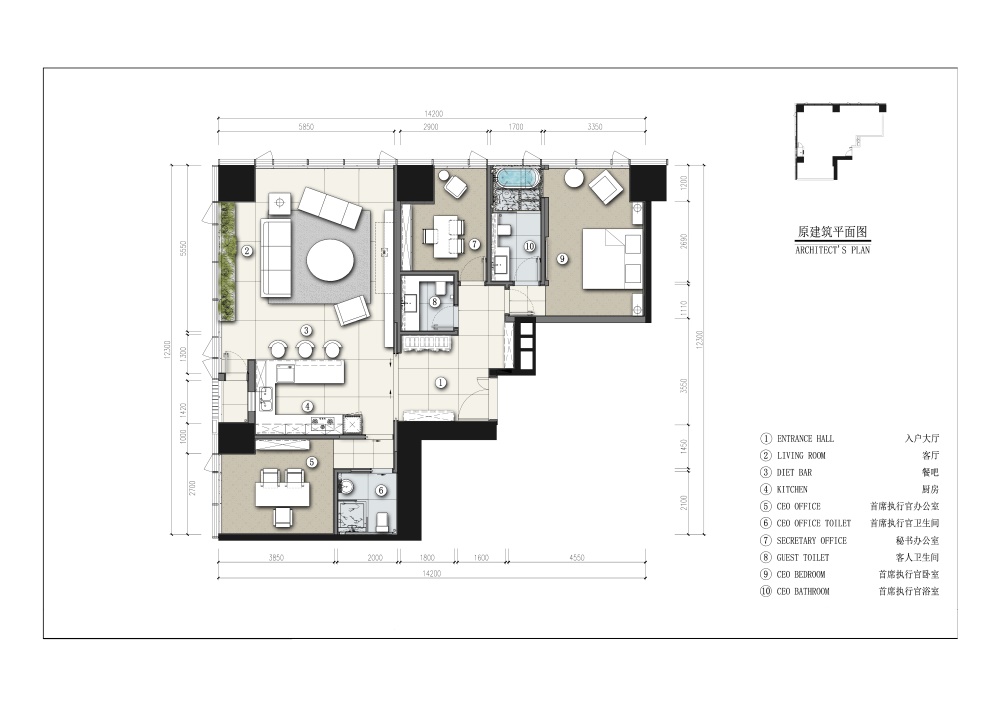
∇ 平麵圖
完整項目信息
項目名稱:深圳京基禦景峯總裁領館樣板房
設計師/設計公司:洪德成Lucas Hung、蔣瑩/DHO國際設計
公司官網:www.dhd.hk
聯係郵箱:marketing@dhd.hk
完成年份:2019.03
建築麵積:132平方米
項目位置:中國深圳
攝影師:Mendowong
聯係電話:13502898156
公司負責人微信號:dhd18320925056
























