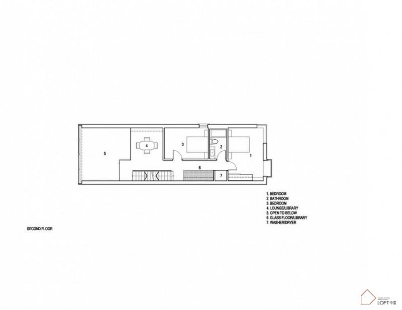
由於眾多的維多利亞式和愛德華式建築,你站在這古老的街道上就好像是在觀摩某個藝術品展覽,多倫多海灘就是因為這個原因才被稱為最受歡迎的旅遊勝地之一。一對喜歡當代建築風格的夫婦買下了這裏一棟破舊的,曆史悠久的愛德華式建築,而且,夫婦倆決定把這個總麵積1250平方英尺的房子改造成一個理想的居住之所。這座始建於1930年的老房子需要注入太多的現代元素才能把原來的古老陳舊變成如今的舒適宜居。為此,Johnson Chou Inc設計團隊的室內設計師們不得不在這裏施展身手,像變魔術那樣造出一個有創意的現代家居,同時,設計還不能對悠久的建築帶來任何傷害。
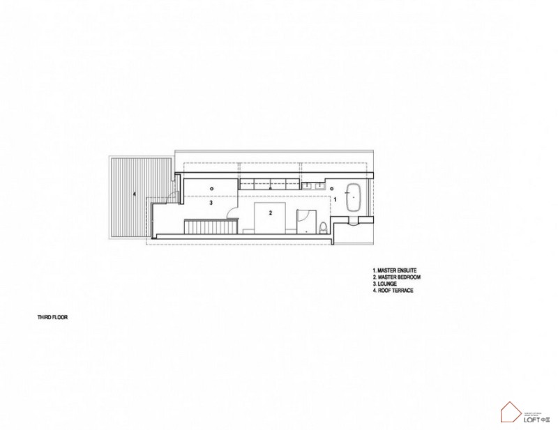
整個室內改造的經費是70萬美元,設計師們沒有隨意更改房屋本身非常有特點的部分,比如尖尖的斜屋頂,還有建築物前麵那堵高大的三角形的山牆。當你踏入大門,展現在你眼前的是具有當代設計風格的新穎的家居空間。這個原本雜亂陰暗的房間被徹底改造了一番。光是看那寬敞的開放式客廳,你就會感覺到這絕對是一個舒適的住所。閣樓被改造成了主人的臥室,並特意設計了一個可以俯瞰花園的挑高台,通過一架鋼製樓梯與下麵連在一起。看看照片,你就知道有多完美。
Photos © Tjeerd Derkink
版權聲明:本站所有文章除投稿授權發布外,其他文字內容均為原創,享有著作權保護,未經許可不得以任何形式進行轉載(包括且不限於:媒體、網站、公眾號等)。所有項目照片/設計圖形版權歸原作者所有。本站部分內容源自網絡公開資源或用戶分享,如若侵犯了原作者的合法權益,可聯係我們進行處理。





























