Karakoy閣樓位於土耳其伊斯坦布爾。這是由設計師Ofist設計的工業風格的室內設計。Karaköy閣樓是一個45歲的單身漢的180平方米(1937平方英尺)複式住宅,在伊斯坦布爾的中心,其背麵是一個古老的亞美尼亞教堂和加拉塔橋塔。
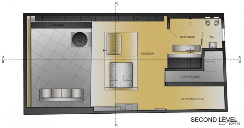
Karaköy一直在伊斯坦布爾的商業中心。房子的設計方法是“不要有太多的想法”。我們作為一個整體地評估了整個房子。因為它的布局是被設計為單人使用,所有的空間規劃到一起,沒有必要將空間分成許多小室。因此,我們並不需要不同的設計思路去設計不同的房間。
一個非常簡單的係統設計,沒有分類的客廳、廚房、圖書館或臥室。所有夾層,表麵覆蓋著水泥基材料,給人一個裸腳愉快的感覺。這種表麵運用在地板周圍,包括淋浴。
版權聲明:本站所有文章除投稿授權發布外,其他文字內容均為原創,享有著作權保護,未經許可不得以任何形式進行轉載(包括且不限於:媒體、網站、公眾號等)。所有項目照片/設計圖形版權歸原作者所有。本站部分內容源自網絡公開資源或用戶分享,如若侵犯了原作者的合法權益,可聯係我們進行處理。




























