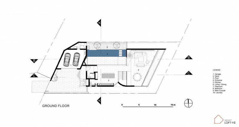
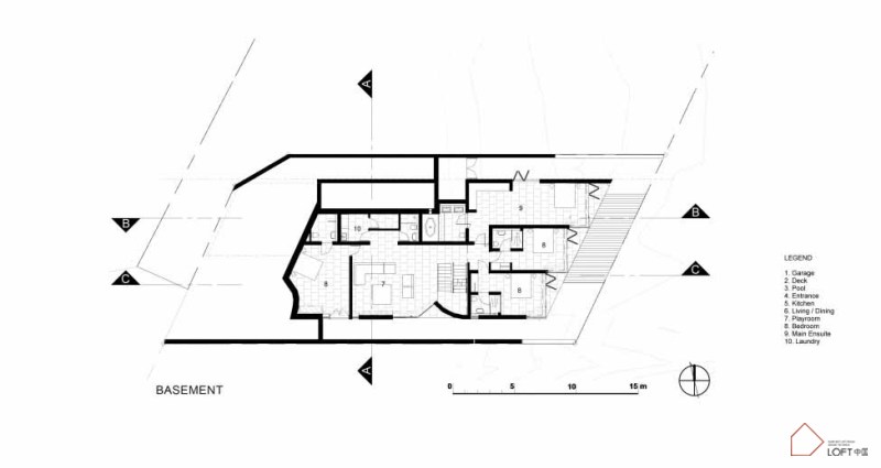
銀灣鄉村度假酒店別墅是由建築公司SAOTA與安東尼協會工作室的室內設計師共同設計。該酒店屬於年輕一族喜歡的酒店,位於南非雪萊點。建築師的主要任務是創建一個戶外休息區和一個內部空間,專注於一個美麗壯觀的全景。
房子的入口處被設計在上層,而臥室、浴室則位於別墅底部的生活區。全景窗戶可以讓您欣賞到海灣的景色,並通過院子將強風從一個方向帶到遊泳池的另一邊從而解決了海灣強風的問題。開放式的客廳、廚房和飯廳讓他們成為一個整體。針對混凝土和玻璃的軟化元素的背景行事茅草和木材裝飾。內飾的幾件家具的組合來表示,調整到一個舒適的住宿。
版權聲明:本站所有文章除投稿授權發布外,其他文字內容均為原創,享有著作權保護,未經許可不得以任何形式進行轉載(包括且不限於:媒體、網站、公眾號等)。所有項目照片/設計圖形版權歸原作者所有。本站部分內容源自網絡公開資源或用戶分享,如若侵犯了原作者的合法權益,可聯係我們進行處理。






















