LOFT中國感謝來自 ZZARCH自造設計 的辦公室項目案例分享:
辦公空間的靈活性 The mobility of office space
AUBE歐博設計分部位於萬科雲設計公社,是集辦公、展覽、講座、分享、會客等複合型空間。
AUBE Architectural Engineering Design Co., a multifunctional space of office、exhibition、talks、reception and various events located in Shenzhen Vanke Cloud Design Corporation.
∇ 項目外觀
自造設計認為設計公司的辦公室,除了伏案工作之外,還是多向交流的場所,為了滿足功能的不確定性,從而確定了靈活性。
ZZARCH believes that a design company should aim to provide a communicative space besides working only at a desk.
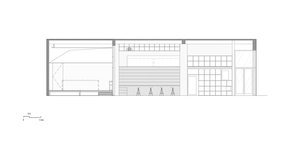
功能布局 Function Layout
功能分成固定功能和靈活功能,將固定功能放置在夾層區域,以滿足其它區域最大的靈活性。
The functions are divided into fixed and flexible ones, fixed functions are placed on the mezzanine floor to maximize the mobility of the rest of the spaces.
大階梯的不同性格 Various character of the big stair
大階梯是講座空間的常用形式,為了使功能更好地轉換,設計師將標高1米以下的踏步去掉,變成活動的盒子,同時標高1米的踏步可轉為臨時辦公的桌麵。
A big terrace room is a common form of a lecture space. For switching well between functions, the designer demolished the steps below 1 meter and transformed them into moving boxes, while the steps above could be renovated into temporary office desks.
戶外空間作為室內空間延伸,設計師將室內地麵材料也延伸到戶外,架高的區域設置為休息區,材料展示區和儲物間,同時也是室內功能的延伸。
We use the same floor material for the outdoor space and interior space for visual continuity. Outdoor resting area, material area, and utility room are provided on the higher platform of the semi-outdoor place.
主要項目信息
項目名稱:歐博設計辦公室
設計單位:ZZARCH 自造設計
聯係郵箱 admin@zz-arch.com
聯係電話:13430817199 18588227656
項目設計&完成年份:2018.12 & 2019.10
設計團隊:陳誠,楊嘉惠,張皓,周鈺婷
項目地址 萬科雲設計公社,深圳
建築麵積 200平方米
攝影版權:張超
客戶:深圳市歐博工程設計顧問有限公司






























