LOFT中國感謝來自 一夕(深圳)設計顧問有限公司 的商業空間項目案例分享:
正安中醫館位於深圳福田CBD,設計師與業主懷揣同樣的願景,都希望能創造一個顛覆傳統的醫館空間。正安中醫品牌本身也擁有深厚而開放的文化背景。“牌匾、中藥櫃、藥師佛” 這些特質元素背後傳達著“信仰、專業、匠心與真誠”,讓我們重新發現中醫太美。
設計師采用“客廳”的概念打造公共空間,激發出多元的社交活動。營造出一個“平和謙遜而有設計感”的醫館空間氣質,以烘托出獨特的就醫體驗。
公共客廳的整個空間通透,不帶有任何鮮明中式符號化的烙印,“無”形式、“無”修辭,顯出開放與自由。設計師未賦予醫館任何“風格”,悉心選擇材料、構件,令其中的一器一物成為主體。並通過木架的形式統籌起等候、調劑、收銀、水吧及展示和宣傳等功能區。此時自然質樸的實木條在設計師眼中有了新的定義,即是劃分、圍合空間的構件,也留給使用者未來宣傳展示、裝飾的一種可能性。
很難想象這樣的醫館竟坐落於CBD的寫字樓中。沒有自然光線反而更不會被外界所打擾。古香古色的木質中藥櫃,是從老店直接沿用過來的,與前麵的水磨石長調劑吧台形成鮮明的對比。這種新與舊的“混淆感”似乎在這個空間裏隨處可尋——上方裸露的工業化管道,與不乏傳統印痕的家具陳設共成一體。這一切都映射出品牌理念所蘊含的東方智慧。
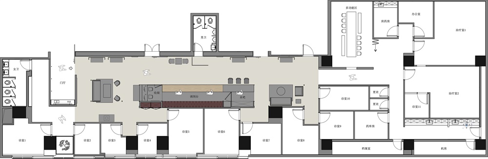
∇ 平麵圖
∇ 細節木架結構
∇ 視頻
∇ 剖麵圖
∇ 立麵圖
主要項目信息
項目名稱:深圳正安中醫館品牌旗艦店
設計公司:一夕(深圳)設計顧問有限公司
主創設計師:邱希雯、朱玲
聯係郵箱:szyixidesign@126.com
完成年份:2019年1月
建築麵積:500平方米
項目位置:深圳市福華路319號兆邦基金融大廈4樓
家具品牌:梵幾
主要材料:稻草漆、水泥漆、水磨石、橡木、樺木等
攝影師:李冬菁




























