據建築師介紹。距離高崎市的群馬縣有50分鍾的車程,你會在一片介於鄉村和城市之間的地方看到一棟兼具住宅和商業的建築。建築正好位於高速公路旁,這樣的地理位置正好是一個關鍵點,我們希望可以結合住宅和商店兩個概念在一起。
為了使建築能作為商店使用,它需要有一個商業形的外表。因此,我們決定把整個建築變成一個巨大的招牌。外部的空間將為內部的空間吸引人氣。內部的空間則將表達整個空間。考慮到建築必須同時滿足這兩個用途,建築被設計成可以時刻吸引外麵公路上司機的注意力。為了展示這個建築的外形和體積,我們設計出了基址圖。
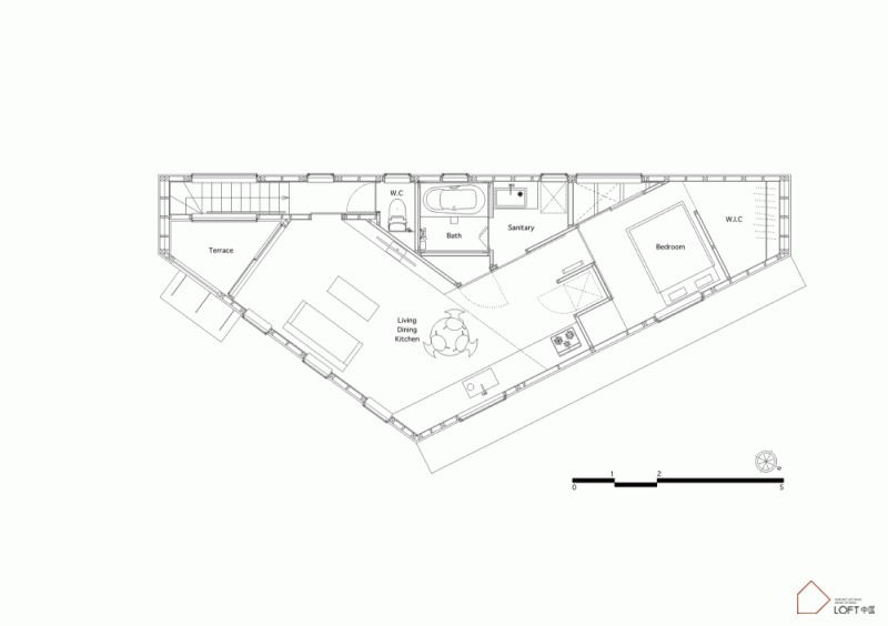
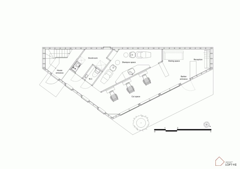
我們決定將建築的一樓設計成商業區,將二樓設計成住宅區。一樓為了可以吸引路人的注意,設計了一個寬敞的入口。二樓為了防止路人可以看見建築內部,設計了一個幾乎看不見的入口。通過樓上的窗戶,住戶可以看到建築周圍的美麗風景。這些窗戶還可以為室內提供充足的光線。
Photos © Plajer & Franz Studio
版權聲明:本站所有文章除投稿授權發布外,其他文字內容均為原創,享有著作權保護,未經許可不得以任何形式進行轉載(包括且不限於:媒體、網站、公眾號等)。所有項目照片/設計圖形版權歸原作者所有。本站部分內容源自網絡公開資源或用戶分享,如若侵犯了原作者的合法權益,可聯係我們進行處理。




































