這間帶後花園的複式私人住宅是由Tamir Addadi建築事務所設計。住宅位於英國倫敦,於2010年完工。該項目的主要目標是使得後花園和房子之間關係和諧,讓大自然在家庭的日常活動中發揮顯著作用。該項目位於一個維多利亞式的房子旁的保護區內。
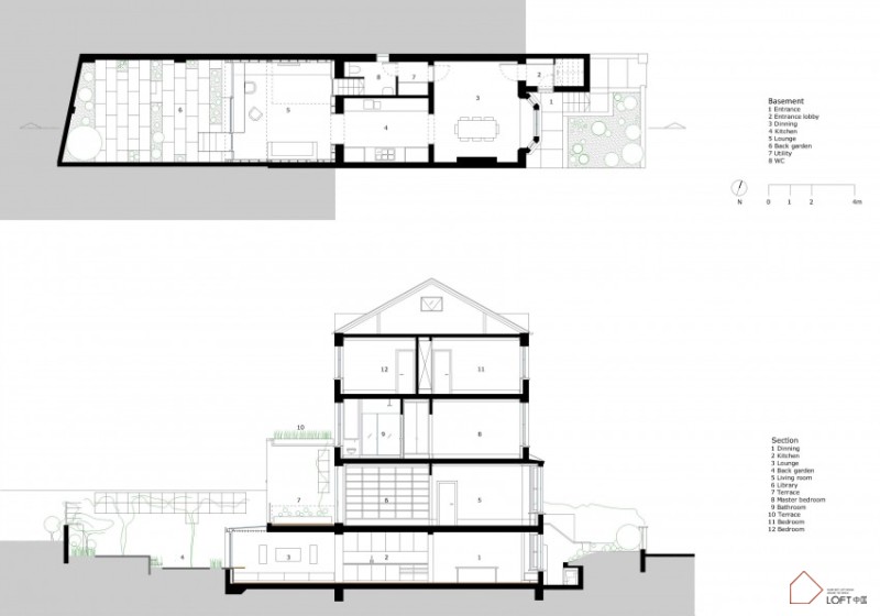
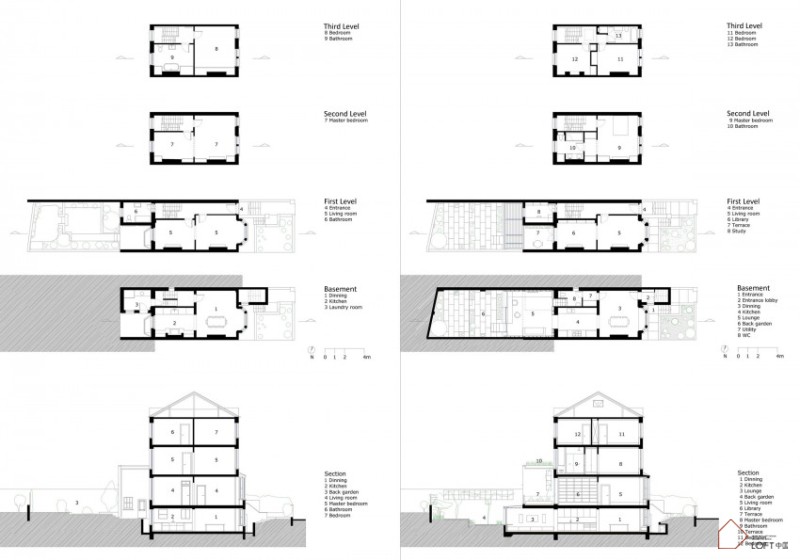
原始建築中,家裏的後花園占地麵積是最小的。花園的景很狹小的,並且唯一能到達的方式是穿過位於地下一層和地上兩層之間的雜物間。
設計師挖大後花園並且擴展地下室,以適應新的休息室。該設計的目的是實現花園和內部空間融合在一起的感覺——休息室即是內外部空間的過渡空間。花園的平台延伸到了休息室,形成底壁。木吧台延續了花園的地板高度,水平的儲藏間呼應了花園的平台形狀。木質休息室的玻璃天花板將光在花園和內部空間中逐步水平過渡。
設計師的目標之一是將地下室——最初僅包括一個廚房和一個餐廳一個多用途的區域。設計成一個新的休息室,家人都可以就餐、工作、放鬆、玩耍和娛樂。設計師還增設了一個廁所和一個雜物間,還有一個新的可以直接從街上進入的獨立入口。設計團隊的工作還包括設計定製的木製家具,還有廚房設計、景觀設計以及項目管理。
Photos © Studio Dwell
版權聲明:本站所有文章除投稿授權發布外,其他文字內容均為原創,享有著作權保護,未經許可不得以任何形式進行轉載(包括且不限於:媒體、網站、公眾號等)。所有項目照片/設計圖形版權歸原作者所有。本站部分內容源自網絡公開資源或用戶分享,如若侵犯了原作者的合法權益,可聯係我們進行處理。























