Narrabeen住宅是CHROFI事務所在2009年完成的住宅項目,位於澳大利Narrabeen。“Narrabeen的郊區宅基地和街道布局是由20世紀初的澳大利亞城市規劃信奉的‘花園郊區’作為理想的特征。2009年,Narrabeen住宅落成於兩戶家庭住宅之間,以一個安靜、綠樹成蔭的街道為環境背景。它是一個安全、熟悉的環境。平靜的淡水環礁湖流過每家的後院通向海洋。
Narrabeen住宅上演著財產的背麵和正麵之間的戲劇性反差-Narrabeen環礁湖一邊,在不起眼的郊區街道尋找這個‘郊區夢’。我們刻意保留房子以便呈現給公眾,而內心在追求綠洲的想法在有水的地方可以得到實現。實際上,是在放大街道和環礁湖之間的差異。
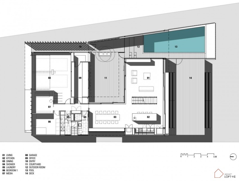
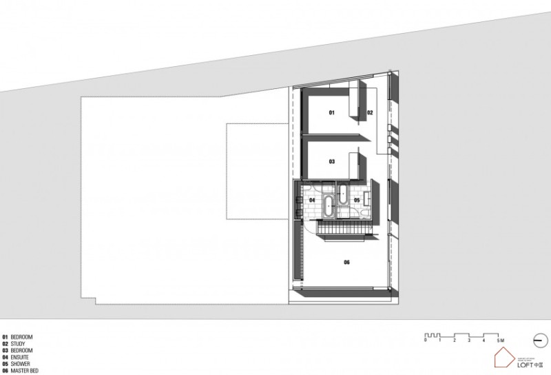
這裏設計了兩個關鍵的規劃策略。首先,中央庭院引入作為主要組織元素與所有房子的關鍵共享空間規劃-客廳、飯廳、廚房、書房和遊泳池-周圍的庭院組合在視覺上連接這些空間,物質上,這些院牆被打通,這樣的安排促進了社會動態的包容性,以及提供了延長房子空間的機會。院子裏也受到明顯的環境作用,為房子的中心帶來了陽光、光線和新鮮空氣。”
Photos © Jomar Bragança
版權聲明:本站所有文章除投稿授權發布外,其他文字內容均為原創,享有著作權保護,未經許可不得以任何形式進行轉載(包括且不限於:媒體、網站、公眾號等)。所有項目照片/設計圖形版權歸原作者所有。本站部分內容源自網絡公開資源或用戶分享,如若侵犯了原作者的合法權益,可聯係我們進行處理。
























