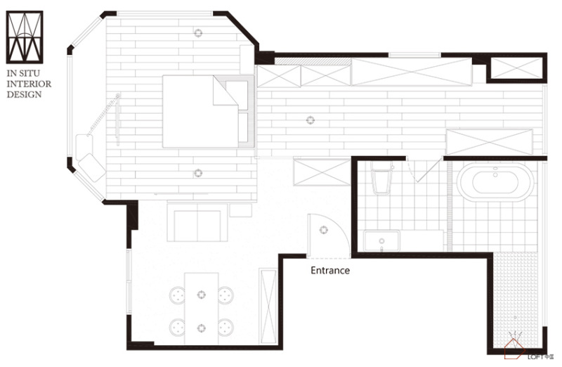
小空間打造工業風最怕黑色鐵件占比太多,讓室內區域變沉重,記得調整一下色彩比例,加入白色牆麵運用,擁有明亮感同時減少壓迫!就像來自台北 隱室設計 In situ interior design 的單層小套房改造分享,新婚夫妻剛成家與家人分層居住,僅有 42平米套房需要容納客廳、餐廳、臥室與浴室,格局恰巧跟許多租屋族相同,為了增加可用麵積,隔間運用鐵件搭配傳統花玻璃,形成半遮蔽又同時讓采光更好,再加些老件燈飾,多些混搭老氛圍。

而工業風不可缺少的鐵櫃,借由木頭、衝孔板、綠色色彩變化,玩出不同工業風獨特感受,譬如說玄關綠色鐵件拉格收納櫃,與常見黑色收納櫃比較下來活潑感瞬間提升。設計師另外再加碼,喜歡花磚的屋主,不見得隻能放在廚房當點綴,也很適合用於浴室地麵,透過不同排列方式,會有多種視覺變化喔,下次改造家裏不妨嚐試看看!









Photos © In situ interior design
版權聲明:本站所有文章除投稿授權發布外,其他文字內容均為原創,享有著作權保護,未經許可不得以任何形式進行轉載(包括且不限於:媒體、網站、公眾號等)。所有項目照片/設計圖形版權歸原作者所有。本站部分內容源自網絡公開資源或用戶分享,如若侵犯了原作者的合法權益,可聯係我們進行處理。









