在台灣,居家空間常用大量裝修營造空間氛圍。反觀歐美居家空間,則喜愛保留空間原本樣貌,以色彩、燈飾及經典家具來增添空間的趣味性。你也是經典設計家具愛好者嗎?讓我們一起來看看來自甘納設計的案例分享!

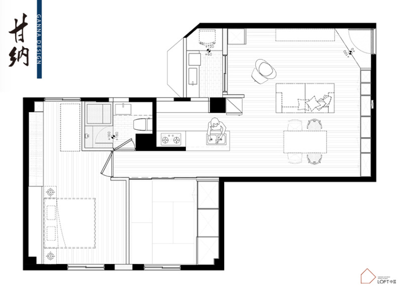
屋齡 30 年的老屋,在設計師安排下,讓69平米的小空間在視覺上變得更寬廣舒適。空間中的日本建築語彙不難發現屋主對於日式空間的喜愛。起居空間中客廳與餐廳兩道主視覺牆麵以水泥粉光處理,而臥房等其他壁麵則以珪藻土勾勒出紋理,讓視覺上產生不同層次。餐廳壁麵則搭配塗以藍色裸裎管線,使空間感更為活潑立體,與一旁柔藍色挑高書櫃相對應,形成空間中有趣對話。而家中另一特色為屋主所收藏的餐椅,亦展現男主人對於挑選家具獨到的品味,也使整體空間增加了話題性!










Photos © 甘納設計
版權聲明:本站所有文章除投稿授權發布外,其他文字內容均為原創,享有著作權保護,未經許可不得以任何形式進行轉載(包括且不限於:媒體、網站、公眾號等)。所有項目照片/設計圖形版權歸原作者所有。本站部分內容源自網絡公開資源或用戶分享,如若侵犯了原作者的合法權益,可聯係我們進行處理。









