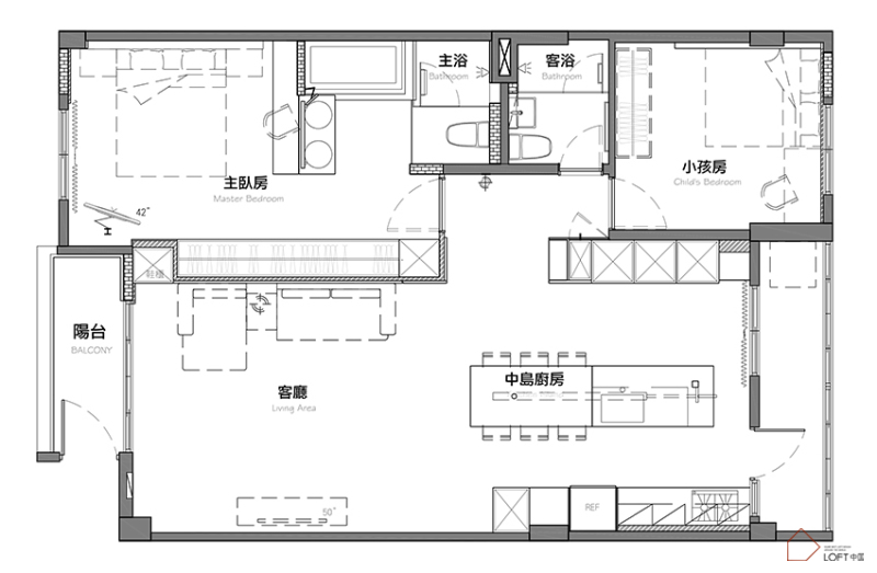
這間屋齡超過30年的老公寓位於台灣省台北市大直,由台灣本土PMK+Desingers 公司設計。設計師把近年來流行的都會loft風格帶入居家空間,呈現屋主所喜愛的 Hipster 生活氛圍。在132㎡空間中,選用原始、不作過多處理的建材,再搭配簡單的色彩。開放的公共空間、不受拘束的動線,使居家空間能被靈活的運用。
材質選用上,除使用歐洲老屋所拆卸下的舊磚石為主視覺牆麵外,其它則選用簡潔利落的建材作搭配,讓空間在視覺上有放大效果。不做天花板,保留既有挑高的空間感,搭配明管設計呈現Loft風格。因家庭成員較少的關係,空間設計采用大膽的突破,主臥廁所及臥室不作實牆隔間,讓浴廁空氣更為流通。公共空間中的廚房,以中島吧台,結合長型餐桌,讓工作區域得到延展,成為多功能的工作桌。在朋友來訪時,因應活動的需求,也能有更多不同的組合變化。
Photos © PMK+Desingers
版權聲明:本站所有文章除投稿授權發布外,其他文字內容均為原創,享有著作權保護,未經許可不得以任何形式進行轉載(包括且不限於:媒體、網站、公眾號等)。所有項目照片/設計圖形版權歸原作者所有。本站部分內容源自網絡公開資源或用戶分享,如若侵犯了原作者的合法權益,可聯係我們進行處理。























