全球設計風向感謝來自 吉度室內設計工作室 的娛樂空間項目案例分享:
樓頂轟趴館位於常州地標性建築——月星環球館,是一個綜合性的娛樂休閑場所,可舉辦公司年會、產品培訓、生日派對、手遊競技……
LD.HOME PARTY located in Changzhou landmark – YUEXING HUANQIU Pavilion, it is a comprehensive entertainment and leisure place, which can hold annual meetings, product training, birthday parties, mobile games……
樓頂,取意是露台,既與外界有所隔離,而又不是封閉的娛樂環境,在放鬆的同時感受到與大自然的溝通。
The roof is a terrace, which is isolated from the outside world, but not a closed entertainment environment, so that customers can relax and feel the communication with nature at the same time.
∇ 門頭與外立麵 Door head and facade
輕娛樂,是現代年輕消費人群的休閑方式。本案以輕盈明快的色調來突出整體氛圍,讓人在裏麵正直的放鬆。以30%的灰為主色調,恰到好處的表現了既不輕佻又不沉重。
Light entertainment is the leisure way of modern young consumers. This case highlights the overall atmosphere with light and bright colors, so that people can relax upright inside. With 30% gray as the main color, the performance is not frivolous and heavy.
∇ 水吧台 Wate bar
摒棄多餘的裝飾,專注娛樂的本身,是本案追求的設計宗旨。運用材質色彩與質感的細微變化強調空間的獨特氣質。
Abandoning the redundant decoration and focusing on the entertainment itself is the design purpose pursued by this case. The subtle changes of material color and texture are used to emphasize the unique temperament of space.
∇ 活動大廳 Activity Hall
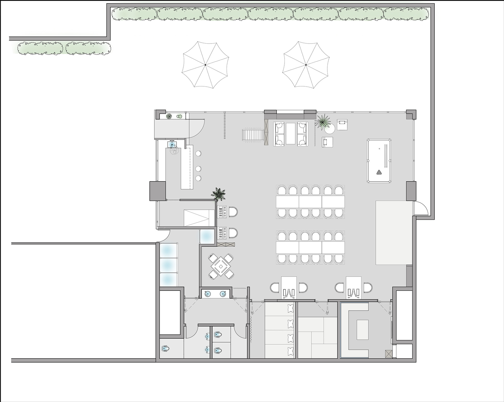
∇ 平麵圖 Plan
項目信息
項目名稱:樓頂轟趴館
設計公司:吉度室內設計工作室
項目地址:常州市環球港
主案設計:徐吉永
參與設計:汪鬆 王潔
設計時間:2019年5月
完工時間:2019年12月
聯係郵箱:604806606@qq.com
建築麵積:250平方米
主要材料:水泥藝術漆、複古水泥漆、美岩板、黑鈦拉絲不鏽鋼
攝影師:黃波

























