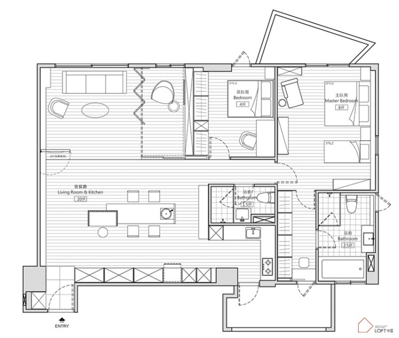
家裏有了孩子,總是希望家能以讓孩子住得安心、也玩得開心為考量。開放式的公共空間可以隨時看得見孩子的活動,緊鄰的主臥房和兒童房也讓家長晚上不用擔心,高雄 好室設計 所分享的這間親子寓所,就是如此開放又貼心的例子。雖然水泥牆麵和中島廚房走的是工業風格,但全室鋪上了溫暖明亮的木地板並搭配木板牆和木家具,提升居家溫度,也讓孩子跑跳更安全。
淺灰與綠色的搭配不隻在客廳出現,也運用在臥房,與木頭質感一同輝映出森林盎然的生氣,令人感到平靜放鬆。總是考慮三房兩廳,不如少一房作為彈性使用;加大的公領域有一架高、類似和室的空間,那裏是電視僅作為輔的客廳,並以拉門稍微間隔出孩子也能在一旁玩耍的共同區域,讓大人與小孩的互動空間更大,家人的也關係更緊密了。
Photos © Thomas Jantscher
版權聲明:本站所有文章除投稿授權發布外,其他文字內容均為原創,享有著作權保護,未經許可不得以任何形式進行轉載(包括且不限於:媒體、網站、公眾號等)。所有項目照片/設計圖形版權歸原作者所有。本站部分內容源自網絡公開資源或用戶分享,如若侵犯了原作者的合法權益,可聯係我們進行處理。





















