全球設計風向感謝來自 獨立設計師陳卓軍 的商業空間項目案例分享:
“黑白坊”為杭州重點圍棋培訓機構,多次獲得國家獎項,非常榮幸接到黑白坊旗艦店的設計。從一開始接觸這個項目,會讓我回想起第一次媽媽教我下圍棋,棋子之間的靈氣讓我瞬間感受到兵臨城下的感覺;我那一刻的想法是想讓更多人感受到這種濃厚的文化,下棋講究的是意念與信念,置身其中仿佛周邊的一切都會變的扭曲,所以我運用了不規則的幾何造型襯托出空間變化,巨大的棋盤若隱若現的刻在其中,無論在何種時間都能千變萬化中堅守棋藝的變數。這個想法也與棋院創始人不謀而合,把國粹文化傳遞出去…
“Black & White weiqi” is a key Weiqi training institution in Hangzhou and has won many national awards. It is my great honor to receive the design of black & White Square flagship store. From the very beginning, I came into contact with this project, which would remind me of the first time my mother taught me to play Go. The reiki between the pieces made me instantly feel the feeling of an army approaching the city. The moment my idea is to let more people feel the strong culture, chess is all about ideas and beliefs, place oneself among them around as if everything will be distorted, so I use irregular geometrical modelling foil a space for the change, huge gleaming on the board, no matter at what time can stick to chess variables in the kaleidoscope. This idea also happened to coincide with the founder of the institute of chess, the quintessence of Chinese culture to pass out…
設計感歎於城市、曆史、圍棋相結合的魅力,挖掘浙杭人民對圍棋的守望與職業認同感,以玲瓏棋局此起彼伏為靈感來源,借助氤氳江南水鄉的水墨藝術,以動靜相融的鋪陳方法,有的放矢地延伸局中局與畫外人的線索,從而賦予場所更多教育意義。
Design exclamation in beauty, history, go with the combination of city, mining the zhejiang hangzhou people to go watch and the professional identity, with exquisite chess with inspiration, with dense jiangnan water ink art, with movement of blending method, the expression of the target extension bureau midgame clues, with all people and places more education meaning.
前台以開局“以和為貴”
謙貴,如墨滴點染宣紙,在星羅棋盤上雲卷雲舒,先手禮讓,後手承上,開合之間,見國邦風範陰陽調和。
The front desk starts with “peace&love”
Modest and noble, such as ink drops dyed rice paper, on the board of the star Luo yun Yun Shu, the first hand, hand on, open and close between, see the state style Yin and Yang harmony.
借棋盤之意賦儲物櫃符號之形,是空間的第二處記憶點。
Alpha Go的世界征戰,為圍棋的發展注入新的活力,人與科技究竟誰才是最強大腦?時刻關注圍棋動態的愛好者們自然有話說,這,也是空間的第三處記憶點。
三處記憶點,引入思考與觸發——以棋會友,成敗卻是非對立的一種永恒,縱橫博弈的片刻寧靜,或許才是酣暢淋漓中找尋的熱土。
Borrow the meaning of chessboard to give the shape of ark symbol, it is the second memory point of the space.
The world campaign of Alpha Go has injected new vitality into the development of Go. Who is the strongest brain, man or technology? It is also the third memory point of the space, as the enthusiasts who always pay close attention to the dynamics of Go have something to say.
Three points of memory, the introduction of thinking and trigger – to chess friends, success or failure is a non-opposite eternal, vertical and horizontal game of a moment of peace, perhaps is the hot land to find in hanchang.
河界三分,智謀萬丈,一著不慎,滿盤皆輸。
架高的室內地麵與空間化的棋盤巧妙結合,開啟玲瓏棋陣的局中局,營造布局的緊湊感——棋盤之上,是新的廝殺,烏雲蔽日,飛砂走礪,棋局暗潮洶湧,破之方能雲開見月。
觀棋不語,空間以勁朗利落的黑白線塊作為回應,借幹脆的姿態,打造心無旁騖的棋力空間。
River boundary three points, wit and wisdom, a careless, all lost.
The high indoor floor and the spatialized chessboard are cleverly combined to open up the game in Linglong chess array and create a compact sense of layout — on the chessboard, there are new battles, dark clouds cover the sun, flying sand to walk through, the chess game dark tide surges, can break the clouds open to see the moon.
Watch chess not language, space to strong lang neat black and white line block as a response, by simply gesture, to create no attention to the chess space.
行至中盤,難分伯仲,白色之下的寧和更讓人聚精會神,靜室的傳統製式與無限延伸的天花互為結合,為緊張的節奏加入舒緩的伴曲。
可移動的櫃子把空間分割開,即可享受獨自對弈的寧靜,也可體驗群雄爭霸的激情戰場。
In the middle of the line, it is equally difficult to separate, the peaceful and more concentrated under the white, the traditional standard of the quiet room and the infinite extension of smallpox combined each other, adding a soothing accompaniment for the tense rhythm.
Movable cabinet divides the space, can enjoy the tranquility of playing chess alone, also can experience the passion battlefield of group of heroes competing for hegemony.
棋逢對手猶如將遇良才,於是勝固欣然敗亦可喜,輸贏不是對弈的內容,緊盯棋盤便會錯過許多精彩。
設計既要考慮功能的實現,更應關注空間主理人本身。長時間的緊張讓頭腦昏昏沉沉,不如擇一處安寧回味餘溫。同時又兼顧閑暇之餘的學習,亦能一起研究與探討高手之間的博弈。
The chess match is like will meet a good talent, so win solid happy defeat also delectable, win or lose is not the content of the game, closely watch the board will miss a lot of wonderful.
The design should not only consider the realization of the function, but also pay attention to the space master himself. After a long period of stress, your mind will be groggy. Choose a peaceful place to enjoy. At the same time give consideration to the spare time of learning, but also can study and discuss the game between masters.
∇ 結構剖解圖
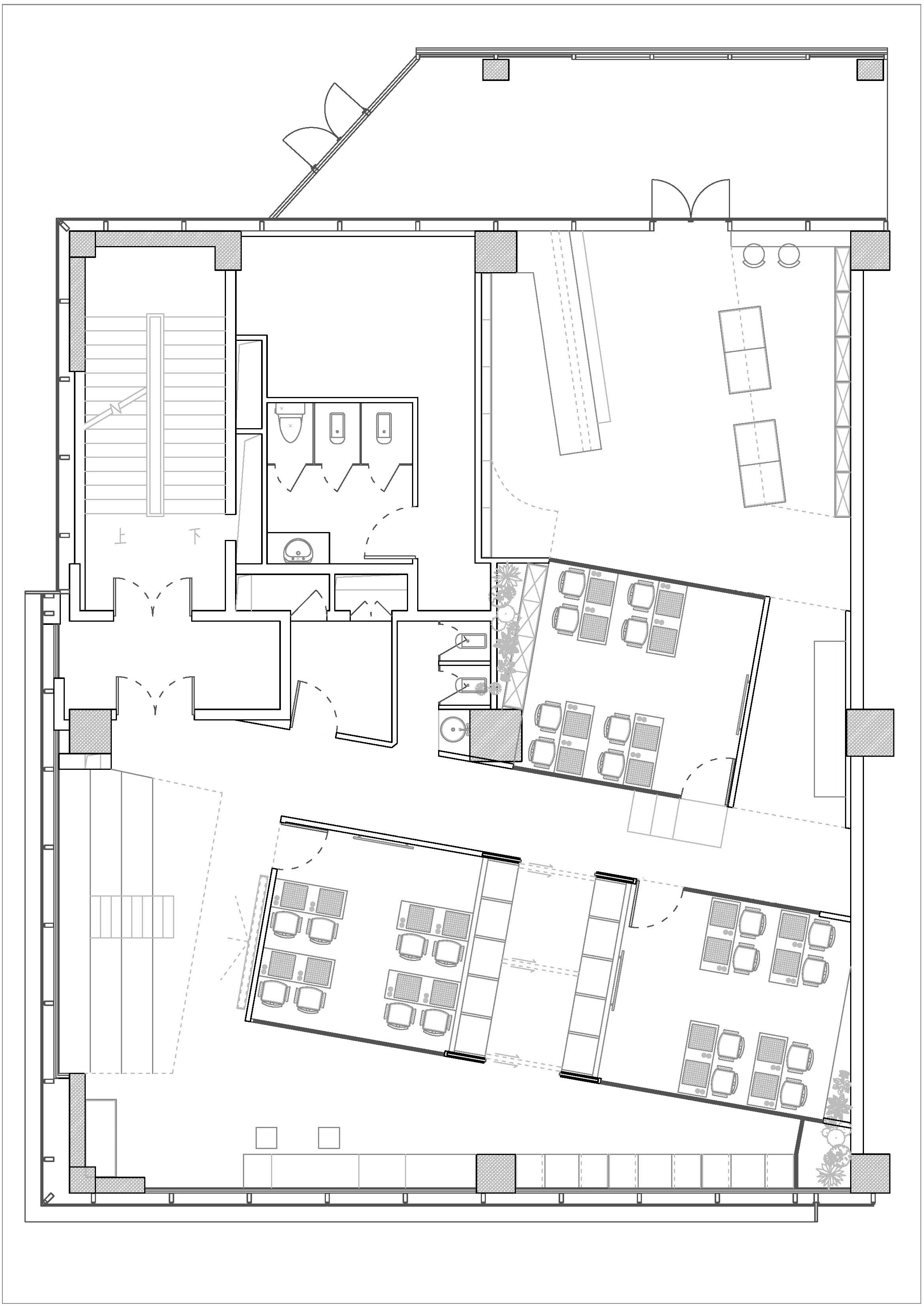
∇ 平麵圖
項目信息
項目名稱:黑白坊棋院
設計方:陳卓軍
聯係郵箱:347729018@qq.com
項目設計&完成年份:立項時間:2019-10/完成時間:2020-6
項目地址:杭州太合商業中心2F
建築麵積:230㎡
攝影版權:光圈漫遊映畫
合作方:杭州誠意裝飾
客戶:黑白坊
品牌:使用主材:玻璃、不鏽鋼、LED、牆繪、地板、地磚、金屬、碎石














































