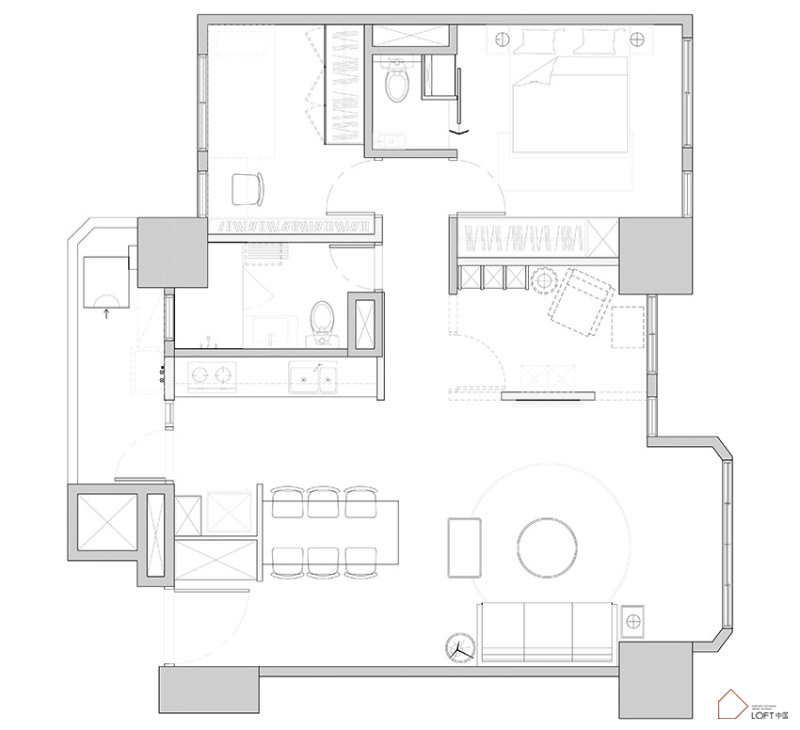
這是一個由簡域建築空間設計的老公寓改造分享案例,公寓原建築是20幾年社區式住宅,光線差天花低,空間隔間更是把原本區域切割得壓迫感超重,首要關鍵當然為解決采光、通風問題,將不必要牆壁全部拆除,接著清空天花板。
盡量讓公共區域成為完整開放式,一眼便能掃描客廳、餐廳、廚房,以及電視牆後方半開放式書房,增加視覺寬闊效果,並且加入黑(黑板漆)、灰(水泥粉光)、白(白牆油漆)三種色彩,營造屋主也喜愛的清爽感北歐風格。由於居住人數隻有夫妻倆加剛出生小孩,臥室規劃上僅留兩房,但預備之後第二胎育嬰計劃,和客廳相連閱讀區,看似沒有牆麵阻隔,卻早已埋下可獨立加上牆麵再形成一房,也就是說先加大平數讓全家人便利使用,隨著使用行為重新整理空間,讓小平數居家同樣達成完美需求設計。
Photos © 簡域建築空間設計
版權聲明:本站所有文章除投稿授權發布外,其他文字內容均為原創,享有著作權保護,未經許可不得以任何形式進行轉載(包括且不限於:媒體、網站、公眾號等)。所有項目照片/設計圖形版權歸原作者所有。本站部分內容源自網絡公開資源或用戶分享,如若侵犯了原作者的合法權益,可聯係我們進行處理。



















評論(3)
非常漂亮
打開了我的設計思路。。很棒。。。。
這個設計思路太棒了!