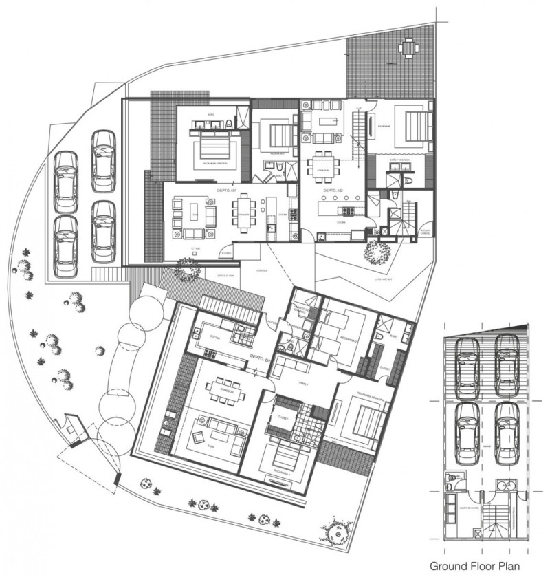
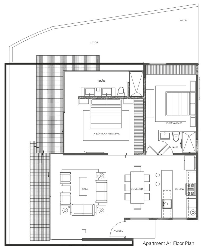
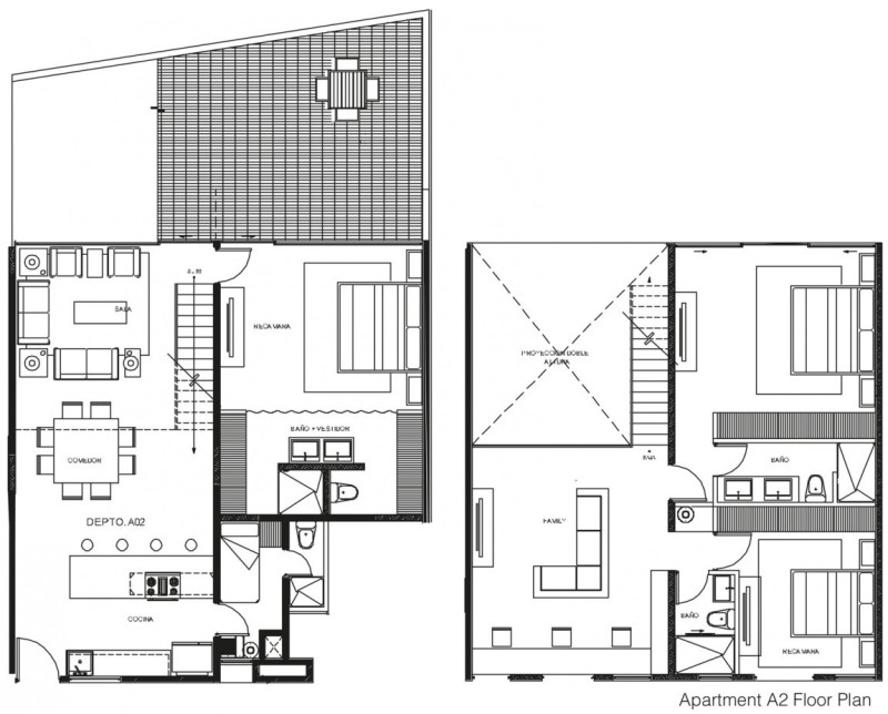
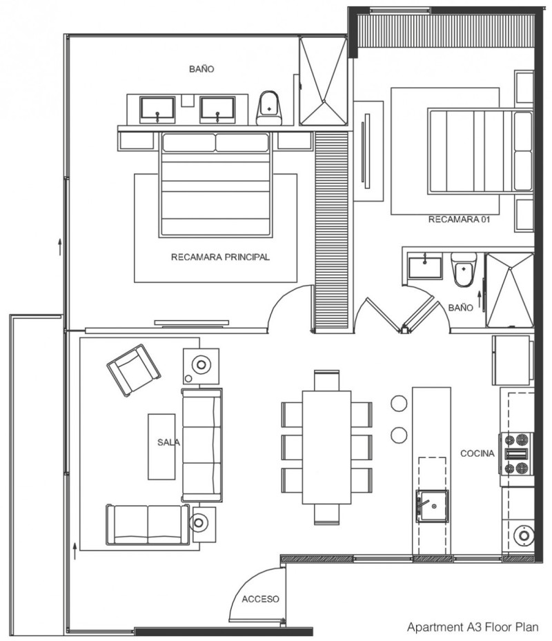
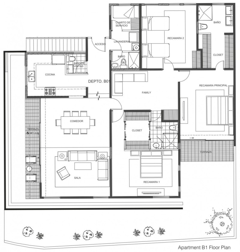
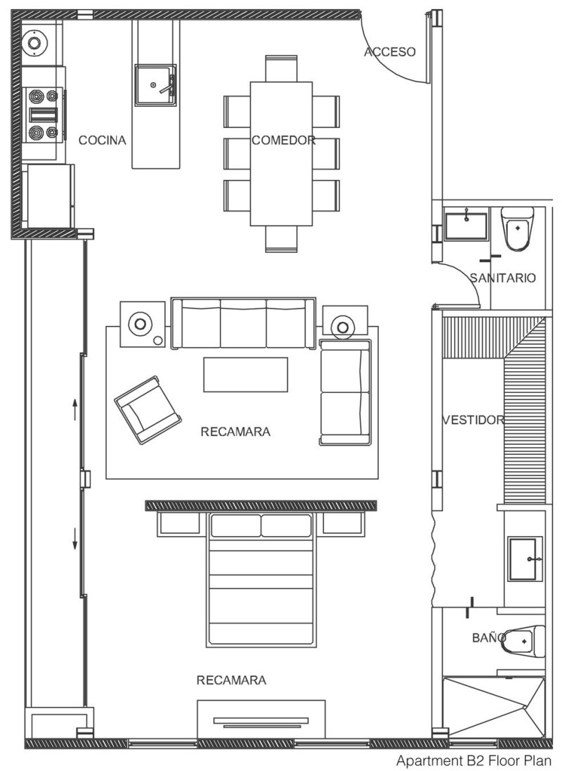
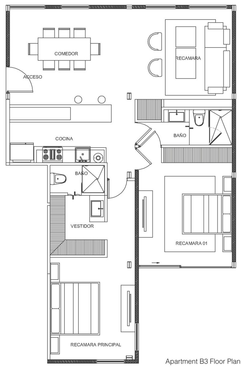
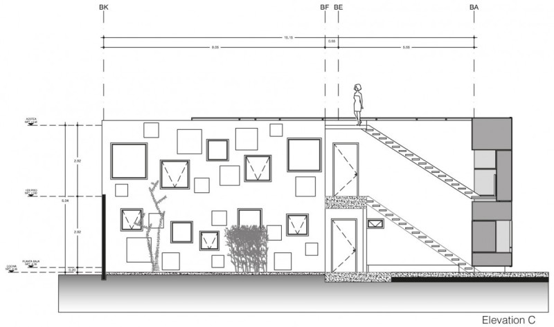
Trevox 223位於墨西哥Naucalpan,項目由墨西哥建築事務所CRAFT Arquitectos設計,完成於2010年,總建築麵積為10,763平方英尺。
Trevox 223項目是對一棟40年前的建築改造,設計試圖保留原建築結構及外形,以最少的變化改造出獨立的公寓空間,融入新的設計和裝飾元素。設計師采用了雙層玻璃設計,即在建築外圍包一層玻璃幕牆。玻璃幕牆為公寓提供了隱私保護,也能在一定程度上減少噪音汙染,更重要的是在夏天的時候可以起到避暑的效果。雙層的玻璃幕牆猶如給建築外觀貼了一層鏡子,反射的效果使其更加時尚和令人向往。







































Photos © Itay Sikolski
Content Copyright © www.online4teile.com
版權聲明:本站所有文章除投稿授權發布外,其他文字內容均為原創,享有著作權保護,未經許可不得以任何形式進行轉載(包括且不限於:媒體、網站、公眾號等)。所有項目照片/設計圖形版權歸原作者所有。本站部分內容源自網絡公開資源或用戶分享,如若侵犯了原作者的合法權益,可聯係我們進行處理。









