全球設計風向感謝來自 杭州DNA邸內建築設計 的住宅空間項目案例分享:
DNA | 空間輾轉隨光而動
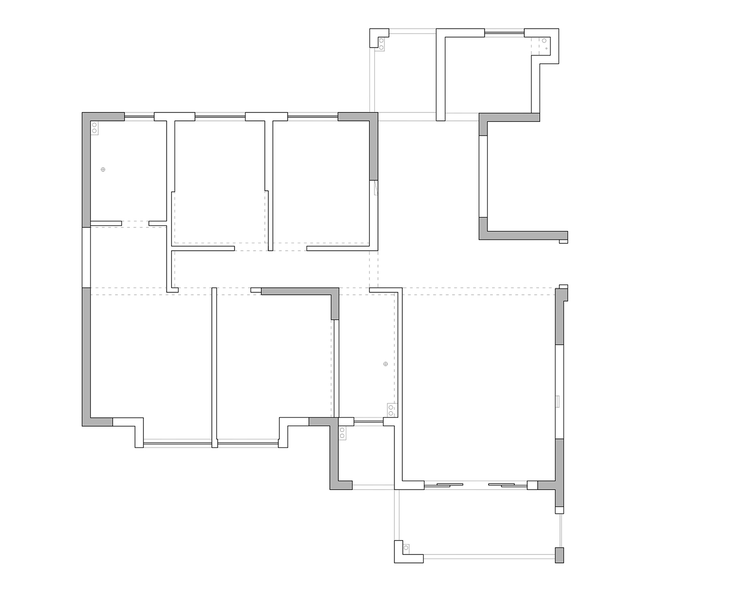
該項目是位於杭州市的150 平米公寓,方案中最大的改動是將北麵采光較差的兩間客房牆體拆除,融合過道空間後形成寬敞方正的空間體量,同時通光量也大幅提升,我們將之與客廳位置的進行轉換,很大程度上改變了原有空間關係和生活動線。此外,通過主次臥的轉換為空間增設了獨立的儲物間,北陽台內包設置中西廚分區,公衛幹濕分區等一係列措施將改善型住宅的配置進一步提升。
This project is a 150m² apartment located in Hangzhou. The biggest change in this project is to demolishthe wall of the two bedrooms with poor lighting in the north. After the integration of the corridor space,a spacious square space volume is formed, at the same time, the amount of light is also greatly increased. We converted it into the living room, which greatly changed the original spatial relationship and the livingline. In addition, by transforming the master room into a guest room, this design method adds a separate storage space to the living room. Inner package north balcony designed Chinese and western hutch zoning; a series of measures such as the dry wet zoning of toilet will improve the configuration of residential further promotion.
∇ Before 改造前
∇ After 改造後
空間為表達簡潔明快的視覺,材質的使用上追求連貫而分明。牆麵溫潤的石材紋理,頂麵天然的胡桃木紋,劃分了空間主要的兩個塊麵。
The space expresses concise and lively vision and the use of materials pursues coherence and clarity. The warm stone texture of the wall and the natural walnut grain on the top surface divide the two main areas of the space.
材質豐富的對立麵,與之相反,是大麵積的留白, 為視線停留做緩和,也增強了空間對比度突出主次分明。
The opposite of the rich material is a large area of white space, which eases the line of sight, and also enhances the spatial contrast to highlight the primary and secondary distinctions.
原有承重牆體阻隔了客、餐廳,產生了生硬的空間關係。為滿足屋主的輕度辦公使用,將書房置於客廳一側,將水平麵向餐桌延伸,起到整合多樣功能、模糊空間界限的作用。
The original load-bearing wall cut off the living and dining room, produced stiff spatial relations. In order to meet the office use of the house-owner, the study room is placed on the side of the living room, horizontally extending towards the dining table, which plays a role in integrating multiple functions and blurring the space boundaries.
從客廳望去,視線停留之處,立麵層疊了各個功能區。
The view from the living room, where the line of sight stays, various functional areas are stacked on the facade.
客、餐、廚各區域交互連通卻又不相互幹擾。
The areas of the living room, dining room, and kitchen are interconnected without interfering.
原北麵陽台被改造成西廚空間,承接了餐廳和廚房之間空間過渡,原本較小的廚房空間也得到極大的擴展。
The original north balcony was transformed into a space of western-style kitchen, undertook the excessive space between dining room and kitchen, and the space of original kitchen was greatly expanded.
以白色和木色兩種簡單的材質來表達整個臥室空間的安靜、平和,加以強烈的線條感來進一步刻畫細節輪廓。
With two simple materials white and wood are used to express the quietness of the bedroom, and a strong sense of lines is used to further depict the details of the outline.
孩子的成長變化非常複雜,家具擺放也時常發生變化,在兒童房的設計上沒有過多的去設計主題,而充足的陽光便是最好的顏色。
The growth and changes of children are complicated and the layout of furniture often changes. There is not too much design theme in the children’s room and plenty of sunlight is the best color.
項目信息
項目地點:中國杭州
項目麵積:150 ㎡
設計時間:2019.7
主案設計:夏偉
軟裝設計:sasa
主要材料:瓷磚、塗裝木飾麵、硬包、不鏽鋼、金屬板





































