從生活的混亂中贏得一個和諧與安寧空間的願望是貫穿Artem Babayants所有項目的主要思想。
Artem Babayants努力根據每個元素的內容和完美來重新思考空間。在這裏,人們找不到多餘的修飾和為了形式而背離意義、背離功能。
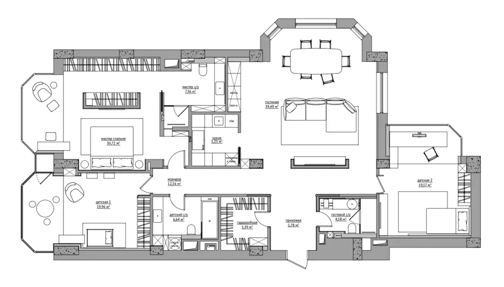
這間位於莫斯科的165㎡公寓,設計師把暖色木飾麵在這個空間中運用到了極致。非常簡單的飾麵,建立在微妙的細微差別之上。但它賦予空間自由、完整、舒適和寧靜的感覺。不同的材質相互搭配,通過肌理與質感地融合,塑造出簡練又優雅的空間氛圍。
Artem Babayants
Artem Babayants是一家位於莫斯科的設計工作室,旨在改善現代生活的形式。努力創造一個現代人的生活環境,滿足建築和設計領域的所有現代潮流,個性化關注客戶的舒適性,合理性,質量和願望。
創始人Artem Babayants畢業於別爾哥羅德理工大學,專攻建築。畢業後在莫斯科的一個建築設計公司工作。直到2014年,他創立了自己的同名工作室。
Artem Babayants項目的創建始於與光融合。光決定了空間的基本形式,揭示了紋理並營造了氛圍。其他重要元素包括簡潔的體量、天然材料、清晰的物體幾何輪廓、構圖的自由度和靈活性。Artem Babayants稱這種風格為舒適的極簡主義。
∇ 平麵圖
版權聲明:本站所有文章除投稿授權發布外,其他文字內容均為原創,享有著作權保護,未經許可不得以任何形式進行轉載(包括且不限於:媒體、網站、公眾號等)。所有項目照片/設計圖形版權歸原作者所有。本站部分內容源自網絡公開資源或用戶分享,如若侵犯了原作者的合法權益,可聯係我們進行處理。











































