Hairdo美容美發沙龍位於日本千葉縣,由Ryo Matsui Architects設計打造。一個大玻璃立麵揭示了這個房屋造型建築的兩層內部空間。
建築師為沙龍打造了簡單的內部,樸素的白牆,木質表麵,使屋頂桁架和其它結構完全暴露。由於臨近千葉火車站,沙龍透明的正麵使行人可以直接看到建築內部所發生的一切。同時,從正麵的道路上看,大玻璃幕牆提升了內部的空間感,使之更加完整統一。
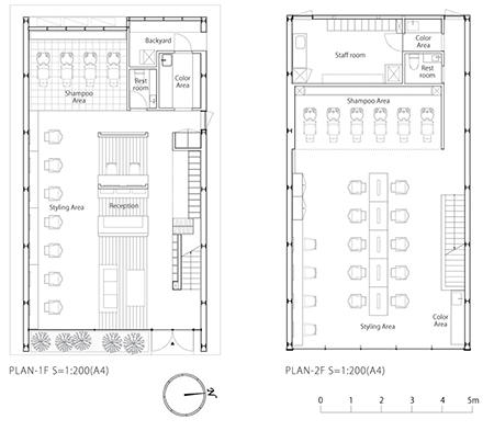
從玻璃門入口可以進入接待區和等待區,它們占據了一層空間的前半部分。一排鏡子被固定在旁邊的牆上,打造長木板台麵,搭配皮革椅,作為理發區。洗發區和染發區則設置在空間後部,同時,還打造了一個小後院。樓上,造型區占據了大部分的開放空間,員工室和額外的洗發區則位於空間後方。
Photos ©Daici Ano
版權聲明:本站所有文章除投稿授權發布外,其他文字內容均為原創,享有著作權保護,未經許可不得以任何形式進行轉載(包括且不限於:媒體、網站、公眾號等)。所有項目照片/設計圖形版權歸原作者所有。本站部分內容源自網絡公開資源或用戶分享,如若侵犯了原作者的合法權益,可聯係我們進行處理。























