英國 / 倫敦 / 健身房 # Studio VA #
該項目位於倫敦北部一條備受推崇的商業街顯眼位置的兩個零售單元內。客戶是一位年輕且受人尊敬的私人教練,也是運動發展俱樂部公司的所有者,該項目是他們的第一個專用私人訓練館。該設計包括六個定製的個人訓練站、更衣室、治療室、會員酒吧、商品店和外賣咖啡店。
Athletic Development Club位於繁忙的大街沿線,重要的是要確保會員在鍛煉時不會感到自己暴露在外或被人注視。設計師需要在為多個個人培訓課程提供私人和功能空間之間取得良好的平衡,同時仍然希望邀請可能有興趣成為會員或訂購外賣飲料的路人。因此,主健身房區域的玻璃單元被遮擋以保護隱私。
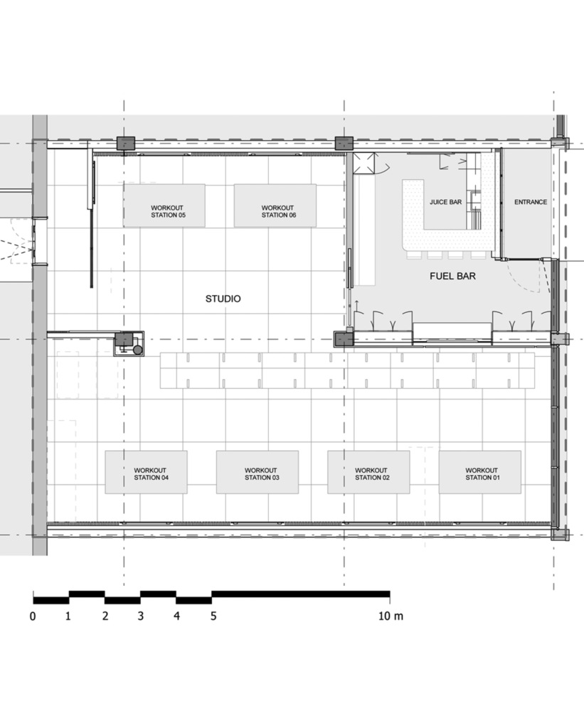
“Fuel Bar”(咖啡吧)嵌入商店,形成一個受保護/有蓋的入口,顧客可以在這裏訂購外賣咖啡和蛋白質奶昔。咖啡師通過主吧台麵上方的一個可打開的艙口為顧客服務。一旦走進這家原本不起眼的店麵,設計師就想創造一些引人注目的東西。會員通過“Fuel Bar”和商品區進入主健身房。
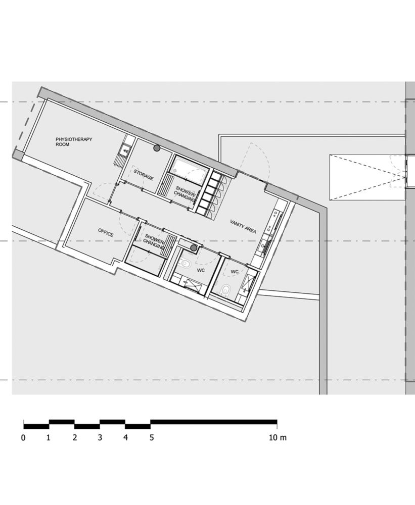
材料調色板保持在最低限度;木材、鏡子、LED照明、炭灰色的木板條在六個健身站的每一個上運行,覆蓋牆壁和天花板。這些板條集成了通風、揚聲器和從地板到天花板的LED燈條。LED燈條有助於識別每個鍛煉站的範圍,還在每個專用鍛煉鏡子周圍創建一個光框。在場地的後麵,可以使用員工設施、理療室以及帶會員儲物櫃、淋浴/更衣室和衛生間的男女通用梳妝區。
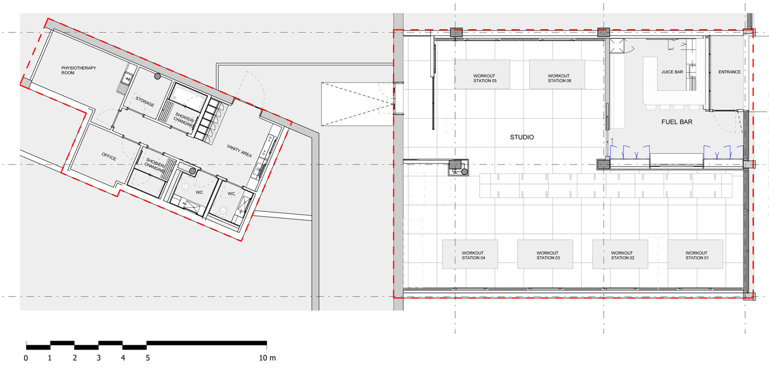
△ 總平麵圖
△ 輔助功能區平麵圖
△ 私教區平麵圖
△ 細節圖1
△ 細節圖2
Studio VA
是一家致力於品牌設計和數字產品的獨立工作室,於 2010 年在裏斯本成立。如今,正與國內和國際初創公司、知名公司和公共機構密切合作。與藝術和文化部門、教育、生活方式和科技企業有著密切的關係。





































