80張酒吧平麵、分析圖-no.002,JPG+PNG
【設計師必備】酒吧平麵布置參考,80張已建成酒吧平麵布置方案,以麵積大小整理標注,方便查閱。
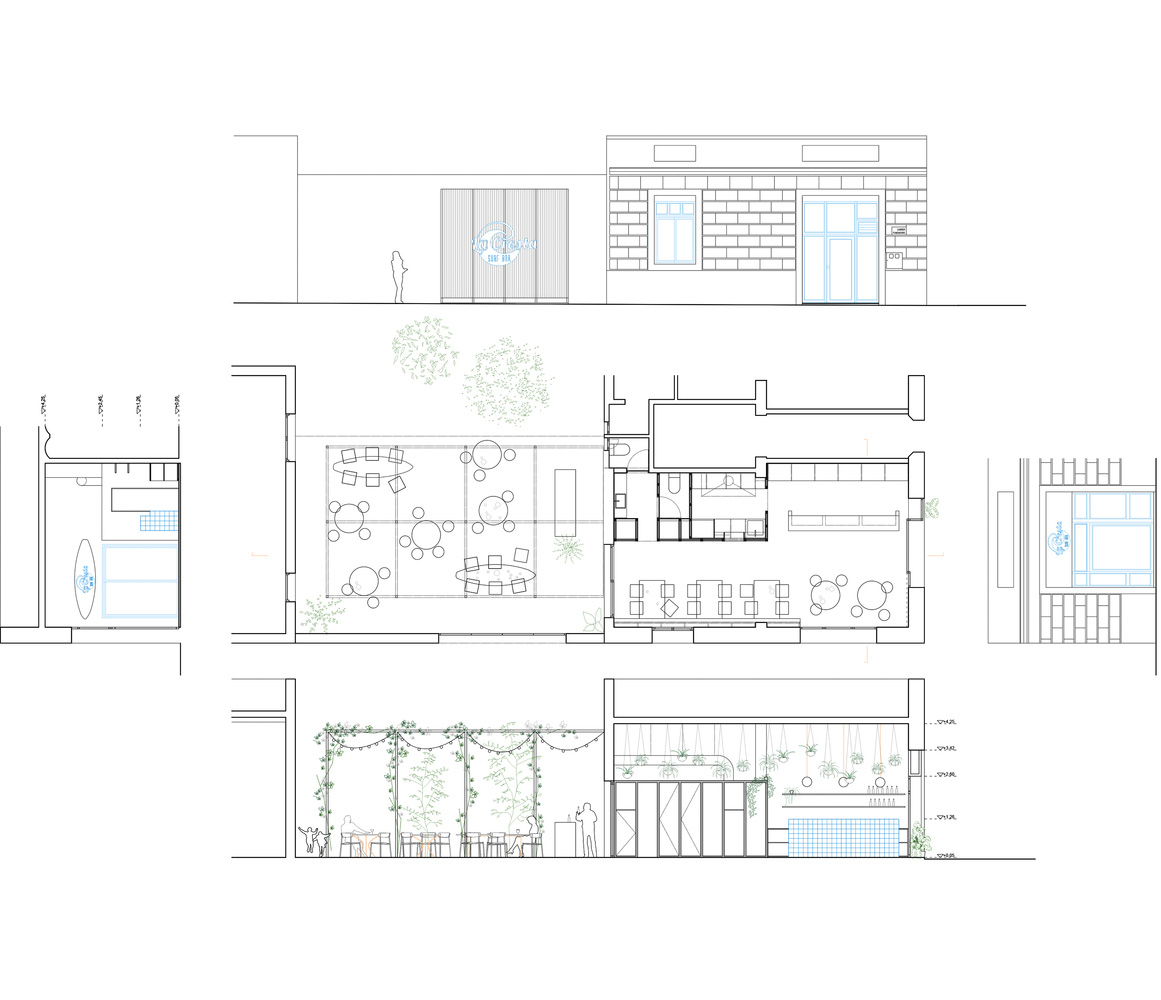
∇ 文件內容預覽
整體涵蓋麵積大小:
18㎡–100㎡:
12㎡酒吧創意分析方案1套、13㎡酒吧平麵方案1套、15㎡酒吧平麵方案1套、18㎡酒吧平麵方案1套、30㎡酒吧平麵方案2套、45㎡酒吧平麵方案2套、60㎡酒吧平麵方案1套、65㎡酒吧平麵方案1套、70㎡酒吧平麵方案2套、90㎡酒吧平麵方案1套、100㎡酒吧平麵方案1套;
100㎡–200㎡:
104㎡酒吧平麵方案1套、110㎡酒吧平麵方案1套、115㎡酒吧平麵方案1套、120㎡酒吧平麵方案3套、126㎡酒吧平麵方案1套、130㎡酒吧平麵方案2套、140㎡酒吧平麵方案2套、150㎡酒吧平麵方案1套、160㎡酒吧平麵方案2套、165㎡酒吧平麵方案1套、166㎡酒吧平麵方案1套、170㎡酒吧平麵方案1套、175㎡酒吧平麵方案1套、180㎡酒吧平麵方案2套、190㎡酒吧平麵方案1套、197㎡酒吧平麵方案1套、200㎡酒吧平麵方案2套;
200㎡–300㎡:
205㎡酒吧平麵方案1套、206㎡酒吧平麵方案1套、215㎡酒吧平麵方案1套、219㎡酒吧平麵方案1套、220㎡酒吧平麵方案2套、228㎡酒吧平麵方案1套、258㎡酒吧平麵方案1套、290㎡酒吧平麵方案1套、300㎡酒吧平麵方案1套;
300㎡–400㎡:
306㎡酒吧平麵方案1套、324㎡酒吧平麵方案1套、330㎡酒吧平麵方案1套、380㎡酒吧平麵方案2套、400㎡酒吧平麵方案1套;
400㎡–1700㎡:
450㎡酒吧平麵方案2套、500㎡酒吧平麵方案1套、585㎡酒吧平麵方案1套、600㎡酒吧平麵方案2套、400㎡酒吧平麵方案1套、850㎡酒吧平麵方案1套、1000㎡酒吧平麵方案1套、1250㎡酒吧平麵方案1套、1256㎡酒吧平麵方案1套、1700㎡酒吧平麵方案1套;
∇ 部分平麵圖預覽













