西班牙 / 馬德裏 / 服裝店 # Patricia Bustos Studio #
An&Be是一家在馬德裏擁有自己的製造和材料的西班牙公司,它選擇了 Patricia Bustos Studio來進行品牌的室內設計。新概念店是硬與軟元素的混合,工藝和品質在這裏得到體現,結合窗簾和一些在品牌工作的工匠製作的細節。
拱形隔斷、天然石材、混凝土砌塊、赤土陶器、灰石和天然藤條,設計師希望在其中反映所有手工完成的工作,除了精致的基本元素和特殊的東西,創造一個永恒的空間。進入的人們將被一個融合了原始美感的和諧空間所吸引,同時通過參展發現品牌的眾多係列,到達試衣間。
建築與服裝相互對話,講述了一個傳承與創新的故事。商店的家具選擇了大地色,與天花板的暖色調以及拱和踢腳板的邊緣形成鮮明對比。石灰華大理石與葡萄牙粉色大理石相結合,用於試衣區的中央桌子、櫃台和長凳。整個商店都配有一個踢腳板,該踢腳板由不同色調的粘土塊製成,並在整個商店中一塊一塊地放置。燈光的分布是為了營造溫暖的氛圍並尊重服裝的色調。
商店全部設計在一個圓形的環境中,並采用弧形處理,混合鏡子,讓顧客反映在商品的世界中,看到自己在裏麵的那一刻。整體空間沒有任何角落,因為所有的東西都被圓潤了,創造了一個以服裝為主角的和諧空間。
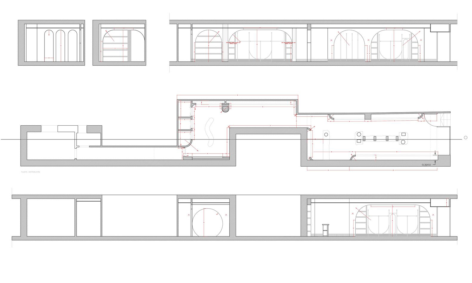
∇ 平麵&立麵圖
版權聲明:本站所有文章除投稿授權發布外,其他文字內容均為原創,享有著作權保護,未經許可不得以任何形式進行轉載(包括且不限於:媒體、網站、公眾號等)。所有項目照片/設計圖形版權歸原作者所有。本站部分內容源自網絡公開資源或用戶分享,如若侵犯了原作者的合法權益,可聯係我們進行處理。




























