Studio Saxe 決定設計和開發其第一座垂直可持續建築,證明在當地經濟的限製下,通過大露台和種植來創造一個注重生活質量的價值建築在經濟上是可行的。
概念 Concept
Studio Saxe 的第一個垂直開發被概念化為一個機會,將典型的花園引入垂直建築,提高熱帶地區建成城市居民的生活質量。自動灌溉係統允許植被在露台上茁壯成長,營造出一種室內外生活的感覺。
設計 Design
通過在每一層創建不同的露台,該建築為每個住宅賦予了個性,即使室內布局相同,每間公寓也可以通過左右移動的露台與外部建立多樣化和有趣的關係。這不僅可以保護街道上的隱私,還可以防止日曬雨淋。
建造 Construction
被認為是一種利用預製技術的混凝土結構,能夠在現場快速組裝,從而使單元的成本保持在合理的市場價值內。這證實了在特定市場內擁有大型露台、植被、遮陽傘和許多其他技術是可能的,從而將潛在買家的感知提升到一個新標準。
景觀 Landscape
Studio Saxe 的景觀設計是打造一座建築的關鍵,它不僅將自然景觀的野性帶入城市,而且融合了諸如集水等被動技術以及灌溉、植物控製和植物生物學等其他策略。這創造了一個真正的回聲係統,其中包含多種植物,允許鳥類和蜜蜂等受威脅物種成為建築物自然環境的一部分,與人類建立和諧共處。
室內設計 Interior Design
Studio Saxe 的室內設計部門協調了所有材料、廚房設計、浴室設計以及生活和公共空間,以與城市熱帶魅力發展的建築主題相結合。這種可持續和生物氣候設計允許材料和顏色由內而外的凝聚力,創造出一個和諧的建築,似乎是由誌趣相投的人設計的,並為誌同道合的人設計。
可持續性 Sustainability
公寓是通過溫度控製等被動設計策略構思,允許在每個公寓內進行交叉通風,因此單元之間沒有走廊。大露台在一天中的某些時間可以免受烈日的照射,這些露台與遮陽傘相結合,還可以讓破碎的光線滲入並提供溫度控製。每個露台上的植被都可以讓材料迅速冷卻。建築物內的植物通過特殊的過濾器進行灌溉,這些過濾器收集居民使用的雨水和循環水,以創造一個自我維持的循環。公共區域位於二樓,有一個種植可食用植物的果園,居民可以收集這些植物供個人消費。
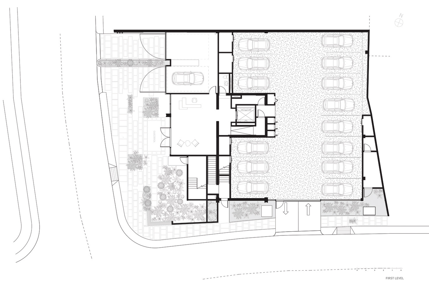
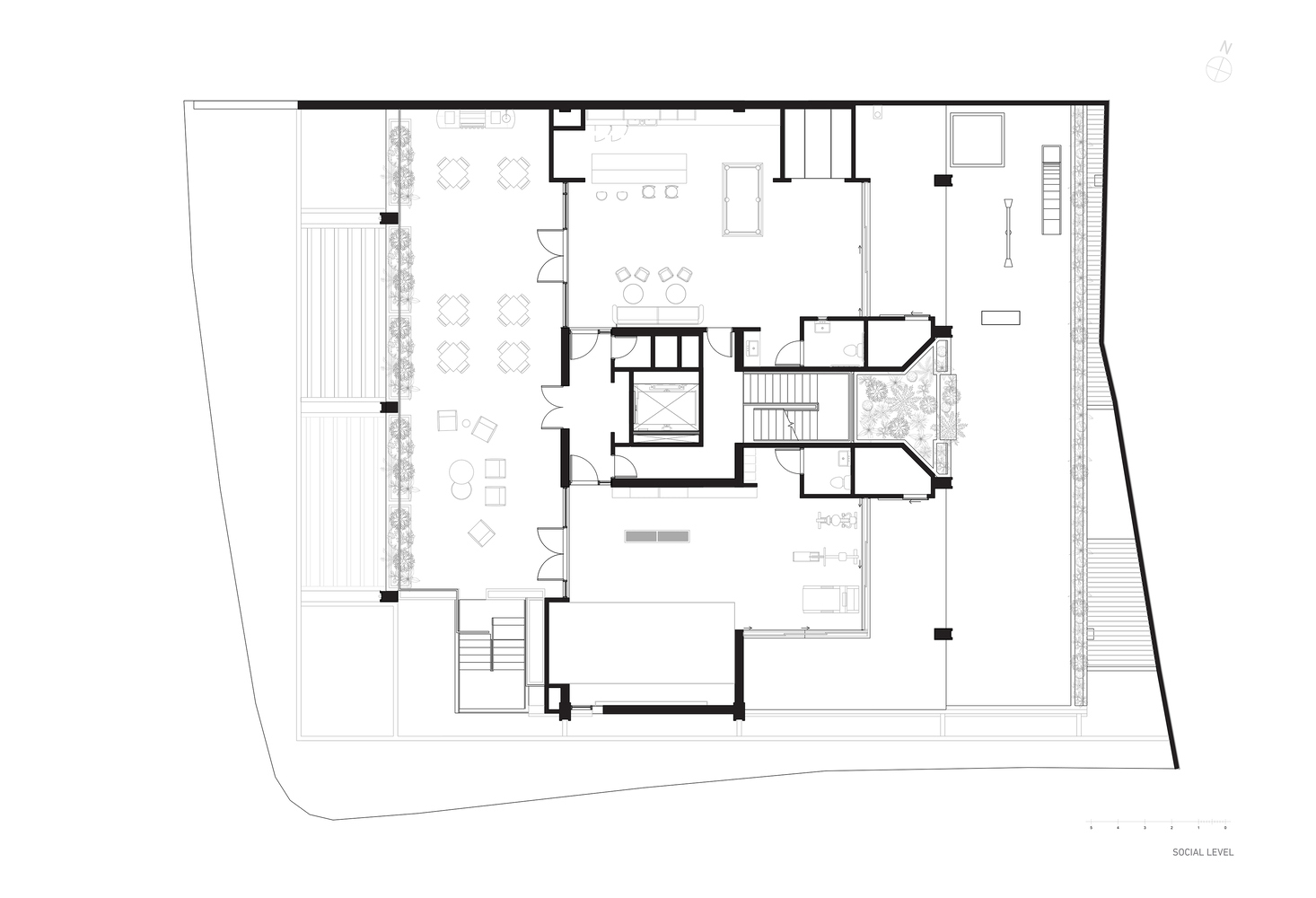
∇ 平麵圖
∇ 平麵圖
∇ 平麵圖
∇ 立麵圖
∇ 立麵圖
∇ 剖麵圖
∇ 手繪草圖


















































