一個清醒而嚴肅的設計能否喚起一種異想天開的奇跡和發現感?在紐約下東區的一套公寓裏,一張桌子、一張地毯和一個房間大小的木盒子被設計成一種建築魔幻現實主義:當一個人發現——隱藏在視線中——一個展開成私人和個人世界。這次室內裝修是在一座鑄鐵建築的二樓進行的,在一個寬敞的閣樓裏,充滿了漫射的間接光。
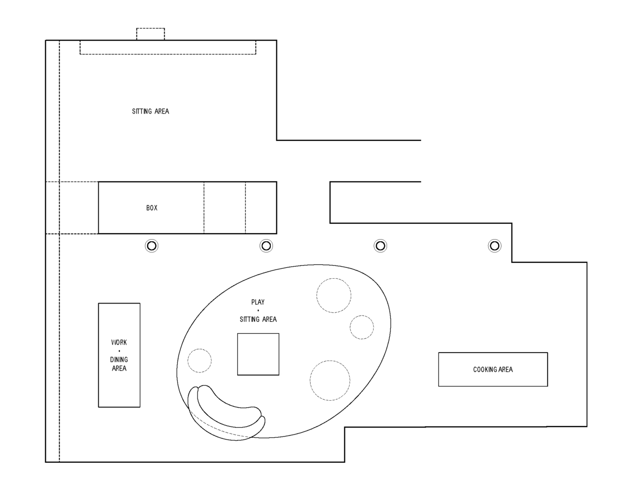
最初的布局將所有主要的生活功能放在同一個開放空間內,廚房、餐廳和起居區設置在四周,其中心空置且未使用。打破一個雄偉的、光線充足的空間是不尋常的。然而,業主相信單獨的空間會更好地滿足他們的需求。這個想法是有先見之明的:新冠大流行來了,住在開放式閣樓的願望完全失去了吸引力。分區可以提供隱私選項和不總是在同一個空間的感覺。
提議的重新設計完全接受了這一挑戰,打破了單個有限的房間,並用不會立即暴露其邊界的更小的空間取而代之。修改後的室內布局圍繞著一個新的、不引人注目的元素:一個房間大小的木盒子,隱藏在公寓內的視線中。從外觀上看,盒子幾乎不顯眼。它的內部——像文藝複興時期的“工作室”一樣被木覆蓋——溫暖而豐富。雙層高度可適應不同時間的使用選擇:玩耍、休息、工作或學習的空間。
當一個人離開盒子時,閣樓的寬敞、高高的柱子和突然的開放,作為一個驚喜重新出現在人們的視野中。欺騙性的規模也與隱藏在起居區明顯可見的龐大定製地毯有關。它的顏色 – 粉紅色、米色和藍色的混合 – 與木地板的雜色色調融為一體。地毯是家中最大的物品——它不規則的橢圓形伸展以占據盡可能多的空間——但它微妙的顏色和不顯眼的形狀使它奇怪地不引人注目。
最後,在空間中的對象是一張不起眼的餐桌,既纖細又宏偉。它最顯著的特點是雙桌麵。在結構上,分層桌麵充當梁以防止彎曲。在功能上,較低的桌麵允許從工作到用餐的快速轉變——因為電腦、圖紙和文書工作很快就被存放起來了。桌子的一個更秘密的細節完全隱藏在視線之外。
∇ 平麵圖
∇ 立麵圖


























