該項目是Tatyana Minina為一個在大學學習的年輕女孩設計的舒適生活的空間,因為遠程學習很多,所以獨立的家庭辦公室很重要。廚房是客廳的一部分:女主人喜歡做飯,但不想孤立做一間廚房區。由於住在公寓裏的人沒有宴請需求,所以這裏沒有餐桌,它的功能是由一個酒吧島台來完成。但年輕一代喜歡躺在沙發看電影,為此設計師做了一個大沙發區:通過重新排列軟模塊很容易改變它。
配色方案很暗,呈灰色調。“一個年輕女孩的一個不同尋常的願望,但天花板的高度讓我可以運用我最喜歡的技巧:將牆壁和天花板漆成相同的顏色。我為這個項目選擇的油漆讓人想起絨麵革。它的異質性和天鵝絨般的質感使牆壁的質地複雜化,使房間變得舒適。為了不顯得陰沉,就像在洞穴裏一樣,我建議添加強調色。在審查了草圖之後,我們選擇了深淺不一的藍色。“
–Tatyana Minina
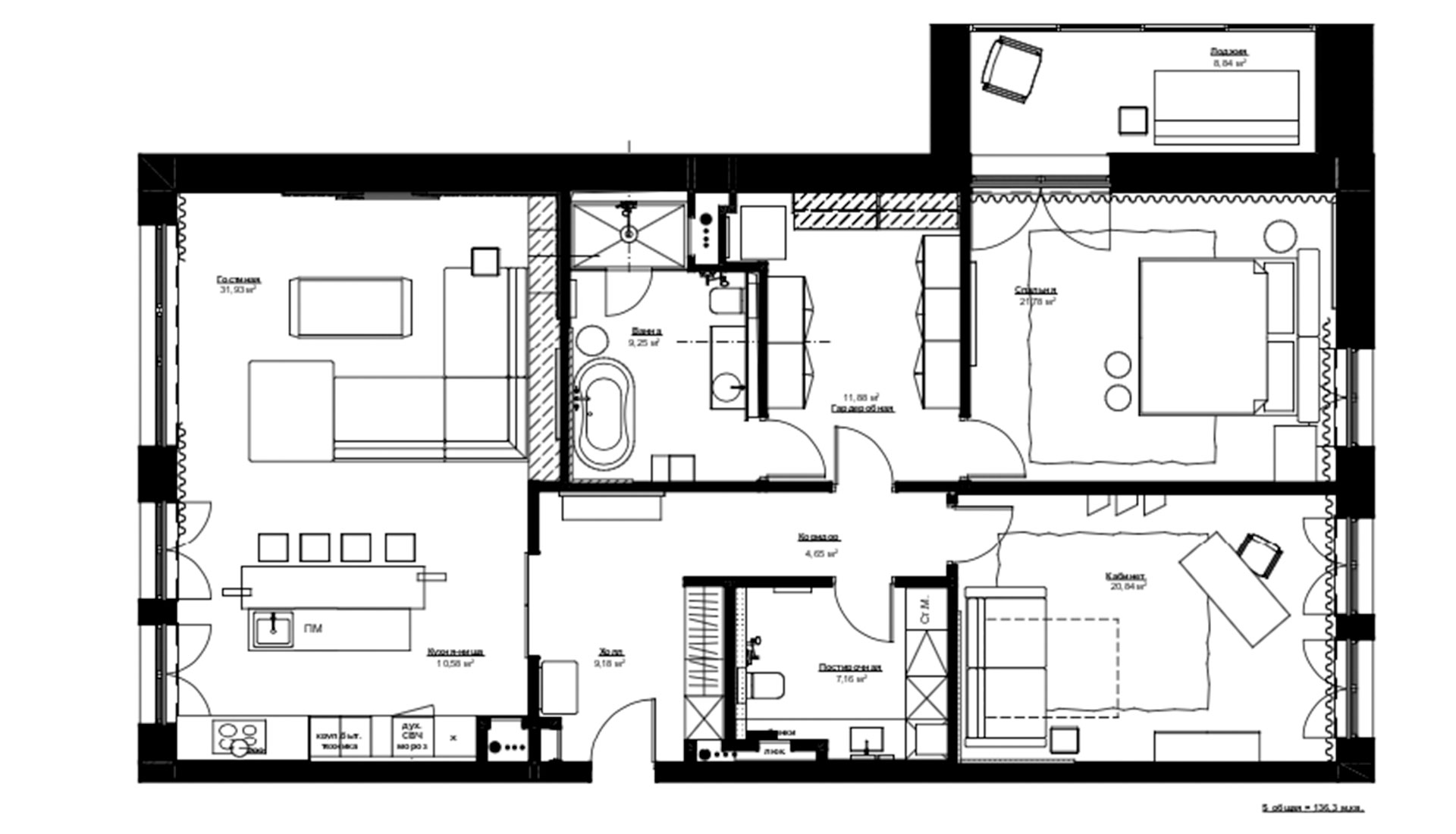
∇ 平麵圖
版權聲明:本站所有文章除投稿授權發布外,其他文字內容均為原創,享有著作權保護,未經許可不得以任何形式進行轉載(包括且不限於:媒體、網站、公眾號等)。所有項目照片/設計圖形版權歸原作者所有。本站部分內容源自網絡公開資源或用戶分享,如若侵犯了原作者的合法權益,可聯係我們進行處理。


























