在上海武康路的心髒地帶,有一幢建於1930年代的老洋房,它與周遭蜿蜒輾轉的小路交織在一起,群樹環繞,四季的更迭在這裏生動地演繹著。現今,這幢老洋房成為了新興時裝品牌“小著”的高級體驗店。
小著的品牌性格是幹淨利落的,讚頌那些有小小創造力的、始終葆有好奇的、有趣的人們。業主希望在這個場域裏人們不僅可以了解到小著是誰,同時也可以微妙感知到自己是被品牌引領著的且與人親近的。
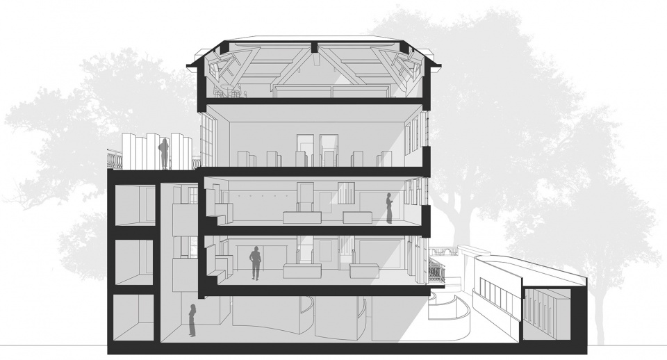
整個場地占地麵積雖大,但被拆分成南北兩個戶外花園與夾在中間的五層樓建築,內部空間樓層獨立且單層麵積小而零碎,好在建築各個立麵被大小不一的窗戶包裹著,讓窗外的綠意與窗內的光影相互交織。
我們這次麵臨的設計挑戰,不止關乎於空間上如何消解周遭環境與場地的邊界,如何將前後戶外花園與主體建築連接起來,讓彼此之間產生流動性,如何運用場地充足的自然光線讓內部樓層之間更具呼吸感,也關乎於精神層麵上如何在實體空間中傳遞出抽象的品牌性格與理念。
主體建築的入口較為隱蔽,但好在前院緊鄰著蜿蜒的武康路,我們便結合這一場地特征重新整合空間的動線與可達性,設計了一條小徑將主體建築入口與武康路連接起來,並將它延續到建築內部空間,垂直向上貫穿五層樓。至此,這條小徑作為一條注入空間中的定向路線,成為連接周遭環境、前後戶外花園、主體建築與內部樓層的主要紐帶,讓多者之間產生流動。
多者之間的邊界感通過這條定向路線得以模糊,那如何讓內部樓層之間產生互動呢?我們重新規劃空間各樓層的功能,打通了空間中幾處零碎的區域,將較高樓層的自然光通過挑空的手法滲透到低樓層,光影隨著日照時間的變化相互交織,樓層之間也有了呼吸感。
夯實的綠色小徑從街邊開始,刻意被抬高一點點,讓人路過時便對它產生好奇,不自覺地步入進來。從一樓的沉浸式櫥窗開始,或漫步到後院,或緩步上到二、三樓的服裝陳列區。
服裝陳列區則以大麵積的亞麻色地毯所包裹,低調幹淨的背景在恰當營造氛圍的同時也讓人的關注點更多地聚焦在服裝上。
而四樓作為講述“小著是誰”故事的體驗空間,我們則大麵積留白,隻置入一些可移動、可組合的展台,讓小著日後可以靈活布展。至此,跟著這條小徑,自然而然地從室外穿梭到室內,從一樓漫步至五樓的水吧稍作休息,再由原路線返回前院的取貨口,享受一段空間中關於“小著是誰”的漫步旅程。
貫穿始終的綠色小徑由夯實的混凝土從地上生長起來,卻賦予它親近和圓潤的形態;服裝陳列區則由棱角分明的牆體所包裹,但材質上卻予以溫暖舒適的亞麻色羊毛地毯。剛與柔、冷與暖的結合,衝突對立卻又和諧共生,讓人踏入之後便不自覺地倚靠,又或是席地而坐。至此,人們在這個場域裏被引領著又與之親近著,“小著是誰”已漸漸明晰,我們也希望小著隨著時間的變化慢慢成長,讓這裏更加豐腴。
∇ 軸測圖
∇ 一層平麵圖
∇ 二層平麵圖
∇ 五層平麵圖
∇ 剖麵圖
項目信息
項目名稱:小著高級體驗店
設計方:Offhand Practice
設計時間: 2021.04-2021.06
施工時間: 2021.06-2021.08
主創及設計團隊:袁願,聶璿,李月,林宸西
項目地址:上海市徐彙區武康路368號
建築麵積:室內:600m² ;戶外庭院:160m²
攝影版權:胡彥昀
合作方:上海新魔力建築工程有限公司,羅洋,Doublehood
客戶:小著 XiaoZhuo
主要材料:羊毛地毯,塗料,微水泥,金屬
設計內容:建築外立麵,室內,戶外庭院,展示道具,燈光








































