功能即現實
功能性是一個真實、自主的存在,獨立於任何具體的物質表現形式。在某種意義上,功能主義和“詩意”是相對立的。在蕉內深圳萬象天地概念店的設計中,Some Thoughts取消了強行施加的“詩意”,嚐試通過功能性全麵主導空間,從而達成一種理性的秩序。
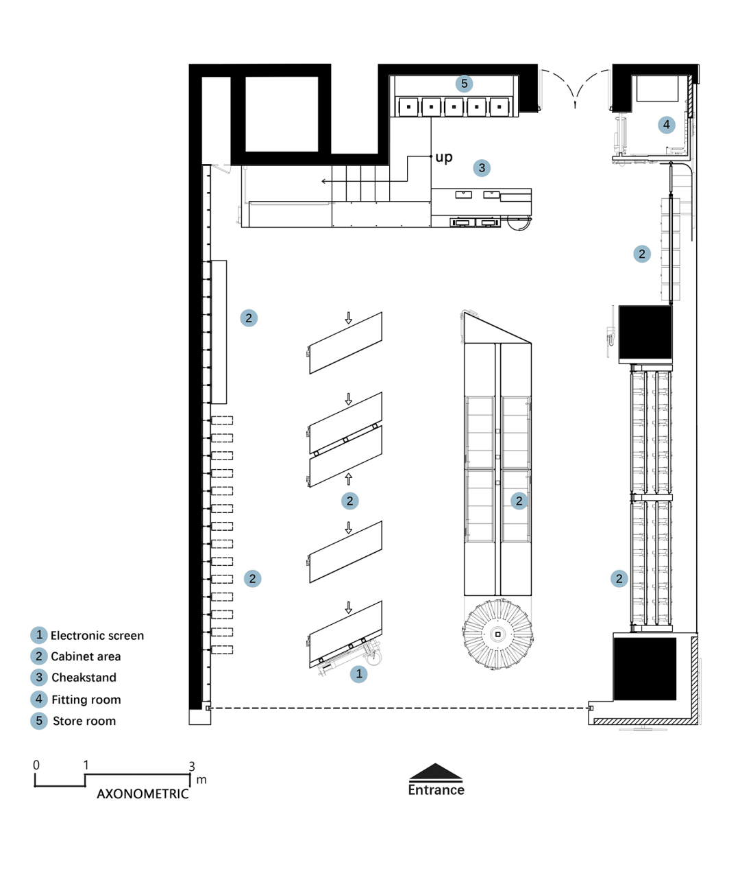
在超越虛空的本質的過程中,理性和機械動態影響著它們的構成體係。吊軌倉儲傳遞了技術和地理位移的概念,其中技術工程的功能性通過存在的行為得到加強。在這種循環的運行周期下,某種秩序便以功能的形式出現,並伴隨著對抽象、虛空的打破。
∇ 軸測圖
金屬作為非常規的線條其強度與韌性支撐了功能性與效率的存在,而不斷混合和凝固的碎石、膠和水等材料以人為的方式激活著自然,並使得有機物在結構之間輸出強烈的視覺記憶。
沒有功能則沒有現實。在相對集約的麵積條件下,設計師將空間頂部設置了吊軌式的倉儲體係取代了傳統意義上的倉庫。希望以更精準、複雜但高效的結構,區別於當下主流的空間表現形式。
∇ 吊軌倉儲裝置傳輸係統
在蕉內深圳萬象天地店的概念設計中,設計師放棄對空間強加的“詩意”,從而衍生出空間本身的自由動線,而這種自由更是通過行為模式與功能的便利性來賦予。
∇ 吊軌倉儲裝置傳輸係統圖解
∇ 剖麵圖
∇ 平麵圖
項目信息
項目名稱|Bananain蕉內深圳萬象天地概念店
項目地點|中國 深圳 南山區華潤萬象天地B1
設計公司|Some Thoughts空間設計工作室
主持設計|李京澤
設計團隊|李連琳琛
項目業主|Bananain蕉內
主要用材|膠粘石、紅銅不鏽鋼、亞克力、地磚、U型玻璃、肌理漆
室內麵積|95㎡
設計時間|2021.7-2021.9
建造時間|2021.10-2021.12
項目攝影|SFAP
版權聲明:本站所有文章除投稿授權發布外,其他文字內容均為原創,享有著作權保護,未經許可不得以任何形式進行轉載(包括且不限於:媒體、網站、公眾號等)。所有項目照片/設計圖形版權歸原作者所有。本站部分內容源自網絡公開資源或用戶分享,如若侵犯了原作者的合法權益,可聯係我們進行處理。





























