Q – factor買手店位於上海市靜安區襄陽北路34弄1號,項目沿街立麵屬於一幢磚紅色曆史保護建築的一部分。
基於曆史保護建築的原因,在思考項目立麵以及室內規劃的時候就顯得比較“小心”。
更多的要去思考兩個問題:
1.麵對曆史保護建築原有立麵的態度以及當下店鋪立麵的更新;
2.二層室內的牆麵地麵以及門窗不能改動的前提條件下還能做出一個有趣的空間。
想通這些問題,設計工作才開始。
街道“漸變” Street “gradient”
上海裏弄住宅沿街立麵往往有著特有的表現形式以及窗牆比例,伴隨著底商形成,項目所在原店鋪呈現出單一程式化的大麵積開口,不同程度消解了上海街道特有的氛圍連續性。
延續和更新是初衷,我們對街道開始“縫補”,設計通過“像素化漸變”的設計概念,新增磚片表皮與原始建築街道再度融合。店鋪所在位置作為建築與北邊弄堂入口的中間銜接,逐步融合與過渡。
設計采用寬380mm高150mm厚度28mm的磚片進行外牆的更新。考慮到對於原有街區牆體的保護,整體結構采用索結構,通過索來進行磚片的立麵固定,這樣與原有牆麵脫開而不去損壞。視覺上,新增紅磚片延續原有紅牆,下方的灰磚片與原建築灰色牆裙保持連續順延。
可變化單元組合 Adaptable design
一層作為買手店麵對街道的快閃展覽空間,整體麵積30平米。麵對這樣一個臨街小空間,有兩個問題:一是要給未來未知的快閃活動留足可使用的麵積;二是當沒有展覽的時候空間也不能空,不能“尷尬”。
我們設計了9個蜂窩紙板小單元。其中,9個300mm*300mm*50mm的蜂窩紙板上下黏合形成一個單元。小單元就跟“積木”一樣,可上下左右組合成為不同形式以適應展覽主題所需的變化,當空間空置的時候也可以形成矩陣填滿成為一個個展台。
可伸縮木構架 Retractable wooden structure
二層整體麵積近100平米,功能分別為賣場區、試衣間、洗手間以及儲藏間。通過樓梯由一層上入二層。賣場空間除了商品展賣同時也需滿足多種場景應用的可變性。基於不改變原始牆頂地及門窗的前提下,如此便得出一個需要滿足陳列功能,空間可變性,自成體係的裝置模型。
我們生成了兩組折疊推拉木構架裝置,其中大空間中裝置柱間麵寬2.5m,共六榀,小空間中裝置柱間麵寬1.8m,共四榀。其中每單元折疊伸縮最大跨度為1.2m。可收縮可移動的裝置性設計提供了在空間使用與非使用時展開和收縮。通過可拆卸的木杆以及拉索做為柱子之間的連接並承擔掛通的功能。
基於不同場景,可變化木杆及拉索的組合方式,演變出多樣的空間拓撲。
設計中選用白蠟木的原因有兩點:一是考慮到木材本身所傳遞出的材料溫度;二是我們希望材料未來能可持續的再利用。
另外的設計考慮 Additional design considerations
一層展示空間中,因原屋頂的高差,我們通過曲線屋頂進行過渡,增加空間延續性。進入一層至二層樓梯空間,麵臨高差導致的入口狹窄問題,我們抬高地麵填充了一步樓梯高差,盡可能爭取門口空間淨寬。
空間中,蜂窩紙板作為材料製作的體塊成為了展台、茶水台和收銀台。較於建築材料,蜂窩紙整體較輕,益於組合變化。
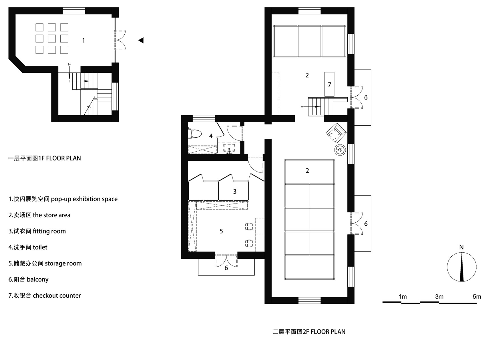
∇ 平麵圖
項目信息
項目名稱:沿街漸變,Q – factor買手店
項目類型:立麵改造,室內
設計方:礽建築
項目設計:2021.9
完成年份:2022.3
設計團隊:章礽然,施新桐,朱克
項目地址:上海市靜安區襄陽北路34弄1號
建築麵積:130㎡
攝影版權:劉俊男
客戶:Q factor
材料:陶土磚,白蠟木(折疊木結構),夯土塗料
品牌:陶土磚:江蘇富陶科陶瓷有限公司/白蠟木(折疊木結構):上海遠屋家居裝飾有限公司/夯土塗料:上海龍池建築裝飾工程有限公司


























