該項目旨在探索關於生活以及我們如何與環境相關的某些概念。它的設計構築了景觀的一部分,將其轉變為外部庇護,特別強調定義建築與自然之間界限的結構元素。
這是一棟位於智利中北部海岸的一個私人別墅,由豐富的野生植被和一係列切向接觸的岩石簇介導,在其中產生不同大小和形狀的空隙。設計靈感是將這些石頭變成了可居住的體量,以及作為該項目一部分的不同天井中的空隙。
Casa Las Vizcachas 是一名成年男子的第二個家,他希望將來能成為他的永久居所;這確定了一個分成 3 個體塊的特定功能區。最大的一間是帶私人浴室的主臥室,以及集成的客廳、餐廳和廚房;第二個元素是為主人女兒的臥室設計的,一間客房和一間大浴室。兩種元素都切線接觸,但隻能通過從一個元素過渡到另一個元素。後來,建造了一個稍微轉動的第三個功能體塊以容納一個小型健身房。
入口由坡道和小天井定義,由裸露的混凝土牆構成;穿過這個區域時,可以看到透視的中央庭院。這個空間是整個項目的核心,具有不同的元素,有助於增強居住在外麵的體驗。一係列人行道將體量結合起來並配置了不同的露台,輔以一個用作壁爐的混凝土橢圓形和一個“無邊無際”的遊泳池,該遊泳池不是向大海延伸,而是麵向天井,增強了它的位置。
房子建在從地麵升起的混凝土板上。除此之外,這所房子是 100% 用層壓木材設計。所有結構構件和內牆均在距現場800公裏的工廠預製,並由卡車運輸。這種策略可以節省施工時間,並將過程對地麵的影響降至最低。主框架采用層壓鬆木,而外部覆層采用羅紋勞利。
與此同時,室內裝飾采用 Coigüe,這是一種基於創造透明空間的意圖,與環境相連並促進這種景觀的典型放鬆氛圍,但又吸引了它自己的語言,遠離了通常的紋理和元素. 將社交區域與中央庭院隔開的窗戶立麵長 9 米,可以完全打開,形成一個單一的大環境,每個區域的界限似乎都模糊了。然而,由於上梁、設計為木格子的北牆和其他結構元素,空間得到了包容和保護。
大自然是一種禮物,是一種一直存在的東西,在這種情況下,這座房子試圖提供一個空間,在這片巨大而無法容納的廣闊海洋中提供一種庇護所的感覺。景觀美化項目也遵循這一邏輯,基本上包括識別在該地區生長的不同本土物種,並產生一個有效的灌溉係統,使它們變得更強壯,因為這裏的風在一年中的大部分時間都可能是殘酷的. 在房子的周邊,一個白色的貝殼被用作景觀的一部分,以及從現場提取的一係列岩石,這些岩石現在是設計的一部分,以紀念第一次進入現場,並且通過建築築造,直到它們成為庇護所。
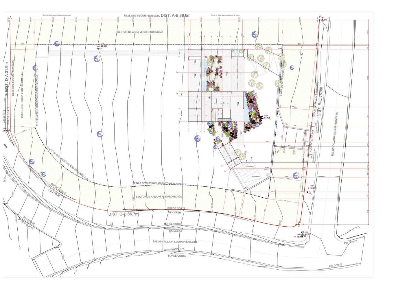
∇ 整體區位圖
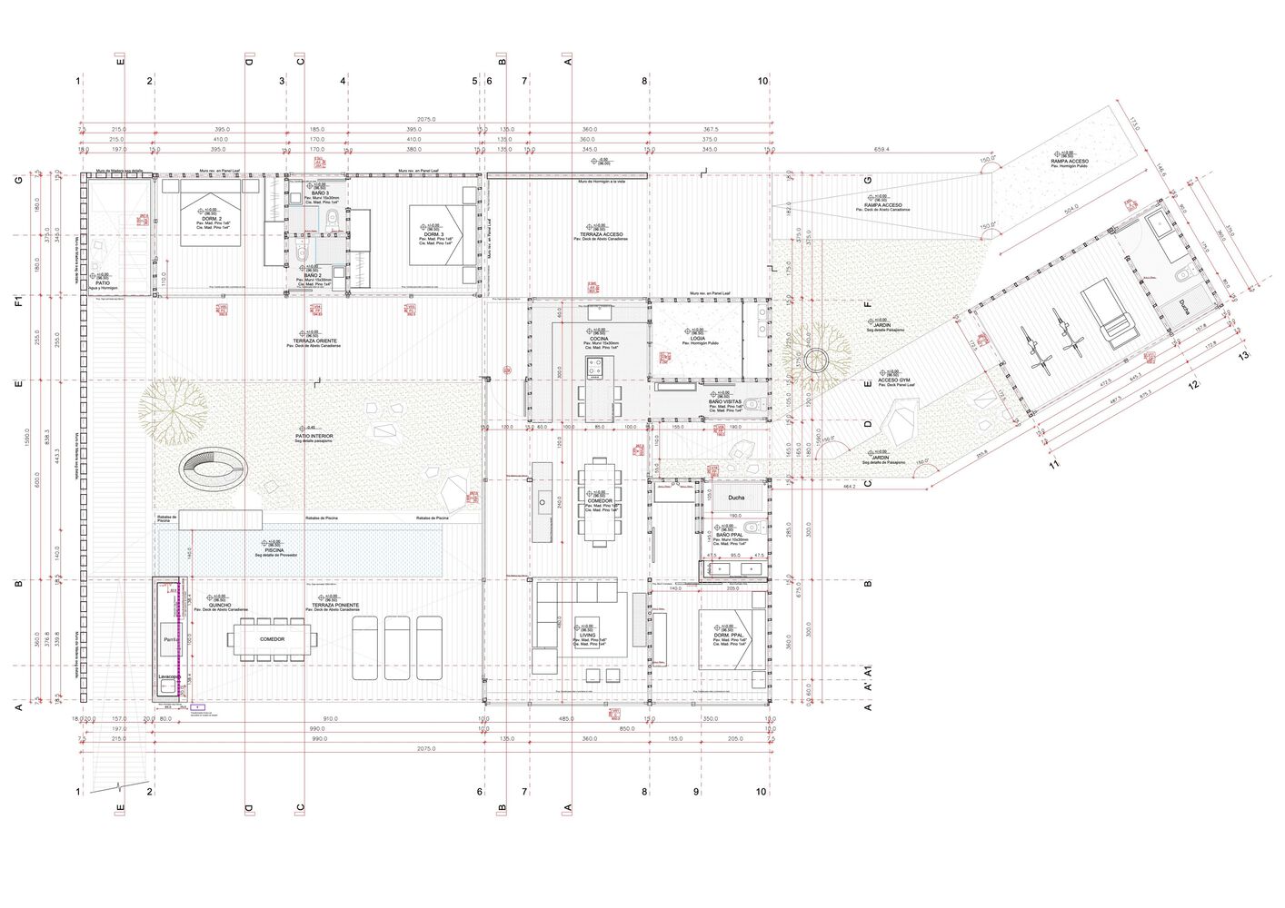
∇ 平麵布置圖
∇ 天花圖







































