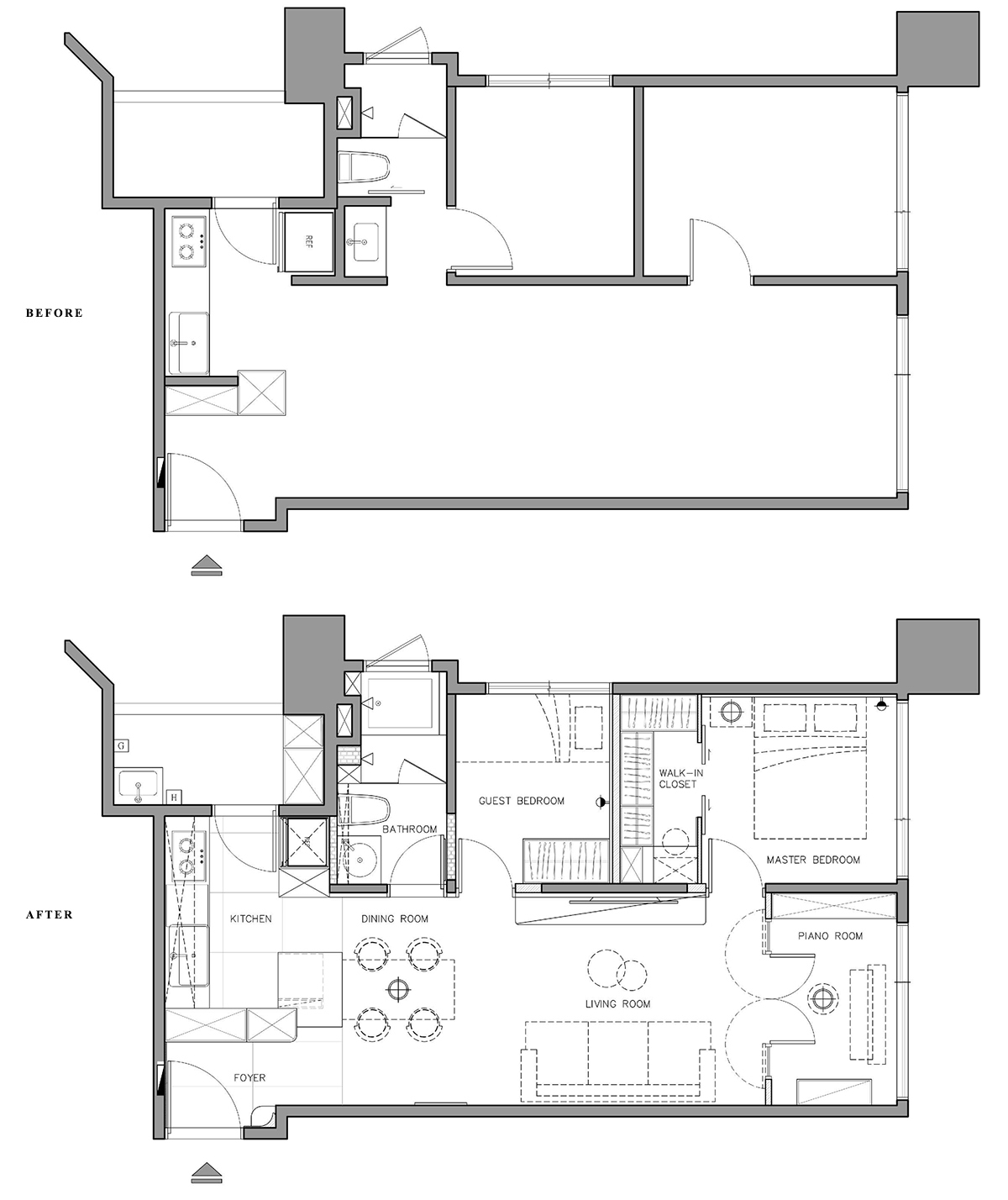
對 構設計 楊子瑩設計師而言,設計始終來自對自身生活的覺察。談及一室一角的安排,設計師說:本案以壁爐為主軸,因為窩在柴火前放鬆獨處一直是我的向往,於是利用+1 房格局,盼能在都市叢林中擁有一處專屬休憩所。放眼望去,少了法式華麗氣息,卻是完美承襲了一份從容自如,正因設計上淡化了古典風過於奢華、冷冽之氣,留住輕盈簡約調性;隻取線板與金屬配件局部妝點細節,現代語境則交由灰色調塗料及四種天然石材鋪陳。
為此,她笑著說:我走遍了八裏石材廠。美學之外,她表示設計不隻是擷取風格裏經典的符碼,還要真正切合習慣;尤其住在大樓中,天地壁是彼此共享的。因此加強隔音之餘,也針對環境濕氣以矽藻土確保屋內幹爽舒適,甚至運用無縫、耐磨、易清潔建材,讓優雅真正付諸於日常。
此外,過去人字拚地板都是實木板,這回改采防汙、防刮的超耐磨地板,還特別增加0.7 公分厚的靜音墊,預防狗狗跑步所造成的聲響。除了挑選機能性建材外,也以無落差的地坪規劃公領域,如此一來,愛狗不僅能盡興奔跑,連掃地機器人也能徹底掃淨各角落,隨時排除狗毛紛飛情形。
半弧簡化了古典雕花線板,衍伸出帶有現代感法式風韻,成為本案琴房拱門的重要象征。整體為了強化主景、試圖擴大柔美意象,也將弧線用於修飾橫梁或轉角,如同玄關轉角處穿鞋椅,以柔和筆觸貫穿全室。清潔性與隔音是兩大重點,尤其將重心放在地坪選材上,像是落塵區和廚房都以霧麵磁磚為主,為的是增加止滑力,避免毛孩滑倒。
版權聲明:本站所有文章除投稿授權發布外,其他文字內容均為原創,享有著作權保護,未經許可不得以任何形式進行轉載(包括且不限於:媒體、網站、公眾號等)。所有項目照片/設計圖形版權歸原作者所有。本站部分內容源自網絡公開資源或用戶分享,如若侵犯了原作者的合法權益,可聯係我們進行處理。


































