這間日式旅館位於曼利中心,就在著名的曼利海灘前麵,這是一個遊客、衝浪者和排球運動員經常光顧的標誌性澳大利亞海灘。該建築原是一座兩層維多利亞風格的小酒館,建於18世紀後期。多年來,在頂部建造了兩層額外的樓層,將其變成了一棟四層的混合用途建築,底層設有商店和公寓。
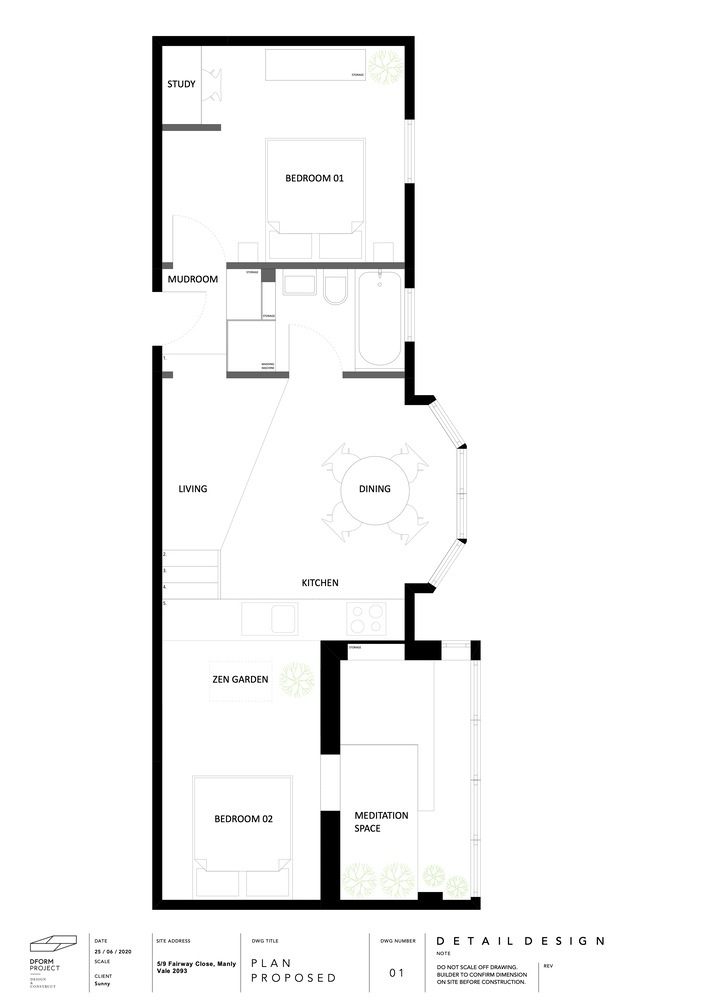
在Dform Projects重新設計之前,平麵規劃並沒有經過深思熟慮……沒有太多華麗的曼利陽光進入公寓。這與複雜的管道一起為需要創造性設計解決方案的建築師帶來了挑戰。建築師拆除了臥室的牆壁,讓自然光更深入地滲透到公寓中,並將浴室從入口處移開。他們還開辟了廚房、起居和用餐空間,將它們組合成一個更大的重疊區域。地板到天花板的木材引入了“外部”,增強了公寓的“自然”感覺,應客戶要求向美麗的環境致敬,以創造“獨特的體驗”。這種感覺從美與功能相遇的第一個入口點就很明顯。
∇ 平麵圖
版權聲明:本站所有文章除投稿授權發布外,其他文字內容均為原創,享有著作權保護,未經許可不得以任何形式進行轉載(包括且不限於:媒體、網站、公眾號等)。所有項目照片/設計圖形版權歸原作者所有。本站部分內容源自網絡公開資源或用戶分享,如若侵犯了原作者的合法權益,可聯係我們進行處理。

























