受青島本土買手品牌尤宿UIXIU委托,今朝風日好(One Fine Day Studio & Partners,以下簡稱ofD)為其打造了位於老牌高級百貨海信廣場中的第四家店鋪,委托方希望新門店呈現的氛圍是複古時髦,貼合所在場地氣質,並能容納新加入的古典中式風格品牌。
Commissioned by UIXIU, a local multi-brand boutique of Qingdao, One Fine Day Studio & Partners(refer to as ofD) conceived its fourth store located in the luxury shopping mall Hisense Plaza. The client demanded a retro and slick mood for the new fit-out in order to fit in with the stylish mall context and provide a suitable milieu for the upcoming classic Chinese style collections.
ofD以古羅馬的建築美學為靈感構建店麵形象,兼取宏大的秩序莊嚴感與日常的實用主義,使用具有不朽氣息的天然石料為主材質,打造亙古感與盎然生機相融的空間美學,用視覺語言呼應買手店的精神內核,即以獨到眼光挑選精品,在流轉的時尚風潮中延續審美格調。
Looking to the Ancient Roman architecture aesthetics for inspiration, ofD brought a solemn and grandiose sensibility and pragmatism spatial order into the location, using natural stone materials as main components to build a space aesthetic that blends the sense of eternity and vibrancy, echoing the curated boutique’s ethos — selecting the finest and maintaining the style through ups and downs of fashion trends.
著色 · 靜謐與生機 / Tranquil and Lively Palette
在繽紛的百貨商場體係中凸顯品牌特質,ofD的著手點是放大材質與色彩的感官張力,將大理石元素作為搭建空間觀感的支點,利用其視覺重量與變幻色調為吸引力,在第一眼就抓住顧客的目光。
The starting point for the design is to amplify the sensory attraction of materials and colors to distinct the brand’s characteristics among its variegated mall neighbors. ofD took marble as a pivot element to construct the spatial atmosphere, using its visual weight and varying hues to capture customers’ attention at the first sight.
店鋪大門是兩塊厚重的大理石板,ofD特別選取了具有東方韻味的溫潤玉綠以中和材質本身的冷硬感,石板表麵僅做簡單的拋光處理,如未琢之璞玉。作為空間的色彩主線,象征生命力的綠色與平和的暖杏基調將整體空間包裹其中,與店外的喧嘩塵囂隔開,讓自然生機於靜穆空間中延展。
The door comprises of two oversized granite slabs, whose simply polished surfaces resemble the unprocessed jades. Selected to add an oriental flavor, the delicate and warm green neutralizes the cold and horny feeling of the material. As the prima color of the space, different shades of green symbolize a growing vitality. Along with the peaceful apricot tone, it separates the store from the outside hustle and bustle, allowing natural liveliness extend in the quiet space.
向內空間逐漸加入了不同色調,演化推進的色彩襯出了空間的節奏感,也一層層喚起新的觀感與想象。中層置入的赫色大理石隔板,與內斂素色形成恰好的反差,濃鬱色澤提亮了空間溫度。
The rhythm of the store is composed by the evolving colors which are gradually added from the entry to the rear, evoking multiple layers of responses and imaginations. In the middle area, a mahogany granite partition wall is placed to contrast with the restrained light-tone base hues, brightening the space with its dense color.
行至後部區域,ofD用一座藍色的陳列架為空間注入清新氣息,四種色塊編碼與青島這個沿海城市特有的地平線景觀一呼一應:碧海藍天、草木遠山、紅瓦堤岸……色彩的意象組合巧妙喚醒了令人心曠神怡的地域記憶,增加顧客與空間的親切感。
At the rear of the store, a blue display shelf brings an air of freshness into the space. Comprised by four color codes, the harmonious color scheme recalls the unique horizon scenery of the coastal city Qingdao: blue sea and sky, meadows and distant hills, red tile buildings and white stone banks…… The combination brings back a refreshing regional memory, aligning the customers and the space.
肌理 · 動感與觸覺 / Vibrant and Tactile Texture
模塊化的陳列台與裝飾板以巋然姿態靜立,動感與對話在其中的多重紋路與質感間展開,紋理的漣漪在不同的材質上蕩漾,無需借助表層的連接,形成無聲流轉的視覺遊戲。
Modular display tables and decorative panels stand still, whereas a flow of movement and vibrant dialogues are formed among their patterns and textures. Without physical links, those marks ripple over the material surfaces, all engaging in a silent visual play.
空間質感生於對細節的把控,ofD利用不同的材質觀感與觸感,引發富有變化的線下購物體驗,近距離的觀看和指尖的觸動也會激發顧客關於衣物用料與工藝的聯想。
Aesthetic pleasure lives in the details. As visual and tactile stimulations of materials bring to mind the delicacy of fabrics and craftsmanship, ofD took a design approach with a focus on textures to create an impressive offline shopping experience.
表麵布有氣孔的洞石櫃台,坑窪不平的豎紋刮痕牆壁,硬麵材質的“殘缺”強調時光留痕。與消逝相對的是新生的柔和,懸掛衣架的圓柱外衣由手感綿軟的再生皮革包裹,蔥鬱苔綠色背牆是輕柔的絨毛質地,如原野的無盡草地,賦予空間無拘無束的自然氣息。
Hard-surface materials, such as porous travertine and bumpy plaster walls, feature with obvious scratches and dents as if they are the traces of time. Comparing to such “imperfect” is the softness of the new life: the cylindrical hanging rails are wrapped with soft recycled leather and the lush moss backdrop wall-covering is actually made of fluffy fabrics, reminiscent of an endless grass-field, fulfilling the space with a free spirit natural vibe.
構造 · 秩序與重置 / A Rearranged Space in Order
以秩序感與實用性為導向,ofD將店內各個區間重做了編排,強調視覺中軸和空間的縱深度,左右布局雖非嚴格對稱,仍能讓人的目光沿著看不見的中線望向內庭深處,一觀店鋪風格和所售物品,又保有一些目光無法穿透、有待進入發掘的留白。
Following the guide of order and practicability, ofD rearranged the layout, emphasizing a visual sense of axis and the depth of the store. Although the planning is not strictly symmetrical, it can still lead eyes to trace the invisible axis line and look deeper into the inner area to get an overall impression of the store’s style and selections, while also leaves blank for further exploration.
店鋪內裏被籠罩在排列整齊的白色燈膜下,節次分明的內嵌頂燈宛若羅馬萬神殿穹頂一般,以有序結構均灑下古典柔光。兩側的懸掛衣杆如同指示明確的道路邊欄,將顧客的腳步導向空間內部。
The evenly arranged ceiling light panels are in coffer form, resembling the significant dome of the Pantheon, bathing the interior through filter plates in a classical glow. On both side, hanging rails act as directional lines, inviting customers to step into the space.
入口處綜合了陳列與收銀功能的中島台,有著出於高效利用場地的實際考慮,其雕塑般的幾何輪廓也貼合烘托莊嚴感的設計需求,蜿蜒向內的結構,自然形成曲徑通幽的入店動線。試衣間則被拆成獨立的盒體,其中兩格置於店內中部位置,向內的兩麵以鏡環繞,鏡麵倒影也增加了空間層次。
At the entrance, the sculpture-shape center island, combining display and cashier functions, incarnates a practical consideration for efficient use of the space as well as a design intention for enhancing the solemn sensibility. With a sinuous structure, the island also lead the customer flow to go inside. The fitting room is divided into several independent boxes, two of which are placed in the middle of the store. The pair’s two inward-facing sides are clad with mirrors, whose reflections add a sense of layer to the space.
可以自由搭配的陳列組件,框架均被加粗處理以與其他的厚重體塊相稱得當,中空結構保證了店鋪空間的通透感,移步之間,框架既成了畫中之物,也圍住了背景色與衣物所組成不同的景致。
The display components can be assembled freely, while their frames were remolded into chunky volumes to harmonize with the other heavy blocks. Their hollow structures ensure a sense of transparency in the space. From different points of view, the structure either becomes an object in the painting or a picture frame for showcasing wear collections.
立於實用主義的空間規劃,落於細節打磨的美學概念,ofD以多樣的色彩與質感製造層次與對話,將整體氛圍導向一種具有感召力的詩意,亦靜亦動,時而清晰,時而微妙,留有回味的空間體驗也豐富了UIXIU的品牌形象。
From a spatial planing based on a pragmatism perspective to a sensory aesthetic concept — implemented with multiple colors, tactile materials, and precise attention to details, everything was designed to create layers and dialogues within the space, setting an enchanting poetic atmosphere. Both tranquil and vibrancy, sometimes clear and sometimes vague, the subtle and evocative spatial experience also enriches UIXIU’s brand imagery.
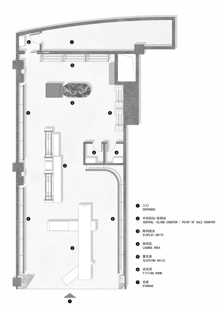
∇ 平麵圖
項目名稱:UIXIU買手店
項目地址:青島海信廣場
設計時間:2022
項目麵積:152㎡
設計機構:今朝風日好
設計總監:李俊鵬
設計團隊:梁昊,蘇嘉城
項目攝影:YUUUUNSTUDIO
今朝風日好(One fine day studio & partners)
2010年初建於汕頭大學,2013年正式成立廣州公司,專注於視覺設計,空間設計,藝術裝置,品牌整合。我們倡導設計的差異化,從品牌中挖掘個性基因,為客戶解決傳播的個性化和係統化問題;我們擁有跨越不同媒介的設計能力,力求通過多元的方法為品牌與消費者之間建立最有效的溝通;我們探索消費時尚與品牌戰略的完美結合,為品牌塑造以及提升提供更多方向的可能性。
One Fine Day Studio & Partners is established in Shantou University, 2010. Later in 2013, One Fine Day based in Guangzhou,focused in Visual Design、Interior Design、Art Installation and Brand Integration.
OFD initiate the individual designs, devoting to offer efficient programs for every client by exploring the branding DNA, with solid design capacity of multi-media and outstanding understanding of communications between brand and the market.
李俊鵬,今朝風日好(One fine day studio & partners)聯合創始人,設計作品曾榮獲多個國際設計獎項(Architizer A+Awards、意大利A’Design Award等),現主要負責空間及藝術裝置設計創意顧問,專注於挖掘材料的多種可能性及生活藝術化創新。
Jump Li, Co-founder of One fine day studio & partners, has won many international design awards (Architizer A+Awards, Italian A’Design Award, etc.) for his design works. Now he is mainly responsible for space and art installation design creative consultants, focusing on exploring the various possibilities of materials and the artistic innovation of life.



































